Плита Flama AE 1304 W - инструкция пользователя по применению, эксплуатации и установке на русском языке. Мы надеемся, она поможет вам решить возникшие у вас вопросы при эксплуатации техники.
Если остались вопросы, задайте их в комментариях после инструкции.
"Загружаем инструкцию", означает, что нужно подождать пока файл загрузится и можно будет его читать онлайн. Некоторые инструкции очень большие и время их появления зависит от вашей скорости интернета.

2
ООО «Каневской завод газовой аппаратуры»
353730, cт. Каневская, Краснодарского края,
промзона, (86164) 7-30-11, 7-06-41, 7-04-06
Наши плиты постоянно совершенствуются, улучшаются их характеристики, обновля
-
ется дизайн, поэтому приобретенная Вами плита может, несколько отличаться рисунками
и обозначениями от указанных в данном руководстве по эксплуатации.
ВНИМАНИЕ!
• Электроплиты устанавливаются в квартирах (домах) имеющих силовой 32А(40А)
вывод с заземлением. При отсутствии силового вывода необходимо обратиться в органи
-
зацию по ремонту и обслуживанию электроплит на возможность установки электроплиты
в Вашей квартире (доме).
• Так как электроплита четырехконфорочная с ограничением мощности, то при вклю
-
чении всех нагревательных элементов, третья конфорка мощностью 1,5 кВт отключается.
УВАЖАЕМый пОльзОВАтЕль элЕКтРОплИты!
Если в вашей квартире установлено УЗО (Устройство Защитного Отключения), при
первом включении плиты возможно срабатывание системы УЗО, что автоматически при
-
водит к обесточиванию всей квартиры. Срабатывание системы УЗО связано с наличием в
новых электроконфорках естественной влаги и промышленного смазочного состава. Для
устранения этого (автоматического срабатывания системы УЗО) необходимо:
• поставить ручки переключателей в положение “О”, включить систему защиты УЗО
и защитный автомат и прогреть
последовательно
все четыре (три) электроконфорки,
для удаления естественной влаги и смазки из нагревательных элементов, согласно под
-
готовке ЭКЧ к работе (см. паспорт ЭКЧ и паспорт плиты пункт 6.4.) в соответствии с
ГОСТ 14163-88. В случае необходимости данную процедуру повторить 2-3 раза.
При нагревании ЭКЧ возможно появление специфического запаха и дыма.
1. ОБЩИЕ УКАзАНИЯ
1.1. Электроплита (далее – «плита») предназначена для приготовления пищи в быто
-
вых условиях.
КАтЕГОРИЧЕСКИ зАпРЕЩАЮтСЯ пЕРЕДЕлКИ плИты!
Любые нарушения заводской наладки отдельных составных частей плиты в целом не
-
избежно приводят к изменениям заданных технических параметров плиты и к ухудшению
эксплуатационных показателей.
1.2.Неправильное подключение плиты, несоблюдение правил техники безопасности
могут привести к пожару, поражению электрическим током.
Внимательно прочтите данное руководство, где есть вся информация по установке,
правильному и безопасному использованию и обслуживанию плиты.
1.3.Производитель не несет ответственности за последствия, связанные с неправиль
-
ной установкой, ремонтом и неправильным использованием плиты.
1.4.При покупке плиты убедитесь в ее комплектности.
1.5.После монтажа претензии по комплектности не принимаются.
23
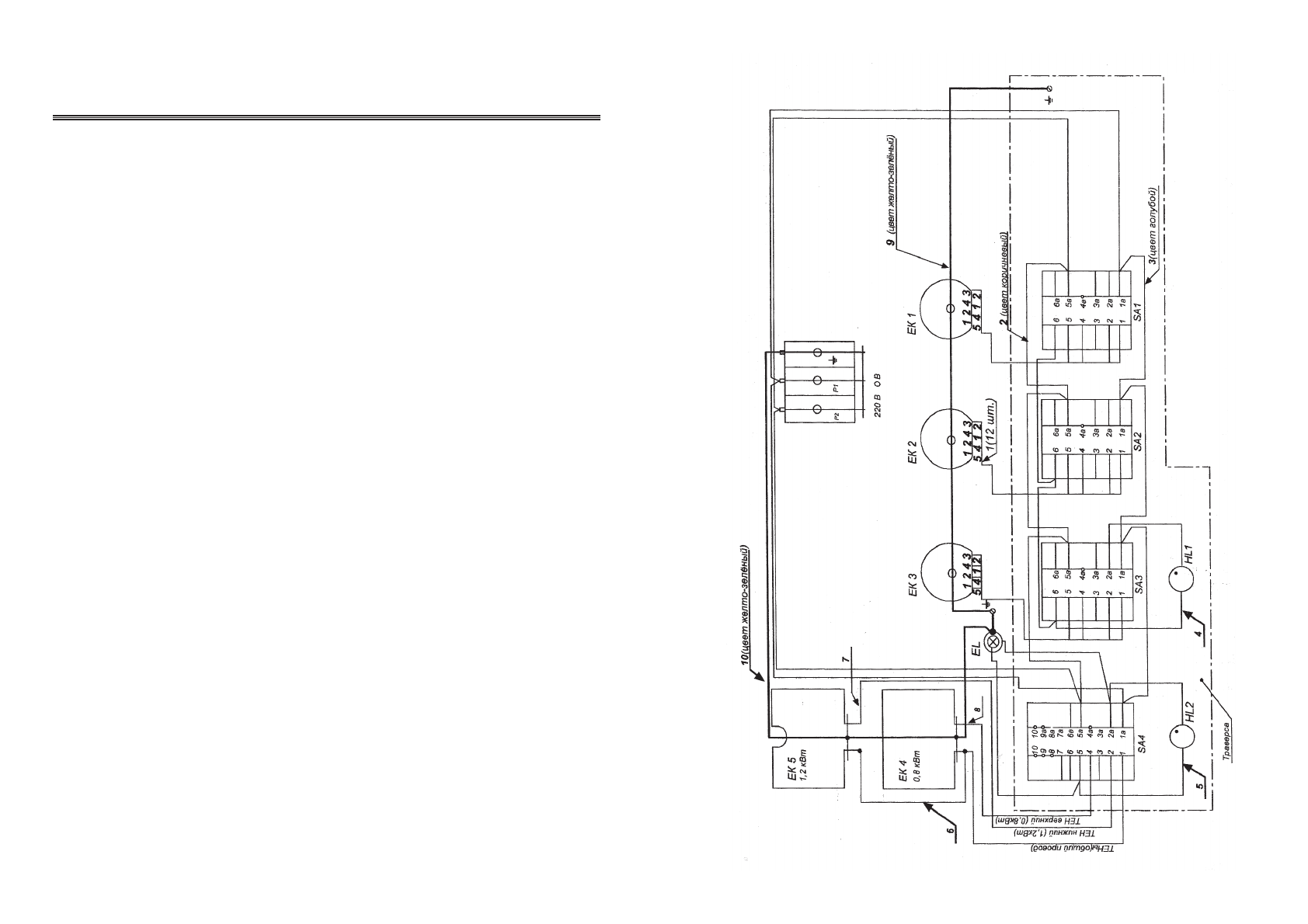
Сх
ем
а
эл
ек
тр
ич
ес
ка
я
3-
х
ко
нф
ор
оч
на
я,
с
п
ер
ек
лю
ча
те
ля
м
и
м
ощ
но
ст
и
Ки
та
й
Характеристики
Остались вопросы?Не нашли свой ответ в руководстве или возникли другие проблемы? Задайте свой вопрос в форме ниже с подробным описанием вашей ситуации, чтобы другие люди и специалисты смогли дать на него ответ. Если вы знаете как решить проблему другого человека, пожалуйста, подскажите ему :)