Обогреватели Тропик А-5 - инструкция пользователя по применению, эксплуатации и установке на русском языке. Мы надеемся, она поможет вам решить возникшие у вас вопросы при эксплуатации техники.
Если остались вопросы, задайте их в комментариях после инструкции.
"Загружаем инструкцию", означает, что нужно подождать пока файл загрузится и можно будет его читать онлайн. Некоторые инструкции очень большие и время их появления зависит от вашей скорости интернета.

1. Назначение воздушных тепловых завес.
Воздушные тепловые завесы создают высокоэффективный барьер из
направленного воздушного потока, который отсекает холодный воздух,
обогревает помещение, защищает микроклимат помещения от внешнего
воздействия — пыли, дыма, неприятных запахов, насекомых и т. п.
Для большей эффективности создаваемого воздушного барьера длина
воздушной завесы должна соответствовать ширине дверного или
оконного проёма.
Тепловые завесы могут устанавливаться одиночно и в линию для
перекрытия больших проёмов.
Завесы серии «А» предназначены только для горизонтальной установки.
2. Установка воздушных тепловых завес.
Установка завес осуществляется к стене или потолку через крепёжные
отверстия в корпусе. Установочные и габаритные размеры указаны на
рисунке №1 и в таблице №1.
3. Подключение воздушных тепловых завес к электрической сети.
Внимание! Перед подключением завесы к электросети убедитесь, что
сеть соответствует требованиям по мощности и имеет контур заземления.
Подключение этих моделей должно проводится
квалифицированными
специалистами в соответствии
с действующими нормативными документами.
Перед проведением любых работ по обслуживанию завесу
необходимо обесточить.
Сетевой кабель должен быть закреплён в завесе при
помощи хомутов или уплотнителей (в комплект не входят).
Заземление для данного типа электроприборов обязательно.
Тепловая завеса не имеет встроенного предохранителя, поэтому
подключение устройства к электрической сети необходимо производить
через автомат защиты номинала соответствующего мощности тепловой
завесы. Максимальные токи по каждой фазе, сечение сетевого кабеля
(медного) и требуемый автомат защиты указаны в таблице №1.
Для монтажа завесы необходимо:
3.1
Снять крышку завесы, отвернув 6 саморезов.
3.2
Закрепить завесу на стене или потолке (крепёж в комплект не входит).
3.3
Подключить сетевой кабель к клеммной колодке в соответствии с
её маркировкой, нанесённой штампом (см. приложение №1).
3.4
Установить крышку корпуса.
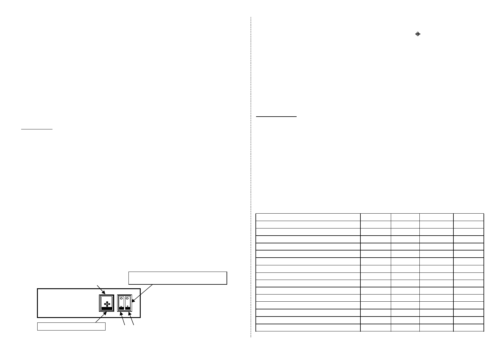
Клавиша включения завесы.
Клавиши включения
электронагревателей.
рис. 2
1.
2. 3.
4. Эксплуатация тепловой завесы.
4.1
Включение: Перед включением убедитесь, что верхние части всех клавиш
утоплены в корпус. Установите клавишу 1 в положение < > (см. рис. №2), при
этом начинает работать вентилятор. Нажатие на нижнюю часть любой из клавиш
2 и 3 включает половину мощности. Режим полной тепловой мощности
включается нажатием на нижнюю часть обеих клавиш 2 и 3.
Выключение завесы производится в обратном порядке.
4.2
Защита от теплового перегрева осуществляется автоматическим термо-
предохранителем (термозащита), размыкающим цепь питания нагревательного
элемента. При остывании нагревательного элемента цепь его питания замкнётся.
В случае регулярных срабатываний термозащиты необходимо устранить
причину перегрева, иначе тепловая завеса может выйти из строя.
Запрещается:
- ограничивать движение воздушного потока на входе и выходе;
- оставлять включённую завесу без присмотра на длительное время;
- эксплуатировать завесу при появлении искрения, наличия видимых
повреждений кабеля, корпуса, органов управления или неоднократном
срабатывании термозащиты, сильном шуме и повышенной вибрации;
- эксплуатировать завесу при несоответствии параметров электросети;
- использовать завесу с программным устройством, таймером и любым
другим устройством, которое автоматически включает завесу, так как
существует риск возгорания, если завеса накрыта или
неправильно расположена.
- устанавливать завесу в непосредственной близости от розетки
сетевого электроснабжения.
Таблица №1
Технические характеристики.
МОДЕЛЬ А 3 А 5 А 6 А 9
Мощность, кВт 3 5 6 9
Ступени мощности, кВт 1,5/3 2,5/5 3/6 4,5/9
Напряжение питания, В
220В~1Ф 50Гц 220В~1Ф 50Гц 220В~1Ф 50Гц 380В~3N 50Гц
Макс. ток по каждой фазе, А 14 23 27 14
Сечение сетевого кабеля, мм² 3 х 2,5 3 х 4,0 3 х 4,0 5 х 2,5
Автомат защиты, А 20 30 32 20
Скорость потока воздуха, м/с 5,3 5,4 5,3 5,3
Производительность, м³/ч 320 550 650 980
Длина L, мм 550 750 900 1310
Ширина B, мм 110 110 110 110
Высота H, мм 170 170 170 170
Установоч. размер a (см. рис. 1), мм 510 710 860 1270
Вес (без упаковки), кг 5 6 8 11
Рекомендуемая высота установки, м до 2,2 до 2,3 до 2,2 до 2,2
Уровень шума (не более), ДБ(А) 54 54 54 54