Обогреватели Timberk T-IR2500-A12SI - инструкция пользователя по применению, эксплуатации и установке на русском языке. Мы надеемся, она поможет вам решить возникшие у вас вопросы при эксплуатации техники.
Если остались вопросы, задайте их в комментариях после инструкции.
"Загружаем инструкцию", означает, что нужно подождать пока файл загрузится и можно будет его читать онлайн. Некоторые инструкции очень большие и время их появления зависит от вашей скорости интернета.

IM2022
17
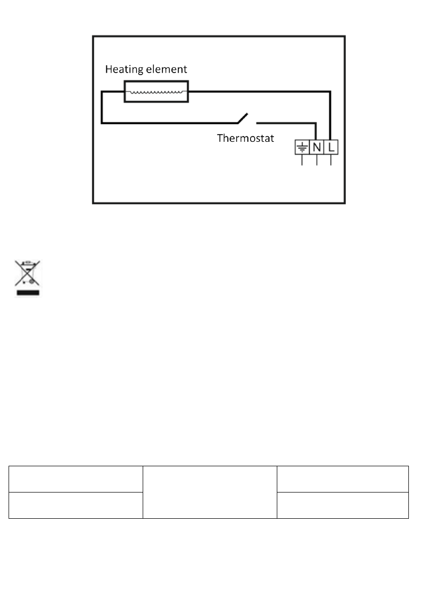
12. WIRING DIAGRAM
Fig. 4
13. UTILIZATION RULES
After the lifetime of the device expires, it should be recycled in compliance with the
laws, rules and methods in region of recycling. Detailed information about the recycling
of the device, you can receive from a representative of the local authorities, after
providing full information about the device. The manufacturer and authorized
organization of the manufacturer do not carry responsibility for the fulfillment by the Buyer of the
requirements of legislation on utilization and metho ds of utilization of the device selected by the
Buyer. The lifetime of the device is indicated in the warranty card. Warranty period for the device
and warranty terms are specified in the warranty card. The warranty card is an integral part of
the documentation supplied with this unit. If there is no warranty card in the delivery set, ask for it
from the Seller. The warranty card provided by the Seller must conform to the manufacturer’s
form. The manufacturer and the authorized organization of the manufactu rer remove
responsibility for any possible harm which can be caused to people, animals or property directly
or indirectly, if this harm occurred as a result of noncompliance with the rules and operating
conditions, installation of the device, intentional or reckless actions of the user- and / or third
parties, as well as in situations caused by natural and / or anthropogenic accidents.
14. TRANSPORTATION AND STORAGE
1. During transportation, any possible impacts and movements of the package inside the vehicl e
should be excluded.
2. Transporting and storage should be provided in strict accordance to the manipulation marks.
Temperature
Requirements*
Transportation
and storage
From -
30°C up to +50°C
Humidity
Requirements*
From 15% up to 85%
(without condensate)
We are exploring new technologies and we constantly improving the quality of our products.
That’s why specifications, design and accessories are subject to change without any specific
notice.
* This product must have storage in dry, well-ventilated space of warehouse at the temperature
not lower than +5°C