Тепломаш 200 КЭВ-9П202Е - Инструкция по эксплуатации - Страница 5

Обогреватели Тепломаш 200 КЭВ-9П202Е - инструкция пользователя по применению, эксплуатации и установке на русском языке. Мы надеемся, она поможет вам решить возникшие у вас вопросы при эксплуатации техники.

Если остались вопросы, задайте их в комментариях после инструкции.

"Загружаем инструкцию", означает, что нужно подождать пока файл загрузится и можно будет его читать онлайн. Некоторые инструкции очень большие и время их появления зависит от вашей скорости интернета.
Страница:
/ 14
Загружаем инструкцию
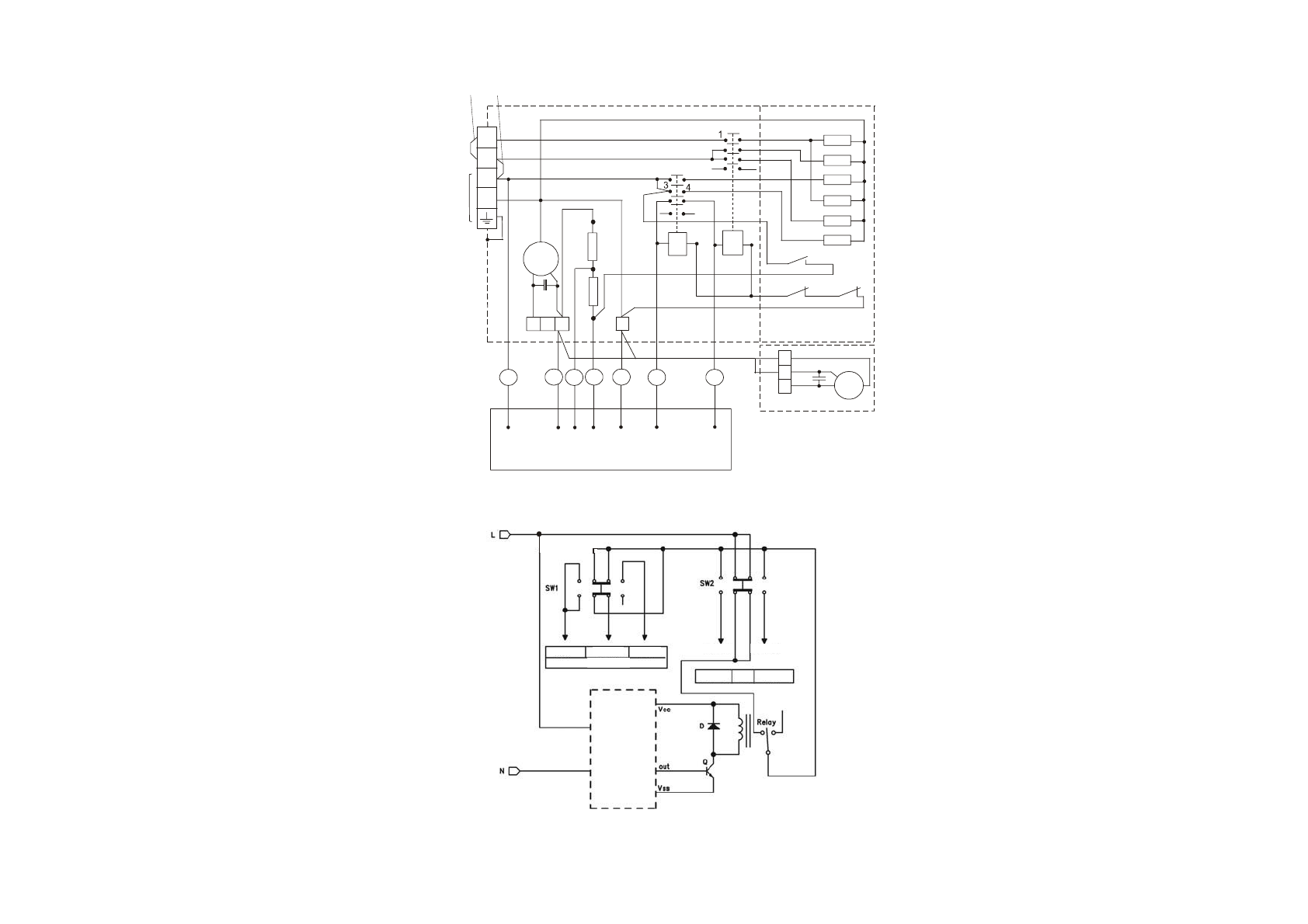
background image

. 4. 

 

 

-6 222  

 

N

F

120 

0

1

~

5

0

/2

2

0

2

3

4

5

6

13

14

1

2

5

6

13

14

ЕК

1

ЕК

2

ЕК

3

А

2

А

1

К

1

К

2

1

R1

R2

А

2

А

1

K

5

3

7

5

4

3

1

2

6

7

5

4

N

1

L

6

З

К

К

 

 

120 

0

50 

0

ЕК

4

ЕК

5

ЕК

6

о

 

1
5

К

1

о

 

К

 2   0,5

2

5

4

1

 

 

. 5. 

 

 

 

 

 

В

5

6

7

1

4

 100%

 50%

 

В

 50%

 100%

 

 
 

-13- 

Опубликовано TopClimat

Полезные видео

Характеристики

Оцените статью
tehnopanorama.ru
Остались вопросы?

Не нашли свой ответ в руководстве или возникли другие проблемы? Задайте свой вопрос в форме ниже с подробным описанием вашей ситуации, чтобы другие люди и специалисты смогли дать на него ответ. Если вы знаете как решить проблему другого человека, пожалуйста, подскажите ему :)

Задать вопрос

Часто задаваемые вопросы
Как посмотреть инструкцию к Тепломаш 200 КЭВ-9П202Е?
Необходимо подождать полной загрузки инструкции в сером окне на данной странице
Руководство на русском языке?
Все наши руководства представлены на русском языке или схематично, поэтому вы без труда сможете разобраться с вашей моделью
Как скопировать текст из PDF?
Чтобы скопировать текст со страницы инструкции воспользуйтесь вкладкой "HTML"