Обогреватели Теплофон К-1000 ЭВНА-1,0/220 - инструкция пользователя по применению, эксплуатации и установке на русском языке. Мы надеемся, она поможет вам решить возникшие у вас вопросы при эксплуатации техники.
Если остались вопросы, задайте их в комментариях после инструкции.
"Загружаем инструкцию", означает, что нужно подождать пока файл загрузится и можно будет его читать онлайн. Некоторые инструкции очень большие и время их появления зависит от вашей скорости интернета.

ООО «ТЕПЛОФОН»
ПАСПОРТ на электрообогреватели
ЭВНА
«Теплофон
-
К
»
ТУ 27.51.26
-016-10188045-2017
Стр.
4
из
13
Характеристики электрообогревателей в зависимости от модели приведены в Таблице 2.
Таблица 2
.
Наименование модели
Номинальная
мощность, кВт
Габаритные
разме-
ры(длина, высота, тол-
щина),
мм.
Масса, кг,
не более
Температура: поверх-
ности/ выходящего
воздуха,
о
С, не бо-
лее,
1
2
3
4
5
Теплофон
-
К
– 1000
1,0
607
х404х
95
3,7
95/135
Теплофон
-
К
– 1500
1,5
807х404х
95
4,7
95/135
Теплофон
-
К
– 2000
2,0
907х404х
95
5,1
95/135
Примечание:
1
-
температура поверхности при температуре окружающей среды
t
=20°С.
ВНИМАНИЕ
!
В
случае установки электрообогревателя
имеющего класс
защиты от пораже-
ния электрическим током
– I
по ГОСТ МЭК 60335
-1
заземление выполнено трехпро-
водным сетевым шнуром питания
.
Электрическая
сеть должна иметь защитное заземление.
2.2
Электрообогреватели состоят из металлического корпуса в который установлен
нагревательный элемент. Обогрев помещений осуществляется за счет свободной конвекции
воздушного потока
,
проходящего через электрообогреватель
.
Электрообогреватели имеют
термовыключатель с самовозвратом, установленный в корпусе электрообогревателя
,
и
устройство автоматического регулирования температуры.
Термовыключатель
(защитное устройство)
отключает электрообогреватель
от электри-
ческой сети при перегреве и автоматически включает его при остывании до рабочей темпе-
ратуры.
Устройство автоматического регулирования температуры
(термостат) позволяет поддерживать установленную температу-
ру внутри помещения
путем автоматического отключения элек-
трообогревателя, когда температура в отапливаемом помещении
установится выше заданной, и автоматического включения, ко-
гда температура станет ниже заданной
.
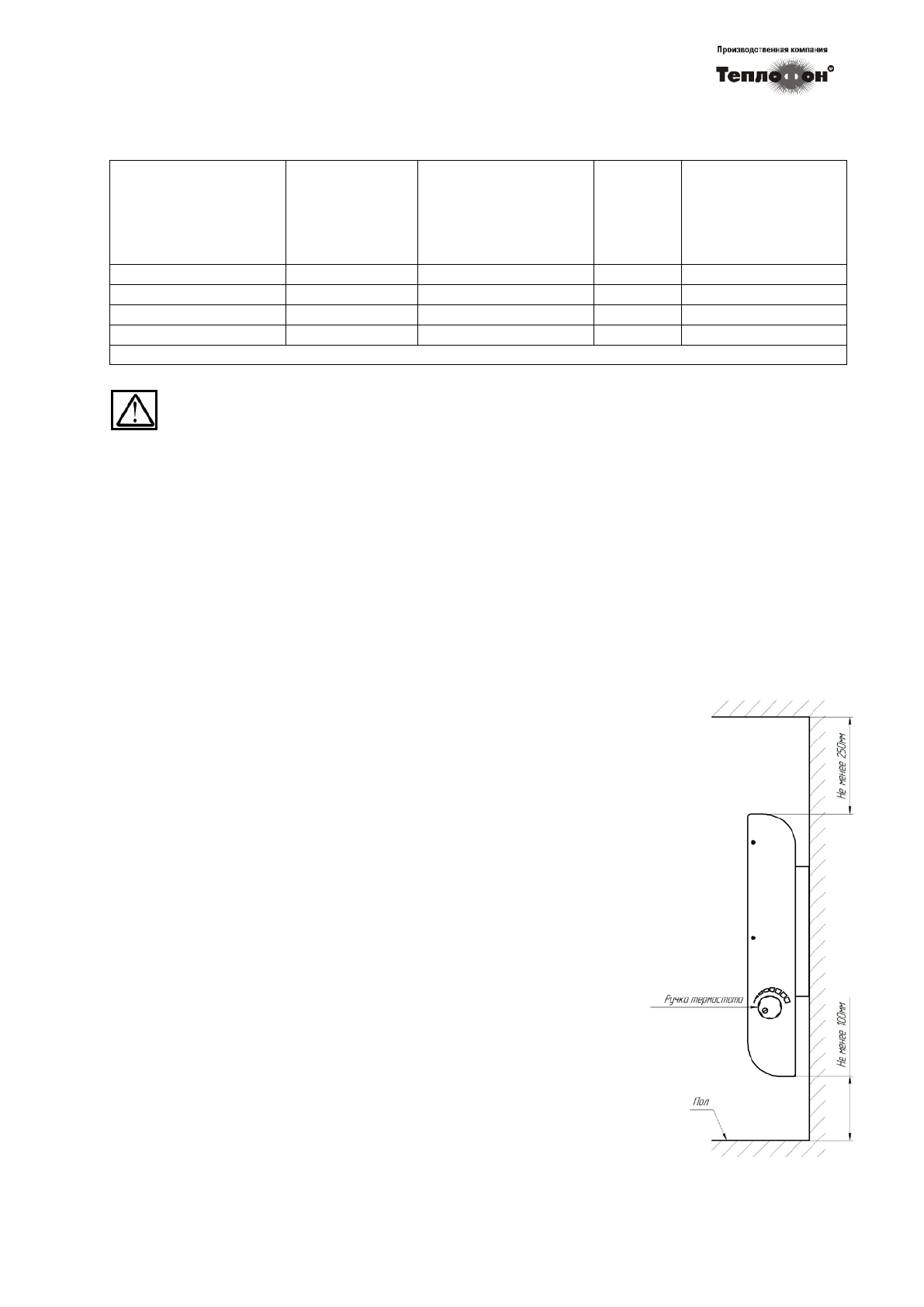
Для установки желаемой температуры необходимо вклю-
чить электрообогреватель и повернуть ручку термостата в мак-
симальное положение
–
до упора по часовой стрелке, см. рис. 1.
После нагрева отапливаемого помещения до комфортной для вас
температуры медленно поверните ручку термостата в обратном
направлении (против часовой стрелки) до щелчка. Повернув руч-
ку до щелчка
–
оставьте ее в этом положении. Таким образом,
электрообогреватель запомнит установленную вами температуру
и будет поддерживать ее автоматически, включаясь и выключа-
ясь. Автоматическое регулирование температуры позволит вам
экономить до 30% затрат электроэнергии на обогрев.
Рисунок 1. Установка
электрообогревателя.
Характеристики
Остались вопросы?Не нашли свой ответ в руководстве или возникли другие проблемы? Задайте свой вопрос в форме ниже с подробным описанием вашей ситуации, чтобы другие люди и специалисты смогли дать на него ответ. Если вы знаете как решить проблему другого человека, пожалуйста, подскажите ему :)









