Обогреватели Спец 10 кВт СПЕЦ-IGE-10 - инструкция пользователя по применению, эксплуатации и установке на русском языке. Мы надеемся, она поможет вам решить возникшие у вас вопросы при эксплуатации техники.
Если остались вопросы, задайте их в комментариях после инструкции.
"Загружаем инструкцию", означает, что нужно подождать пока файл загрузится и можно будет его читать онлайн. Некоторые инструкции очень большие и время их появления зависит от вашей скорости интернета.

15
Схемы электрические принципиальные для газовых тепловенти-
ляторов
СПЕЦ-IGE-30, СПЕЦ-IGE-53, СПЕЦ-IGE-72
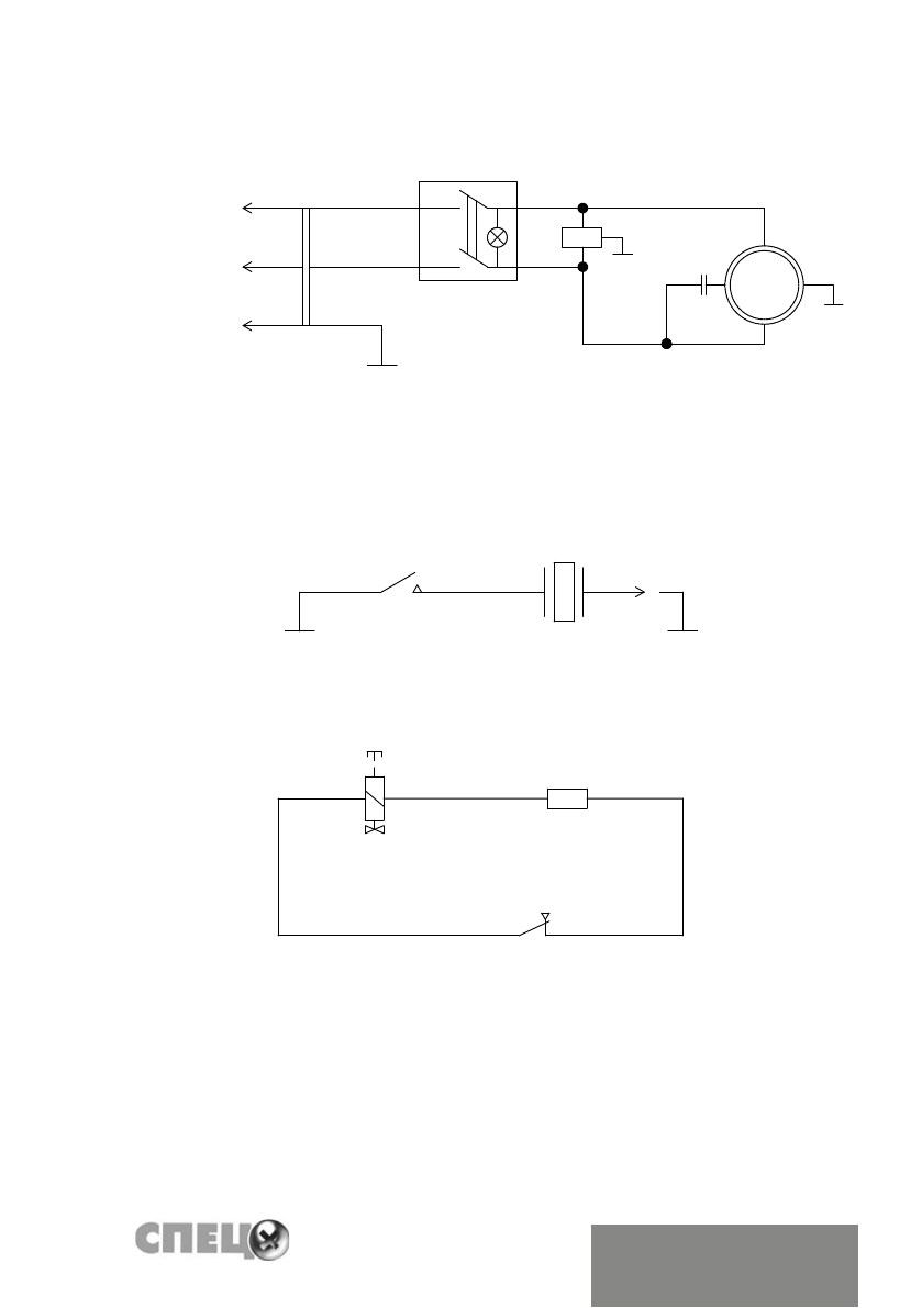
SA1 - cетевой выключатель;
YA1 - электромагнитный клапан;
М1 - электродвигатель;
SA2 - пьезоэлектрический зажигатель;
BQ1 - электрод зажигания;
G1 - клапан безопасности;
S1 - термопара;
SK1 - защитный термостат;
С1 - конденсатор
S А 2
Цепь зажигания
B Q 1
Цепь управления электродвигателем
Цепь защиты от утечки газа и перегрева
S 1
S K 1
G 1
Схемы электрические принципиальные газовых тепловентиляторов
GH-30, GH-50, GH-70.
L
N
P E
~
2 2 0 -2 30 В
Y A 1
M 1
M
~
C1
S A 1 - cет евой вы клю чат ель;
Y A 1 - элект ром агнит ны й клапан;
М 1 - элект родвигат ель;
S A 2 - пьезоэлект рический заж игат ель;
B Q 1 - элект род заж игания;
G 1 - клапан безопасност и;
S 1 - т ерм опара;
S K 1 - защ ит ны й т ерм ост ат ;
C1 - конденсат ор.
S А 1
L
N
P E
~
2 2 0 -2 30 В
S A 1
Y A 1
S А 2
Цепь зажигания
B Q 1
Цепь управления электродвигателем
M 1
M
~
S A 1 - cет евой вы клю чат ель;
Y A 1 - элект ром агнит ны й клапан;
М 1 - элект родвигат ель;
S A 2 - пьезоэлект рический заж игат ель;
B Q 1 - элект род заж игания;
G 1 - клапан безопасност и;
S 1 - т ерм опара;
S K 1 - защ ит ны й т ерм ост ат .
Цепь защиты от утечки газа и перегрева
S 1
S K 1
G 1
Схемы электрические принципиальные газовых тепловентиляторов
GH-10, GH-15, GH-10M, GH-20M
Содержание
- 5 УКАЗАНИЯ ПО ТЕХНИКЕ БЕЗОПАСНОСТИ
- 6 УСТРОЙСТВО ОБОРУДОВАНИЯ; на ровной поверхности.; Тепловентилятор
- 8 ТЕХНИЧЕСКИЕ ХАРАКТЕРИСТИКИ
- 10 Таблица 2; Неисправность; Таблица 1; ПОИСК И УСТРАНЕНИЕ НЕИСПРАВНОСТЕЙ; дены в таблицах 1 и 2.
- 11 ХРАНЕНИЕ И ТРАНСПОРТИРОВКА
- 12 ДАТА ИЗГОТОВЛЕНИЯ; Гарантийный срок эксплуатации - 12 месяцев от даты продажи.; Товар сертифицирован на территории Таможенного союза.; ТР ТС 004/2011 «О безопасности низковольтного оборудования»,; Информация о сертификации может изменяться. При необходимости,; СЕРВИСНЫЙ ЦЕНТР; Cписок сервисных центров можно узнать на сайте
- 14 Схема электрическая принципиальная газового тепловентиля-; P E; Цепь зажигания; S A 2 - пьезоэлект рический заж игат ель; Цепь защиты от утечки газа и перегрева

 
  
  
  
  
  
  
  
  
  
  
  
  
  
  
  
  
  
  
  
  
  
  
  
  
  
  
  
 











