Обогреватели Ресанта ПГ-4200Б/С - инструкция пользователя по применению, эксплуатации и установке на русском языке. Мы надеемся, она поможет вам решить возникшие у вас вопросы при эксплуатации техники.
Если остались вопросы, задайте их в комментариях после инструкции.
"Загружаем инструкцию", означает, что нужно подождать пока файл загрузится и можно будет его читать онлайн. Некоторые инструкции очень большие и время их появления зависит от вашей скорости интернета.

Ред.
1
9
5.
ТЕХНИЧЕСКИЕ ХАРАКТЕРИСТИКИ
Модель / Серия
ПГ
-
4200С
/ ПГ
-
4200Б
Номинальная тепловая мощность на
1
уровне мощности, кВт
1,4
Номинальная тепловая мощность на
2
уровне мощности, кВт
2,8
Номинальная тепловая мощность на
3
уровне мощности, кВт
4,2
Номинальный расход топлива на
1
уровне мощности, г/час
105
Номинальный расход топлива на
2
уровне мощности, г/час
210
Номинальный расход топлива на
3
уровне мощности, г/час
315
Тип топлива
пропан, пропан
-
бутан
Способ поджига
пьезо
Площадь обогрева, м²
до 60
Место под установку баллона внутри устройства
12 л
/ 27 л
Масса нетто
,
кг
6,3
Таблица 2. Технические характеристики
*В таблице указана ориентировочная площадь обогрева. Она может отличаться в
зависимости от реальных условий эксплуатации.
6.
ПОДГОТОВКА К РАБОТЕ И ПОРЯДОК РАБОТЫ
6.1
Подготовка к эксплуатации
Для данного оборудования необходимо приобрести подходящий
газовый баллон
, 1
2 л.
для ПГ
-
4200С, 27 л. для ПГ
-
4200Б. При первом
наполнении потребуется воздушная продувка баллона для обеспечения
правильной работы нагревателя. Эту процедуру необходимо произвести
на газонаполнительной станции. Каждый раз при заполнении на
подходящей газонаполнительной станции баллон вашего нагревателя
необходимо проверить для обеспечения безопасной работы.
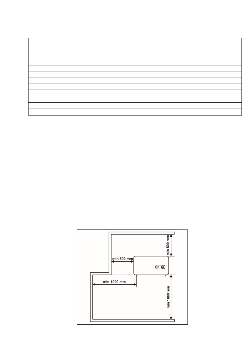
Обогреватель должен размещаться с соблюдением необходимого
безопасного расстояния до стен и предметов.
Рис. 2
.
Размещение
обогревателя
Содержание
- 4 Содержание
- 5 ПРАВИЛА БЕЗОПАСНОСТИ
- 7 КОМПЛЕКТНОСТЬ; Таблица
- 8 ОБЩИЙ ВИД УСТРОЙСТВА; Общий вид
- 9 ТЕХНИЧЕСКИЕ ХАРАКТЕРИСТИКИ; ПГ; ПОДГОТОВКА К РАБОТЕ И ПОРЯДОК РАБОТЫ
- 10 Подключение; Не используйте обогреватель, если обнаружена утечка.; Системы безопасности
- 11 и не; Замена баллона
- 13 ВОЗМОЖНЫЕ НЕИСПРАВНОСТИ И СПОСОБЫ ИХ УСТРАНЕНИЯ; В случае возникновения неисправностей; Неисправность; Таблица 3. Возможные неисправности и способы их устранения.
- 16 ГАРАНТИЙНЫЙ ТАЛОН; Инфракрасный газовый обогреватель
- 17 СЕРВИСНЫЕ ЦЕНТРЫ
Инструкция по сборке ПГ-4200 Б очень поверхностная. Зачем в пакете 28 черных саморезов? При сборке я использовал только 6. Куда ввинчивать остальные?