Обогреватели Ресанта ИКО-2000К - инструкция пользователя по применению, эксплуатации и установке на русском языке. Мы надеемся, она поможет вам решить возникшие у вас вопросы при эксплуатации техники.
Если остались вопросы, задайте их в комментариях после инструкции.
"Загружаем инструкцию", означает, что нужно подождать пока файл загрузится и можно будет его читать онлайн. Некоторые инструкции очень большие и время их появления зависит от вашей скорости интернета.

Ред.
2
15
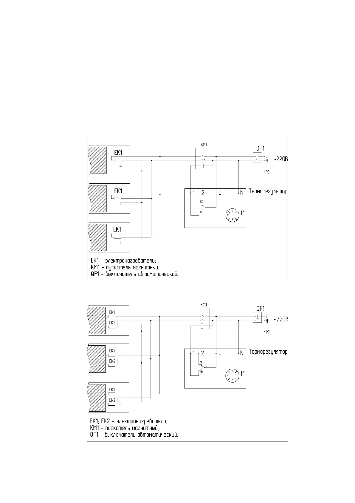
Монтаж терморегулятора
Инфракрасные обогреватели подключаются к терморегулятору согласно
схемам подключения в данном руководстве. Обогреватели работают пока в
помещении не достигнута заданная на терморегуляторе температура,
после чего отключаются и не включаются до того момента, пока
температура не упадет на 2
-
3 градуса меньше заданной.
Схемы подключения обогревателей к стационарной проводке
через терморегулятор
Рис
.8. Обогреватели
ИКО
-
800; ИКО
-1000
; ИКО
-1500
*Выключатель, пускатель магнитный, терморегулятор в комплект поставки не входят.
Рис.
9
. Обогреватель ИКО
-2000
, ИКО
-2000
К
*Выключатель, пускатель магнитный, терморегулятор в комплект поставки не входят.
Содержание
- 4 Оглавление
- 6 ПРАВИЛА БЕЗОПАСНОСТИ
- 9 ТЕХНИЧЕСКИЕ ХАРАКТЕРИСТИКИ
- 11 Интенсивность теплового облучения
- 12 Монтаж обогревателя; Подключение обогревателя
- 13 Схемы подключения обогревателей к стационарной проводке; Обогреватель
- 14 зажимов с заземляющей жилой кабеля стационарной проводки.; Установка терморегулятора; Наименование
- 15 Монтаж терморегулятора; после чего отключаются и не включаются до того момента, пока; Схемы подключения обогревателей к стационарной проводке; Рис
- 16 Выключатель, терморегулятор в комплект поставки не входят.
- 17 Эксплуатация прибора; включать обогреватель на 10; ТЕХНИЧЕСКОЕ ОБСЛУЖИВАНИЕ; Неисправность
- 18 обрывом цепи, обращайтесь в сервисные центры «Ресанта»; ТРАНСПОРТИРОВАНИЕ И ХРАНЕНИЕ
- 20 ГАРАНТИЙНЫЙ ТАЛОН; Инфракрасный
- 21 СЕРВИСНЫЕ ЦЕНТРЫ; Йошкар
Характеристики
Остались вопросы?Не нашли свой ответ в руководстве или возникли другие проблемы? Задайте свой вопрос в форме ниже с подробным описанием вашей ситуации, чтобы другие люди и специалисты смогли дать на него ответ. Если вы знаете как решить проблему другого человека, пожалуйста, подскажите ему :)