Обогреватели Kalashnikov KVC-B10W8-11 101500 - инструкция пользователя по применению, эксплуатации и установке на русском языке. Мы надеемся, она поможет вам решить возникшие у вас вопросы при эксплуатации техники.
Если остались вопросы, задайте их в комментариях после инструкции.
"Загружаем инструкцию", означает, что нужно подождать пока файл загрузится и можно будет его читать онлайн. Некоторые инструкции очень большие и время их появления зависит от вашей скорости интернета.

13
а1
а2
Ш
b1
b2
а3
В
ГОРИЗОНТАЛЬНАЯ УСТАНОВКА
к стене с помощью кронтштейнов
c3
c4
c1
c2
c1
A
B
ГОРИЗОНТАЛЬНАЯ И ВЕРТИКАЛЬНАЯ
УСТАНОВКА
к стене с помощью отверстий на корпусе
РАЗМЕРЫ КРОНШТЕЙНА
Г
d3
a4
d1
d2
d1
ГОРИЗОНТАЛЬНАЯ УСТАНОВКА
к потолку на шпильки
Дверной проем
а2
а3
a5
a4
а1
ВЕРТИКАЛЬНАЯ УСТАНОВКА
к стене с помощью кронштейнов
300 min
30
Всасывание
Нагнетание
160
C
D
E
30
30
30
12
6,5
6,5
19,3
19,3
A
6,5
19,3
R6
B
17
9
22
C
17
9
27,5
D
14
7
18,5
E
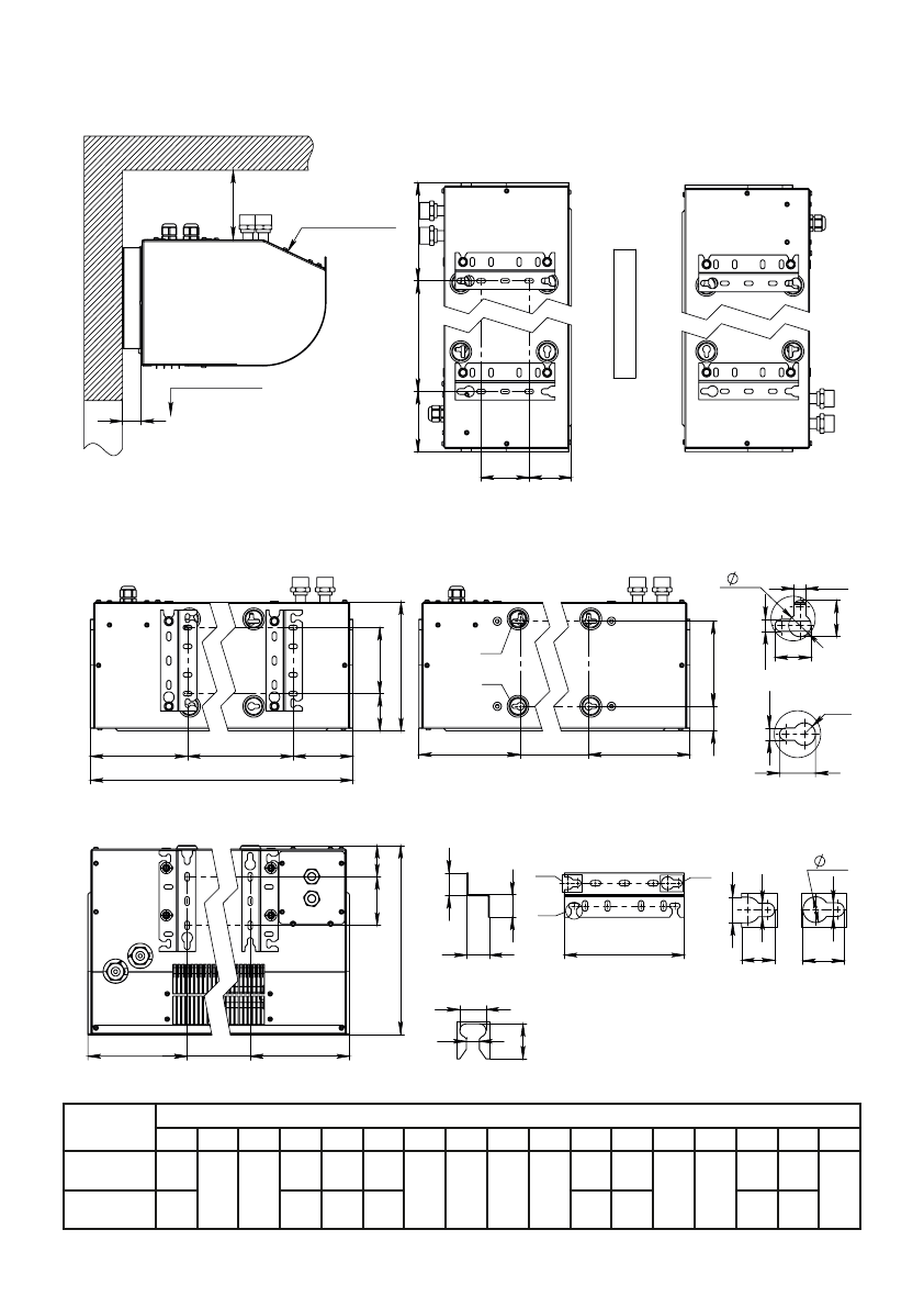
Рисунок 9.
Габаритные и крепежные размеры
Таблица 6. Габаритные и крепежные размеры
Модель завесы
Размеры, мм
Ш
В
Г
а1
а2
а3
а4
а5
b1
b2
c1
c2
c3
c4
d1
d2
d3
KVС-B10W8-11 1055
205
300
156
804
95
77
68
59
105
162.5
730
40
135
159
737
50
KVС-B15W14-11 1500
190.5 1179 130.5
197.5 1105
193.5 1113













