Обогреватели Hyundai H-HV18-15-UI1322 - инструкция пользователя по применению, эксплуатации и установке на русском языке. Мы надеемся, она поможет вам решить возникшие у вас вопросы при эксплуатации техники.
Если остались вопросы, задайте их в комментариях после инструкции.
"Загружаем инструкцию", означает, что нужно подождать пока файл загрузится и можно будет его читать онлайн. Некоторые инструкции очень большие и время их появления зависит от вашей скорости интернета.

IM2021
12
*The appearance of the device may differ from the images in the manual
1. Front panel
2. Warm air outlet
3. Control panel
4. Power cord with a plug
5. Back panel
6. Supporting feet with wheels
7. Cold water inlet
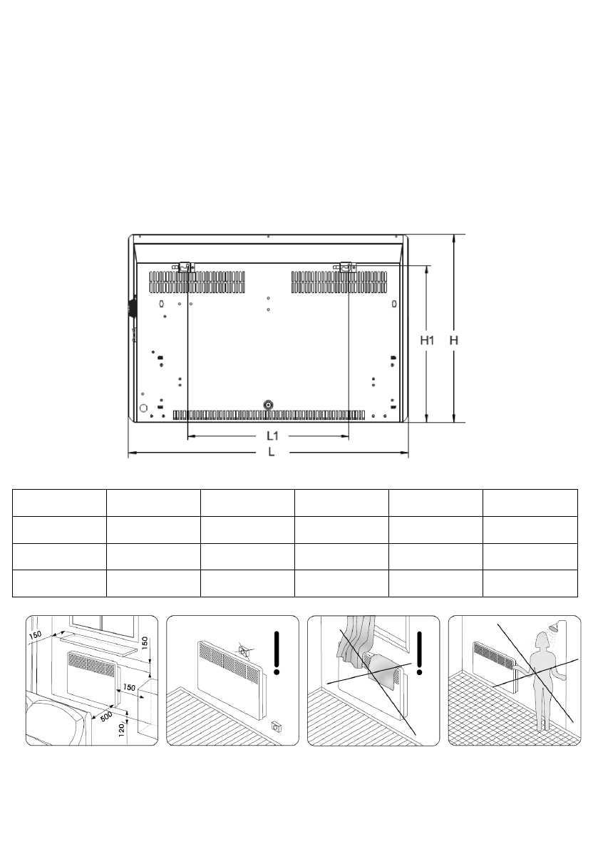
7. ASSEMBLY AND INSTALLATION
Wall installation of the device
Fig. 2
Series
Power
(W)
L, mm
Н, mm
L1, mm
Н1,
mm
H-
HV18
H-HV23
500/1000
460
400
206
332
H-
HV18
H-HV23
750
/
1500
595
400
341
332
H-
HV18
H-HV23
1000/2
000
830
400
576
332
Fig. 3
The dimensions are in mm













