Обогреватели Ballu BHP-9.000 C - инструкция пользователя по применению, эксплуатации и установке на русском языке. Мы надеемся, она поможет вам решить возникшие у вас вопросы при эксплуатации техники.
Если остались вопросы, задайте их в комментариях после инструкции.
"Загружаем инструкцию", означает, что нужно подождать пока файл загрузится и можно будет его читать онлайн. Некоторые инструкции очень большие и время их появления зависит от вашей скорости интернета.

11
Приложение
Приложение
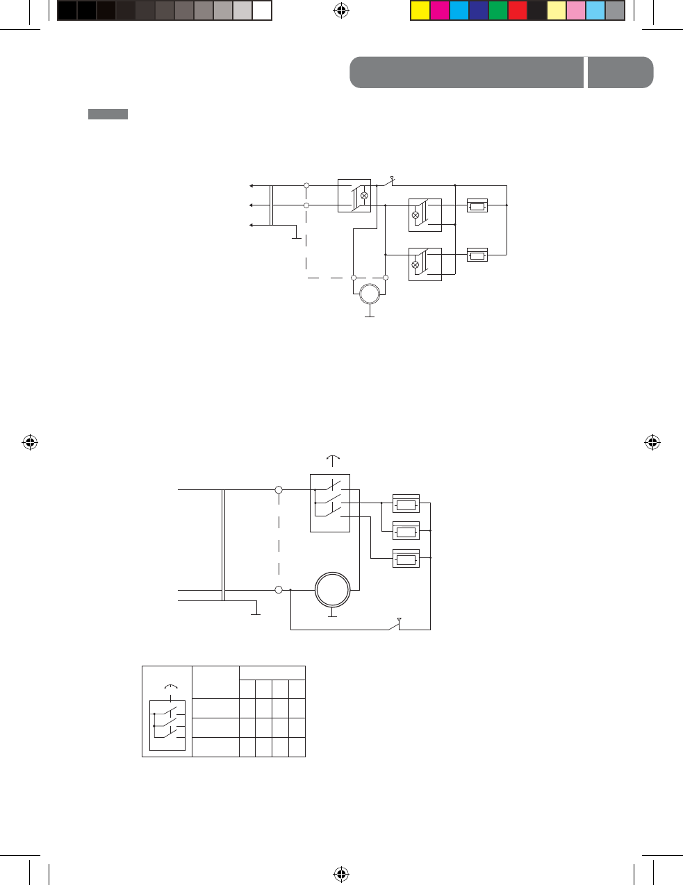
Схема электрическая Ballu BHP-3.000C
M
~50 Гц 220 В
L
N
Pe
XT1 SA1
SA2.2
SA2.2
EK1
EK2
M1
SK1
t 110°
~
EK1, EK2 – электронагреватели;
M1 – электродвигатель;
SA1 – сетевой выключатель;
SA2 – выключатель нагревателей;
SK1 – термовыключатель;
XT1 – колодка клеммная.
Схема электрическая Ballu BHP-5.000C
M
~50 Гц 220 В
Схема комутации переключателя
Контакты
1
2
3
Положение
1 2 3 4
х
х
х
х
х
х
L
N
Pe
XT1 SA1
EK1
EK2
EK3
M1
SK1
t 110°
~
EK1, EK2, EK3 – нагревательные элементы;
М1 – электродвигатель;
SA1 – переключатель режимов работы;
SK1 – термовыключатель;
XT1 – колодка клеммная.
Ballu_BHP_3000-5000-9000-15000C.11 11
Ballu_BHP_3000-5000-9000-15000C.11 11
04.06.2010 15:19:21
04.06.2010 15:19:21
Содержание
- 2 Гарантийный талон; Электротепловентилятор
- 3 Содержание; Используемые обозначения
- 4 Правила безопасности
- 5 Устройство прибора; Технические характеристики прибора:
- 6 Управление прибором; ) Подготовка прибора к работе
- 8 Функции безопасной работы; Функции безопасной
- 9 Уход и обслуживание
- 10 Утилизация прибора; Поиск неисправностей
- 11 Свидетельство о приемке
- 12 Приложение