Обогреватели Ballu BEC/EZMR-2000 - инструкция пользователя по применению, эксплуатации и установке на русском языке. Мы надеемся, она поможет вам решить возникшие у вас вопросы при эксплуатации техники.
Если остались вопросы, задайте их в комментариях после инструкции.
"Загружаем инструкцию", означает, что нужно подождать пока файл загрузится и можно будет его читать онлайн. Некоторые инструкции очень большие и время их появления зависит от вашей скорости интернета.

7
Меры предосторожности
• НЕ накрывайте работающий обогреватель.
• Убедитесь, что обогреватель полностью ос-
тыл, прежде чем убрать его на хранение.
• В случае если обогреватель планируется
не использовать длительное время, реко-
мендуется очистить его и убрать на хране-
ние (желательно в заводской упаковке) в
прохладное сухое место.
Сервисное обслуживание
В случае необходимости сервисного обслужи-
вания обратитесь авторизованный сервисный
центр.
Замена шнура питания.
Во избежание несчастных случаев повреж-
денный шнур питания должен быть заменен
представителем сервисного центра или дру-
гим квалифицированным специалистом.
Монтаж прибора
1. Настенный вариант установки
С помощью кронштейнов установите обогре-
ватель на стене у пола, согласно рисункам
ниже.Расстояние от прибора до пола должно
быть не менее 10 см.
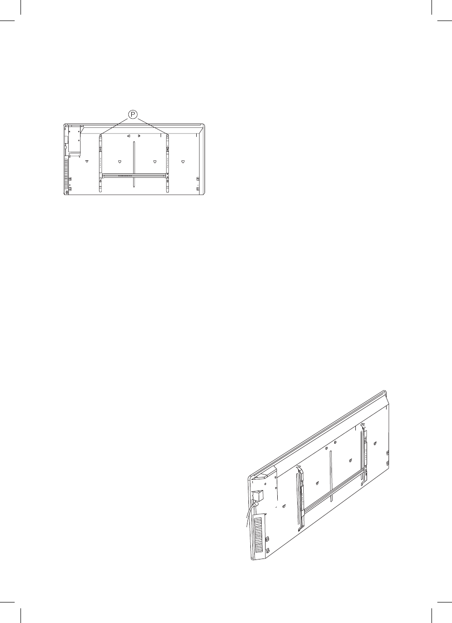
Рис. 5
Чистка задней панели обогревателя,
установленного на стене
Рис. 4
Очистить заднюю панель обогревателя про-
сто. Перед чисткой отключите обогреватель
от сети питания.
Ослабьте распорные шурупы на задвижках
Опустите вниз две задвижки «Р» (см. рис.
ниже) на задней панели обогревателя, и потя-
ните прибор на себя. Снимите прибор с крон-
штейнов и проведите чистку задней панели.
После чистки обогреватель следует закрепить
в обратном порядке.
Меры предосторожности
• Надежно закрепляйте обогреватель на стене
или ставьте его в правильное положение.
• Обогреватель должен быть установлен та-
ким образом, чтобы человек, принимающий
ванну или душ, не мог случайно прикоснуть-
ся к панели управления.
• Обогреватель нельзя устанавливать под ро-
зеткой электропитания.
• Если обогреватель устанавливается на
полу, не располагайте его рядом с ванной,
душем или плавательным бассейном.
• При настенном варианте установки не рас-
полагайте обогреватель в непосредственной
близости от ванны, душа или плаватель-
ного бассейна.
• В случае повреждения шнура питания об-
ратитесь к квалифицированному электрику
или сотруднику сервисной службы.