Обогреватели ARDESTO CH-2000MCW - инструкция пользователя по применению, эксплуатации и установке на русском языке. Мы надеемся, она поможет вам решить возникшие у вас вопросы при эксплуатации техники.
Если остались вопросы, задайте их в комментариях после инструкции.
"Загружаем инструкцию", означает, что нужно подождать пока файл загрузится и можно будет его читать онлайн. Некоторые инструкции очень большие и время их появления зависит от вашей скорости интернета.

Рис. 1
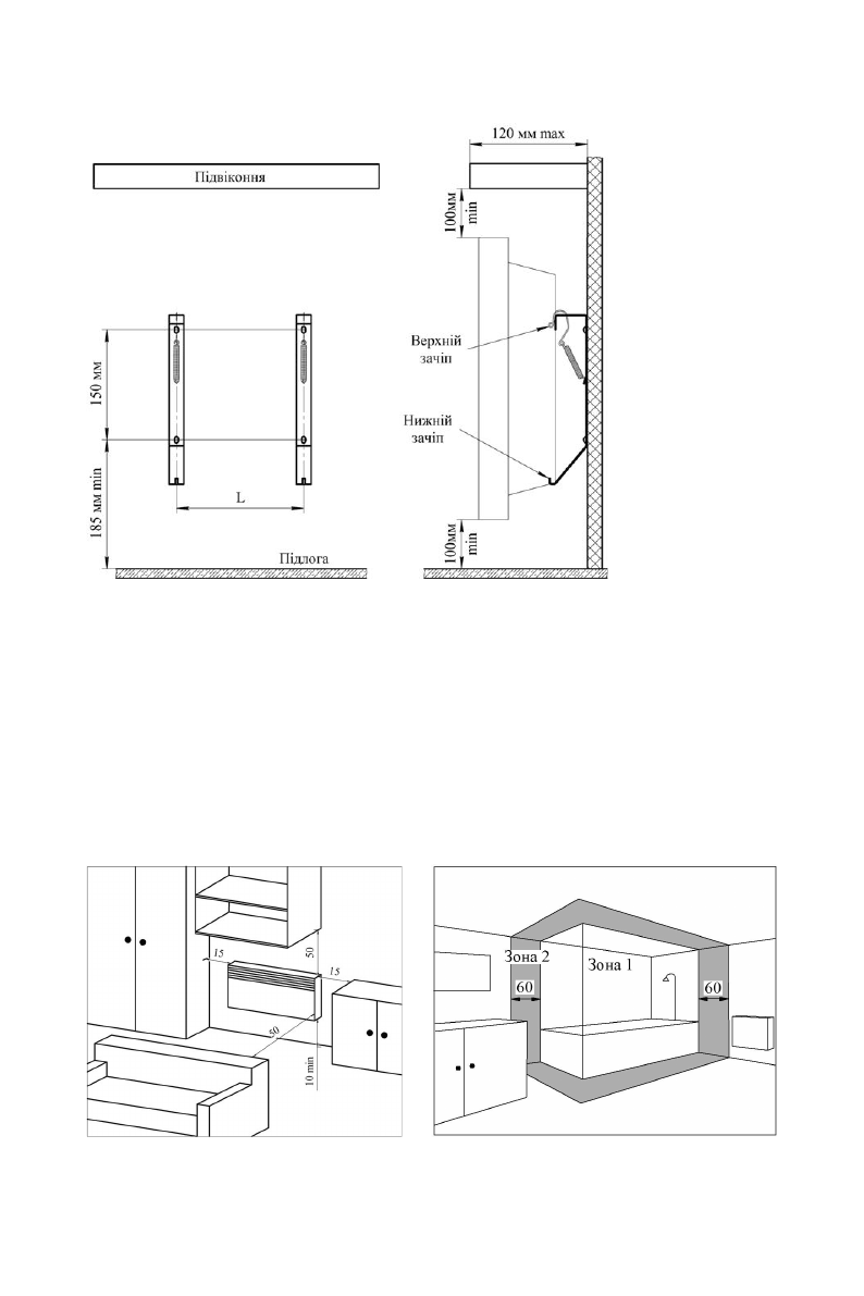
5.5 Конвектори допускається встановлювати в приміщеннях з підвищеною во-
логістю – ванних кімнатах, душових, басейнах (рисунок 3). При цьому установка
конвектора забороняється:
- в зоні 1 ванних кімнат, душових;
- в зоні 2, якщо особа, знаходячись у ванні або під душем, зможе дотягнутися до
органів керування конвектором.
Розетки для підключення конвекторів повинні бути встановлені на відстані не
менше 25 см від підлоги поза зоною 2.
Рис. 2
Рис. 3
Характеристики
Остались вопросы?Не нашли свой ответ в руководстве или возникли другие проблемы? Задайте свой вопрос в форме ниже с подробным описанием вашей ситуации, чтобы другие люди и специалисты смогли дать на него ответ. Если вы знаете как решить проблему другого человека, пожалуйста, подскажите ему :)