Насосы СТАВР 3-НСВ-100 - инструкция пользователя по применению, эксплуатации и установке на русском языке. Мы надеемся, она поможет вам решить возникшие у вас вопросы при эксплуатации техники.
Если остались вопросы, задайте их в комментариях после инструкции.
"Загружаем инструкцию", означает, что нужно подождать пока файл загрузится и можно будет его читать онлайн. Некоторые инструкции очень большие и время их появления зависит от вашей скорости интернета.

6 ПОДГОТОВКА К РАБОТЕ
6 ПОДГОТОВКА К РАБОТЕ
ВНИМАНИЕ!
При подготовке к работе,
а также перед выполнением любых опе
-
раций по техническому обслуживанию
убедитесь, что изделие выключено и от
-
ключено от питающей сети.
ВНИМАНИЕ!
В случае монтажа изделия
неквалифицированными специалистами,
изготовитель не несет ответственности
за неисправности, возникшие из-за не
-
правильного монтажа или неправильно
-
го подключения к электросети.
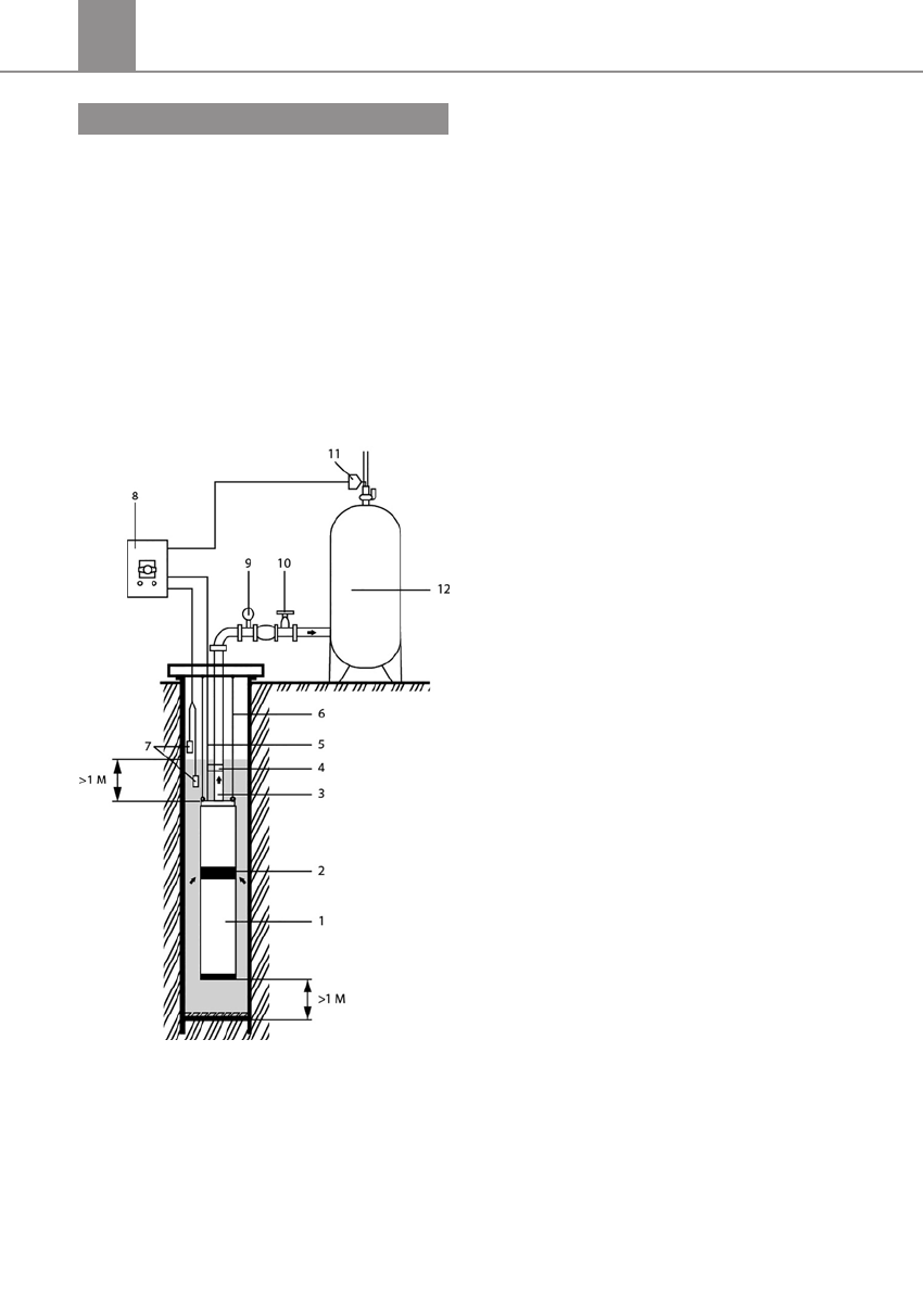
1 - насос
2 - решетка водозабора
3 - шланг/трубопровод
4 - хомут крепления шнура питания
5 - шнур питания
6 - трос, удерживающий насос за мон
-
тажную проушину
7 - датчики контроля уровня воды
8 - автоматический пульт управления
9 - манометр
10 - запорный вентиль
11 - реле давления
12 - гидроаккумулятор
6.1 Установка насоса
6.1.1 Перед установкой необходимо про
-
верить работу насоса, включив в элек
-
тросеть на 2-3 секунды. В случае если
насос не запускается, проверить пра
-
вильность подключения электрокабеля
к сети.
6.1.2 Насос необходимо подключать к
электросети через устройство защитного
отключения (УЗО) с номинальным током
срабатывания ≤ 30 мА (в комплект по
-
ставки не входит) и заземление.
6.1.3 В резьбовое отверстие выходного
патрубка установите штуцер или другие
соединительные элементы трубопро
-
водной системы (в комплект поставки не
входят). Соединения должны быть гер
-
метичными.
6.1.4 Насос опускается в скважину на
глубину, не менее 1 м от поверхности
воды и не ближе 1 м до дна скважины.
6.1.5 При установке насоса в скважине
требуется дополнительно закреплять его
тросом (в комплект поставки не входит)
через специальные проушины. Убеди
-
тесь, что длины троса достаточно для
фиксации и погружения изделия на тре
-
буемую глубину.
6.1.6 Рекомендуется использовать сква
-
жинный фильтр.
6.1.7 Шнур питания рекомендуется за
-
фиксировать хомутами к выходному
шлангу/трубопроводу.
6.1.8 При наращивании шнура питания
необходимо обеспечить его абсолютную
герметичность. Для этого используются
влагостойкие кабели, а также специ
-
альные термоусадочные или заливные
муфты (в комплект поставки не входят).
Сечение шнура питания необходимо
подбирать в зависимости от необходи
-
РУКОВОДСТВО ПО ЭКСПЛУАТАЦИИ
11
RUS
Характеристики
Остались вопросы?Не нашли свой ответ в руководстве или возникли другие проблемы? Задайте свой вопрос в форме ниже с подробным описанием вашей ситуации, чтобы другие люди и специалисты смогли дать на него ответ. Если вы знаете как решить проблему другого человека, пожалуйста, подскажите ему :)













