Мойки высокого давления Karcher HDS C 7 11 Steel - инструкция пользователя по применению, эксплуатации и установке на русском языке. Мы надеемся, она поможет вам решить возникшие у вас вопросы при эксплуатации техники.
Если остались вопросы, задайте их в комментариях после инструкции.
"Загружаем инструкцию", означает, что нужно подождать пока файл загрузится и можно будет его читать онлайн. Некоторые инструкции очень большие и время их появления зависит от вашей скорости интернета.

-
3
1 Armário de distribuição
2 Válvula de dosagem do detergente
1 Interruptor principal
2 Regulador de temperatura
3 Interruptor da operação permanente/
dispositivo de comprovação de moedas
4 Interruptor da protecção anticongelan-
te/ligado
–
Posição 0:
A instalação está desliga-
da. Protecção anticongelante está des-
ligada.
–
Posição 1:
a instalação está operacio-
nal.
A temperatura da água é ajustada no regu-
lador da temperatura.
–
30...50 °C para sujidade ligeira.
–
50...60 °C para limpeza de máquinas e
veículos motorizados.
A temperatura máxima permitida da água,
durante a operação SB (auto serviço), é de
60 °C. (consultar os dados técnicos sobre
a temperatura máxima possível da água.)
A
Posição de operação permanente:
instalação funciona apenas sem com-
provador de moedas.
B
Posição do comprovador de moe-
das:
instalação só funciona se forem
inseridas moedas.
A
Posição de protecção anticongelan-
te:
instalação não está operacional,
protecção anticongelante está activa. A
lâmpada de controlo "Operacionalida-
de" não brilha.
B
Posição "ligado":
a instalação está
operacional. A lâmpada de controlo
"Operacionalidade" brilha.
Atenção
Os dispositivos de protecção anticongelan-
te funcionam apenas com o interruptor
principal na posição 1.
No relé temporizado é possível ajustar o
tempo por moeda inserida, entre 1 e 10 mi-
nutos.
1 Relé temporizado
Rodar o interruptor principal para a po-
sição "0".
Abrir a tampa do armário de distribui-
ção.
Ajustar o relé temporizado no tempo de
funcionamento desejado.
Colocar novamente a tampa do armário
de distribuição.
Com a válvula de dosagem é ajustada a
quantidade de detergente doseada.
É possível dosear entre 0 e 6% de deter-
gente. A escala na válvula de dosagem in-
dica um valor aproximado e não preciso. A
dosagem precisa depende da fluidez dos
detergentes utilizados e da temperatura
ambiente. Determinar valores exactos atra-
vés da medição da quantidade de deter-
gente aspirada. Proceder eventualmente a
reajustes sempre que se verificarem bai-
xas temperaturas.
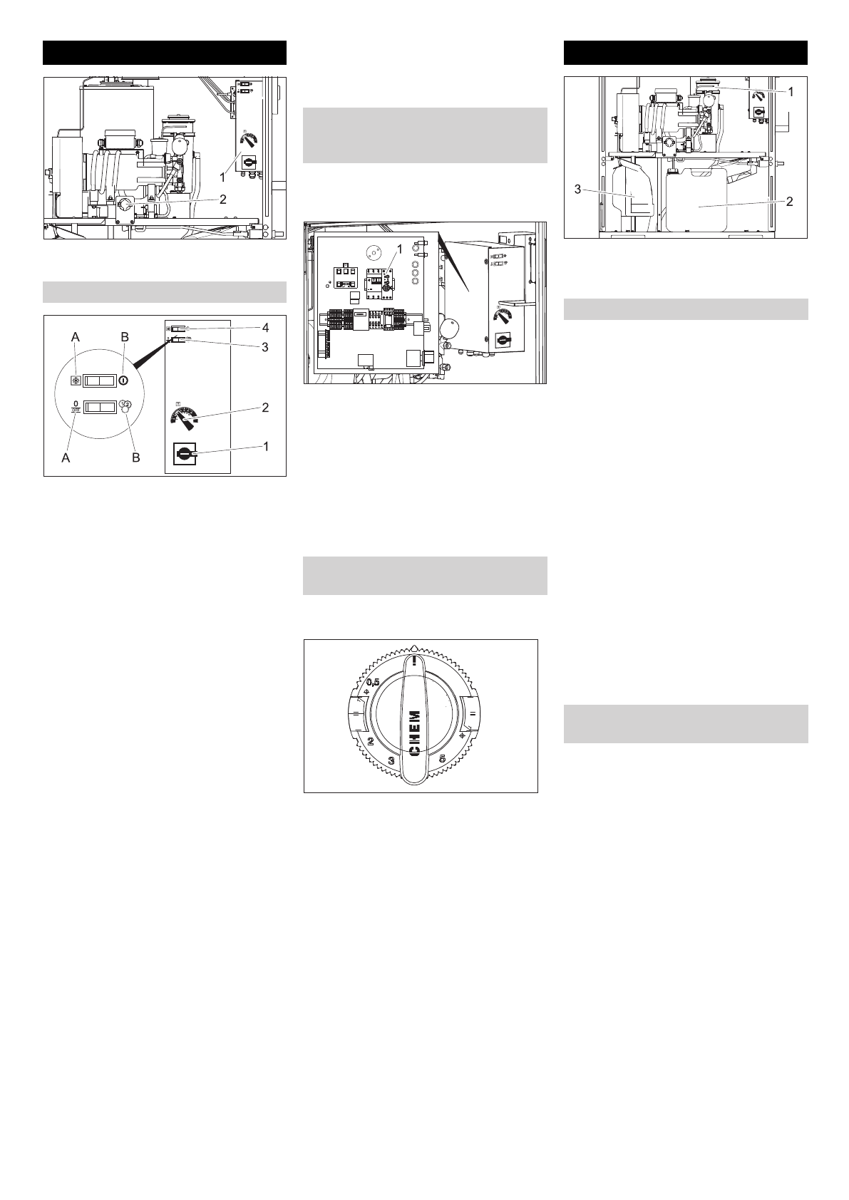
1 RM 110
2
Detergente
3 Combustível
Perigo!
Perigo por substâncias nocivas à saúde.
Todos os detergentes da Kärcher são
acompanhados por avisos de segurança e
de utilização. Ler e respeitar os avisos an-
tes da aplicação. Utilizar o vestuário bem
como o equipamento de segurança men-
cionado.
Ter atenção aos avisos de segurança nos
detergentes.
Atenção
Se o recipiente dos detergentes estiver va-
zio, a bomba de alta pressão aspira ar e
pode ser danificada. Controlar o recipiente
do detergente em intervalos regulares. Os
filtros têm que situar-se no fundo do reci-
piente do produto de limpeza.
Abrir o recipiente do detergente.
Misturar o detergente com água segun-
do as indicações na embalagem.
Inserir detergente ou substituir o reci-
piente vazio por um cheio.
Fechar o recipiente do detergente.
No caso de um esvaziamento total do reci-
piente do detergente ou durante a primeira
colocação em funcionamento é necessário
efectuar a purga do ar no tubo de aspiração
do detergente:
Ajustar o programa de lavagem com
detergente (no interruptor selector de
programas).
Ajustar (rodar) a válvula de dosagem
do detergente para a dosagem máxi-
ma.
Iniciar a bomba de alta pressão através
da abertura da pistola pulverizadora
manual e aguardar até o tubo de aspi-
ração ficar isento de bolhas de ar.
Fechar a pistola pulverizadora manual.
Reajustar a válvula de dosagem no va-
lor inicial.
Ajustes
Ajustes no armário de distribuição
Interruptor principal
Regulador de temperatura
Interruptor da operação permanente/dis-
positivo de comprovação de moedas
Interruptor ligado/protecção anticonge-
lante
Ajustes no armário de distribuição
(apenas com comprovador de moe-
das ABS)
Ajustes na válvula de dosagem do
detergente
Encher produtos de consumo
Encher de detergente
Purgar o ar do tubo de aspiração do
detergente
78
PT












