Морозильные камеры VIATTO HF400G - инструкция пользователя по применению, эксплуатации и установке на русском языке. Мы надеемся, она поможет вам решить возникшие у вас вопросы при эксплуатации техники.
Если остались вопросы, задайте их в комментариях после инструкции.
"Загружаем инструкцию", означает, что нужно подождать пока файл загрузится и можно будет его читать онлайн. Некоторые инструкции очень большие и время их появления зависит от вашей скорости интернета.

Расположение в помещении
Прибор должен быть расположен в сухом, хорошо вентилируемом помещении. В целях
обеспечения условий для эффективного функционирования прибор не должен быть
размещен под воздействием прямых солнечных лучей, либо вблизи источников тепла.
Оптимальная температура окружающей среды от +16 °С до +35°С.
При размещении прибора в условиях повышенной влажности может понадобиться
установка дополнительного оборудования для повторного испарения сточной воды над
компрессором. Данное оборудование должно закупаться дополнительно.
Приборы из нержавеющей стали:
Приборы не должны быть расположены в условиях повышенной кислотности, либо
содержания хлора в целях предотвращения образования коррозии.
Прибор должен быть установлен около стены, обособленно от другого оборудования,
либо под рабочей поверхностью.
Важно
Для прибора должна быть обеспечена хорошая вентиляция, а также свободный доступ
воздуха со всех сторон.
К нижней и задней панели прибора также должен быть обеспечен свободный доступ
воздуха.
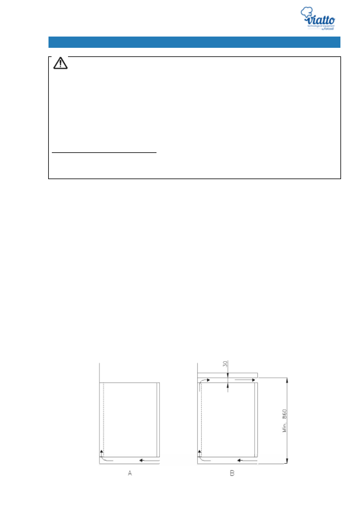
На рисунках изображено, на каком расстоянии от других объектов должен быть
расположен прибор.
А – изображен прибор, расположенный у стены, обособленно от других объектов.
В – изображен прибор, расположенный под рабочей поверхностью
(HR200/HR200G/HF200). Между прибором и рабочей поверхностью должно быть
соответствующее расстояние для осуществления необходимой циркуляции воздуха.
Если прибор установлен под рабочей поверхностью таким образом, что необходимое
расстояние не может быть соблюдено, рабочая поверхность должна быть оснащена
специальным вентиляционным каналом.
Рисунок 1.
Характеристики
Остались вопросы?Не нашли свой ответ в руководстве или возникли другие проблемы? Задайте свой вопрос в форме ниже с подробным описанием вашей ситуации, чтобы другие люди и специалисты смогли дать на него ответ. Если вы знаете как решить проблему другого человека, пожалуйста, подскажите ему :)













