Морозильные камеры DEXP F4-0210AMG - инструкция пользователя по применению, эксплуатации и установке на русском языке. Мы надеемся, она поможет вам решить возникшие у вас вопросы при эксплуатации техники.
Если остались вопросы, задайте их в комментариях после инструкции.
"Загружаем инструкцию", означает, что нужно подождать пока файл загрузится и можно будет его читать онлайн. Некоторые инструкции очень большие и время их появления зависит от вашей скорости интернета.

11
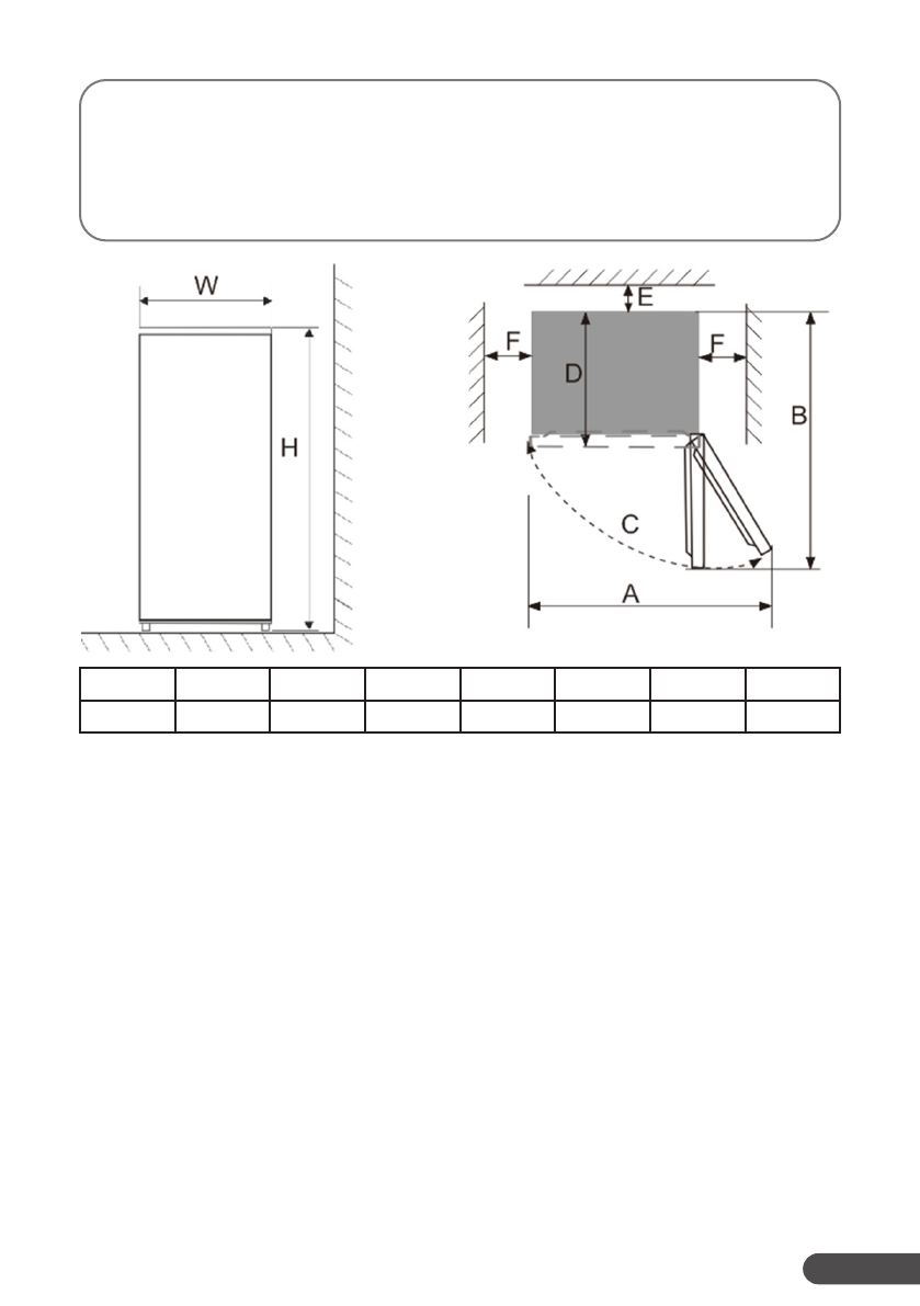
ВНИМАНИЕ!
Недостаточное расстояние между прибором и другими предметами может приве
-
сти к увеличению энергопотребления и ухудшению замораживающей способности
прибора. Необходимо обеспечить расстояние не менее 100 мм до ближайших стен
и иных предметов при установке изделия.
W
D
H
A
B
C
Е
F
544 мм
641 мм
1700 мм
890 мм
1096 мм
125
о
50 мм
100 мм







