Морозильные камеры Maunfeld MFFR185W - инструкция пользователя по применению, эксплуатации и установке на русском языке. Мы надеемся, она поможет вам решить возникшие у вас вопросы при эксплуатации техники.
Если остались вопросы, задайте их в комментариях после инструкции.
"Загружаем инструкцию", означает, что нужно подождать пока файл загрузится и можно будет его читать онлайн. Некоторые инструкции очень большие и время их появления зависит от вашей скорости интернета.

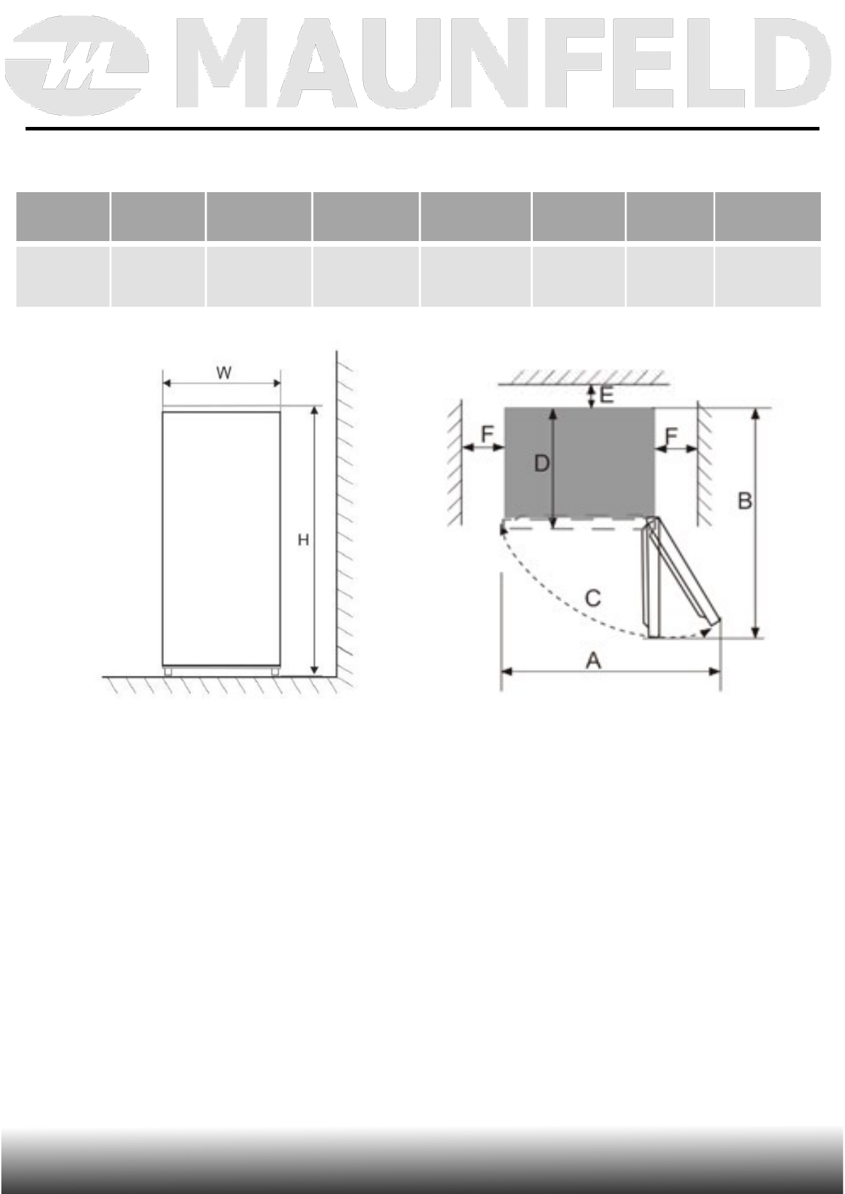
УСТАНОВКА МОРОЗИЛЬНОЙ КАМЕРЫ
РАЗМЕЩЕНИЕ МОРОЗИЛЬНОЙ КАМЕРЫ
W
D
H
A
B
C (
֯
)
E
F
710 мм
770 мм
1855 мм
1297 мм
1407 мм
130 ± 5
50 мм
100 мм
Примечание
: На рисунках иллюстрируются пространство,
необходимое для морозильной камеры.
-14-
www.maunfeld.ru
3. Установка
Поместите морозильную камеру на твердое и ровное основание
(пол), чтобы он был устойчивым, в противном случае неправильная
установка вызовет вибрацию и шум.
Если морозильная камера установлена в месте с повышенной
влажностью, убедитесь, что провод заземления и автоматический
выключатель утечки находятся в нормальном состоянии. Если из-за
контакта морозильной камеры со стеной возникает вибрационный
шум или если стенка почернела из-за конвекции воздуха вокруг
компрессора, отодвиньте морозильную камеру от стены.













