Морозильные камеры Maunfeld MFFR170W - инструкция пользователя по применению, эксплуатации и установке на русском языке. Мы надеемся, она поможет вам решить возникшие у вас вопросы при эксплуатации техники.
Если остались вопросы, задайте их в комментариях после инструкции.
"Загружаем инструкцию", означает, что нужно подождать пока файл загрузится и можно будет его читать онлайн. Некоторые инструкции очень большие и время их появления зависит от вашей скорости интернета.

УСТАНОВКА МОРОЗИЛЬНОЙ КАМЕРЫ
-14-
www.maunfeld.ru
РАЗМЕЩЕНИЕ МОРОЗИЛЬНОЙ КАМЕРЫ
3. Установка
Поместите морозильную камеру на твердое и ровное основание
(пол), чтобы он был устойчивым, в противном случае неправильная
установка вызовет вибрацию и шум.
Если морозильная камера установлена в месте с повышенной
влажностью, убедитесь, что провод заземления и автоматический
выключатель утечки находятся в нормальном состоянии. Если из-за
контакта морозильной камеры со стеной возникает вибрационный
шум или если стенка почернела из-за конвекции воздуха вокруг
компрессора, отодвиньте морозильную камеру от стены.
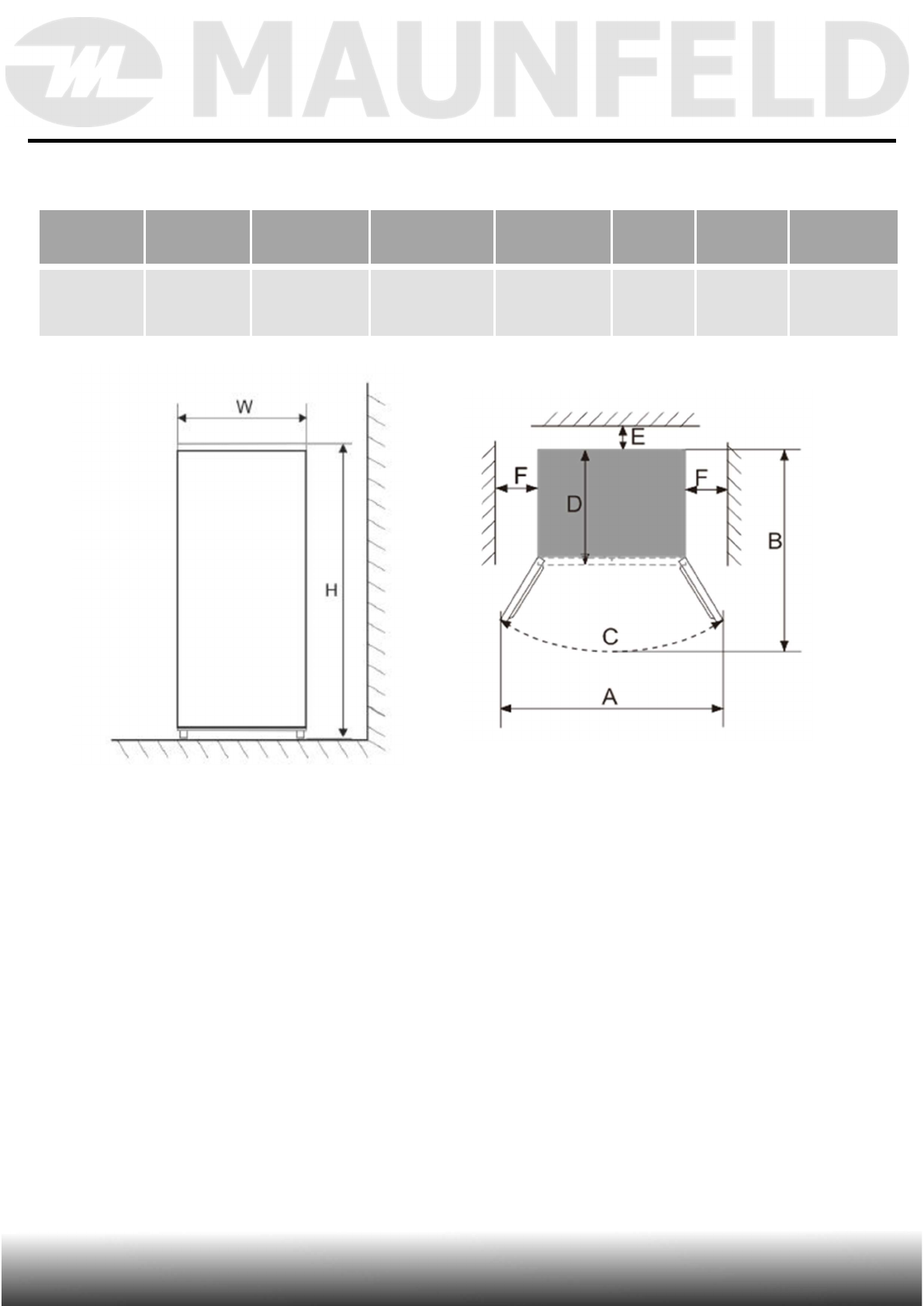
Примечание
: На рисунках иллюстрируются пространство,
необходимое для морозильной камеры.
W
D
H
A
B
C (
֯
)
E
F
544 мм
641 мм
1690 мм
890 мм
1096 мм
125
50 мм
100 мм
Содержание
- 3 СОДЕРЖАНИЕ
- 4 РЕКОМЕНДАЦИИ; ВНИМАТЕЛЬНО ОЗНАКОМЬТЕСЬ С ИНСТРУКЦИЕЙ И
- 6 МЕРЫ БЕЗОПАСНОСТИ
- 8 ХЛАДАГЕНТ И РИСК ВОЗНИКНОВЕНИЯ ПОЖАРА
- 9 ТЕХНИЧЕСКИЕ ДАННЫЕ; РАСШИФРОВКА АББРЕВИАТУР; SB
- 11 ДАННЫЕ ПО ЭНЕРГОПОТРЕБЛЕНИЮ
- 12 ПОДКЛЮЧЕНИЕ К ЭЛЕКТРОСЕТИ
- 13 РЕКОМЕНДАЦИИ ПО УСТАНОВКЕ
- 14 УСТАНОВКА МОРОЗИЛЬНОЙ КАМЕРЫ; РИСУНОК-СХЕМА РЕКОМЕНДУЕМОГО РАЗМЕЩЕНИЯ
- 15 РАЗМЕЩЕНИЕ МОРОЗИЛЬНОЙ КАМЕРЫ
- 16 ВЫРАВНИВАНИЕ МОРОЗИЛЬНОЙ КАМЕРЫ
- 17 ПЕРЕНАВЕШИВАНИЕ ДВЕРЕЙ
- 21 ОПИСАНИЕ МОРОЗИЛЬНОЙ КАМЕРЫ
- 22 ОПИСАНИЕ МОРОЗИЛЬНОЙ КАМЕРЫ
- 23 ПЕРВОЕ ВКЛЮЧЕНИЕ; УСТАНОВКА ТЕМПЕРАТУРЫ
- 24 ОПИСАНИЕ ФУНКЦИЙ; ФУНКЦИЯ «БЫСТРОЙ ЗАМОРОЗКИ»
- 25 МОРОЗИЛЬНАЯ КАМЕРА
- 26 СОВЕТЫ ПО ЗАМОРАЖИВАНИЮ ПРОДУКТОВ
- 27 ВЫКЛЮЧЕНИЕ МОРОЗИЛЬНОЙ КАМЕРЫ
- 28 СОВЕТЫ ПО ЭНЕРГОСБЕРЕЖЕНИЮ
- 29 ЧИСТКА И УХОД
- 31 УСТРАНЕНИЕ НЕПОЛАДОК
- 33 КОДЫ ОШИБОК НА ДИСПЛЕЕ
- 34 ТЕХНИЧЕСКОЕ ОБСЛУЖИВАНИЕ; ИНФОРМАЦИЯ О ТРАНСПОРТИРОВКЕ
- 35 СЕРВИСНОЕ ОБСЛУЖИВАНИЕ; СЕРВИСНОЕ ОБСЛУЖИВАНИЕ ПОСЛЕ ПРОДАЖИ
- 36 ИНФОРМАЦИЯ ОТ ПРОИЗВОДИТЕЛЯ; XXXXXXXXXXXX













