Морозильные камеры Gorenje F6171CW - инструкция пользователя по применению, эксплуатации и установке на русском языке. Мы надеемся, она поможет вам решить возникшие у вас вопросы при эксплуатации техники.
Если остались вопросы, задайте их в комментариях после инструкции.
"Загружаем инструкцию", означает, что нужно подождать пока файл загрузится и можно будет его читать онлайн. Некоторые инструкции очень большие и время их появления зависит от вашей скорости интернета.

Gebrauchsanweisung
7
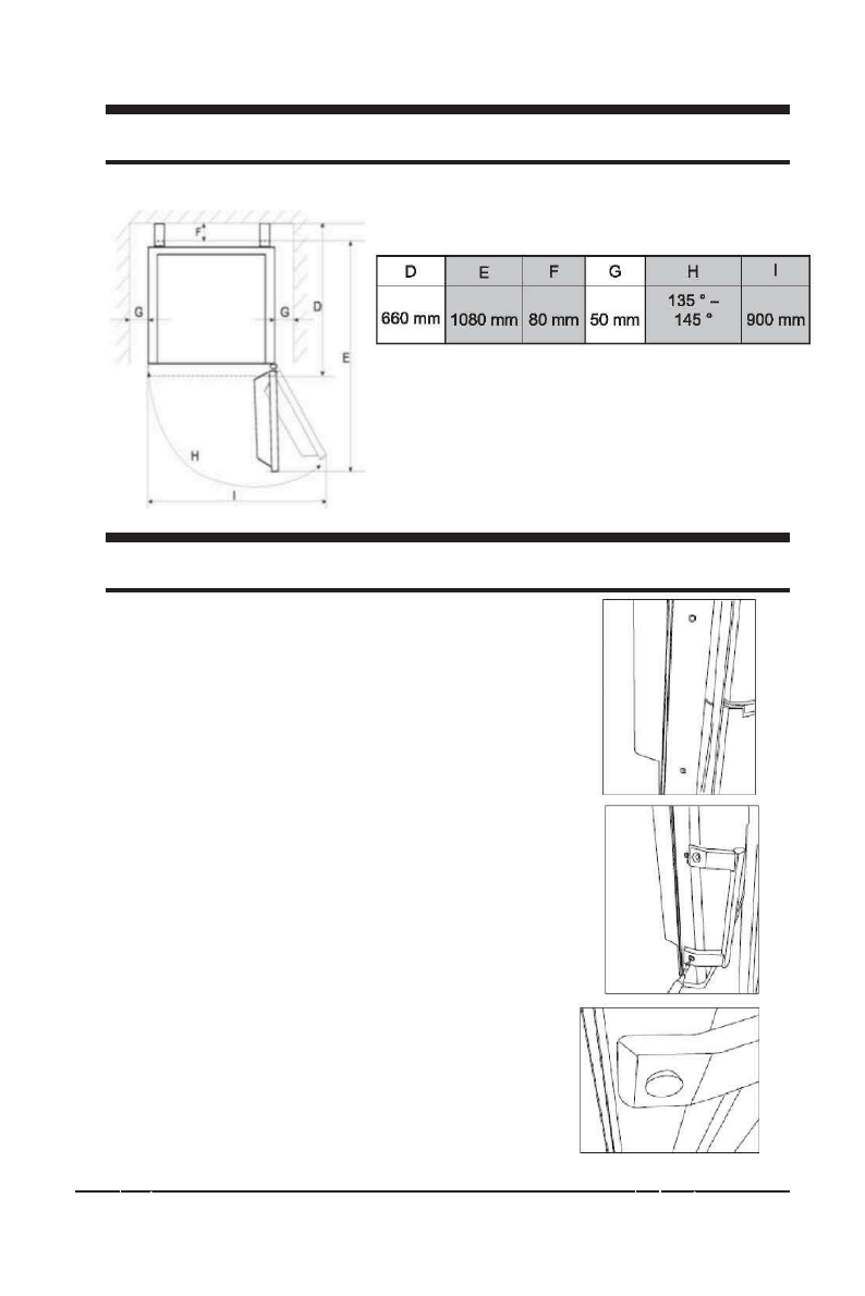
Aufstellung des Gerätes
Montage des Türgriffs
1. Nehmen Sie die Stopfen der Schraubenöffnungen an der Tür ab.
2. Befestigen Sie den Türgriff mit zwei Schrauben.
3. Stecken Sie die Plastikstopfen wieder in die Öffnungen.
Содержание
- 200 Установка и подключение
- 203 Описание аппарата; Использование прибора
- 204 Управление прибором; Электронная панель управления
- 206 Замораживание продуктов; Хранение замороженных продуктов
- 207 Оттаивание замороженных продуктов; Изменение направления открывания двери
- 210 Очистка и обслуживание; Размораживание прибора; Выключайте прибор, если им не
- 211 Устранение неисправностей
- 212 Partizanska 12