Микроволновые печи Samsung CE1352MR - инструкция пользователя по применению, эксплуатации и установке на русском языке. Мы надеемся, она поможет вам решить возникшие у вас вопросы при эксплуатации техники.
Если остались вопросы, задайте их в комментариях после инструкции.
"Загружаем инструкцию", означает, что нужно подождать пока файл загрузится и можно будет его читать онлайн. Некоторые инструкции очень большие и время их появления зависит от вашей скорости интернета.

20
RU
Применение
блюда
для
получения
корочки
Только
модель
CE1351TR / CE1353FR
Обычно
при
использовании
режима
гриля
или
режима
СВЧ
для
приготовления
в
микроволновой
печи
типа
гриль
/
конвекционная
таких
блюд
,
как
пицца
или
пирожные
,
выпуклая
сторона
остается
непропеченой
.
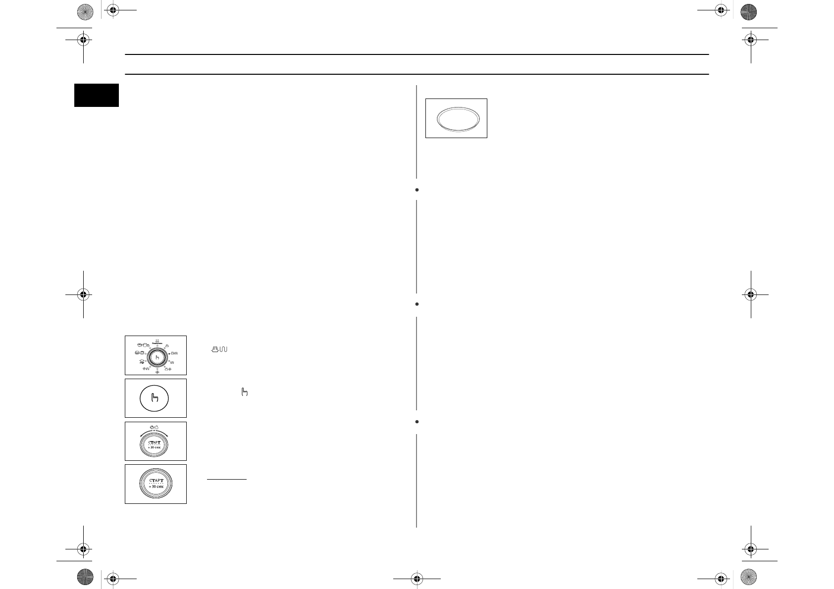
Блюдо
фирмы
Samsung,
используемое
для
получения
корочки
,
позволяет
получить
хорошо
пропеченые
хрустящие
изделия
.
Это
блюдо
можно
также
использовать
для
бекона
,
яиц
,
сосисок
и
т
.
д
.
☛
Перед
использованием
блюда
подогрейте
его
в
комбинированном
режиме
в
течение
3-5
минут
.
•
Комбинированный
режим
конвекции
(250°C)
и
СВЧ
.
(
уровень
мощности
600
Вт
)
•
Комбинированный
режим
гриля
и
СВЧ
(
уровень
мощности
600
Вт
)
•
См
.
Стр
. 25
и
Стр
. 26
соответственно
.
Способ
очистки
блюда
для
получения
корочки
☛
Это
блюдо
покрыто
слоем
тефлона
,
и
при
неправильном
обращении
он
может
повредиться
.
•
Никогда
не
разрезайте
продукты
на
этом
блюде
.
Перед
тем
,
как
нарезать
приготовленную
еду
,
снимите
ее
с
блюда
.
•
Рекомендуется
переворачивать
продукты
с
помощью
пластмассовой
или
деревянной
лопатки
.
1.
Подогрейте
блюдо
так
,
как
это
описано
выше
.
•
Все
время
пользуйтесь
перчатками
для
печи
,
поскольку
блюдо
сильно
нагревается
.
2.
Если
вы
собираетесь
готовить
бекон
или
яйца
,
смажьте
блюдо
растительным
маслом
,
чтобы
продукт
красиво
подрумянился
.
3.
Положите
продукт
на
блюдо
.
•
Не
ставьте
на
это
блюдо
посуду
,
которая
не
выдерживает
высоких
температур
(
например
,
пластмассовые
миски
).
4.
Поставьте
блюдо
в
печь
на
поворотный
круг
.
•
Никогда
не
ставьте
блюдо
в
печь
без
поворотного
круга
.
5.
Поверните
Регулятор
настройки
в
положение
Комби
(
).
6.
Задайте
нужный
уровень
мощности
,
нажимая
кнопку
Выбор
(
).
7.
Затем
установите
время
приготовления
,
поворачивая
Шаговый
регулятор
,
пока
не
отобразится
нужное
время
приготовления
.
8.
Нажмите
кнопку
CTAPT
.
Результат
:
начнется
приготовление
блюда
.
◆
По
окончании
приготовления
раздастся
зуммерный
сигнал
и
“0”
мигнет
четыре
раза
.
После
этого
зуммерный
сигнал
будет
повторяться
каждую
минуту
.
Лучший
способ
очистить
блюдо
–
это
вымыть
его
горячей
водой
с
моющим
средством
.
После
этого
его
нужно
сполоснуть
чистой
водой
.
Не
применяйте
для
очистки
жесткую
щетку
или
твердую
губку
,
иначе
верхний
слой
будет
поврежден
.
jlXZ\Wyi~{TWY`ZXiUGGwGYWGG{ SGt GY]SGYWW\GG\aW^Gwt












