Микроволновые печи Samsung CE1150R - инструкция пользователя по применению, эксплуатации и установке на русском языке. Мы надеемся, она поможет вам решить возникшие у вас вопросы при эксплуатации техники.
Если остались вопросы, задайте их в комментариях после инструкции.
"Загружаем инструкцию", означает, что нужно подождать пока файл загрузится и можно будет его читать онлайн. Некоторые инструкции очень большие и время их появления зависит от вашей скорости интернета.

18
RU
Использование
режима
автоматической
пароварки
Режим
Автоматическая
пароварка
(
)
обеспечивает
запрограммированное
время
приготовления
.
Вам
не
нужно
задавать
ни
время
приготовления
,
ни
уровень
мощности
.
Количество
порций
можно
задать
,
поворачивая
Шаговый
регулятор
.
Сначала
положите
продукт
в
центре
поворотного
круга
и
закройте
дверцу
.
Использование
режима
Автоматическая
пароварка
В
таблице
,
приведенной
ниже
,
представлены
разные
программы
приготовления
в
режиме
Автоматическая
пароварка
,
количества
продукта
,
времена
выдержки
и
соответствующие
рекомендации
.
Эти
программы
можно
использовать
только
с
применением
комплекта
оборудования
пароварки
.
Время
приготовления
зависит
от
размера
,
толщины
и
виды
продукта
.
При
обработке
паром
тонких
ломтиков
или
небольших
кусков
нажмите
кнопку
Меньше
.
При
обработке
паром
толстых
ломтиков
или
больших
кусков
продукта
можно
увеличить
время
приготовления
с
помощью
кнопки
Больше
.
При
работе
этих
программ
используется
только
энергия
волн
СВЧ
.
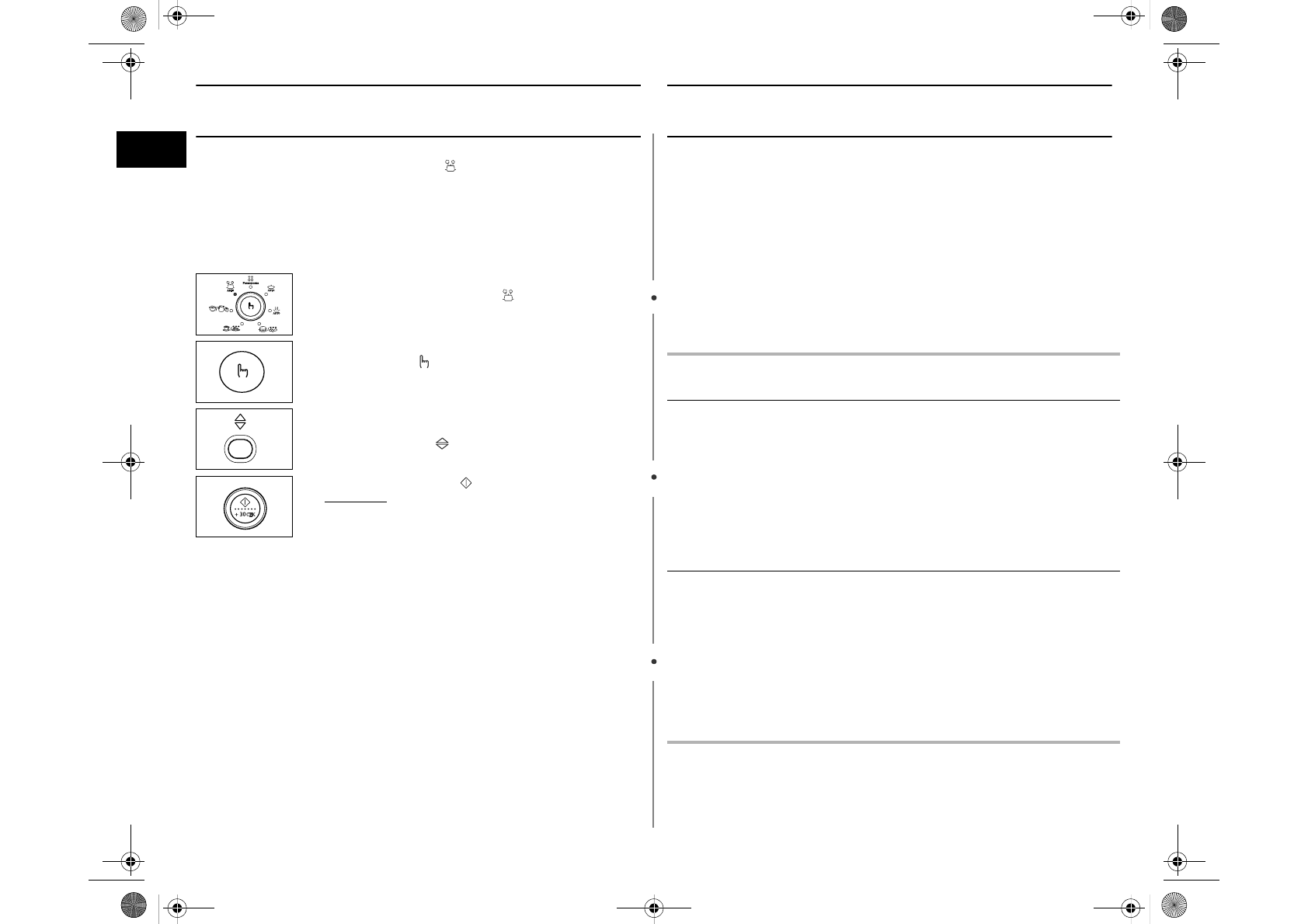
1.
Поверните
Регулятор
настройки
в
положение
Автоматическая
пароварка
(
).
2.
Вид
обрабатываемого
продукта
выберите
,
нажимая
кнопку
Выбор
(
).
Описание
параметров
запрограммированных
режимов
находится
на
следующей
странице
.
3.
Если
необходимо
,
увеличьте
или
уменьшите
время
приготовления
,
нажимая
соответственно
кнопки
Больше
/
Меньше
(
).
4.
Нажмите
кнопку
Пуск
(
).
Результат
:
блюдо
будет
готовиться
в
соответствии
с
выбранным
запрограммированным
режимом
.
◆
Когда
обработка
закончится
,
раздастся
зуммерный
сигнал
и
“
ПРИЯТНОГО
АППЕТИТА
”
мигнет
четыре
раза
.
После
этого
зуммерный
сигнал
будет
повторяться
каждую
минуту
.
Код Продукт
Размер
порции
Количествох
олодной
воды
Рекомендации
1
Свежие
овощи
(
небольшие
кусочки
)
200-800
г
500
мл
Промойте
и
очистите
овощи
,
нарежьте
их
на
ломтики
или
кусочки
равных
размеров
.
Налейте
Ѕ
литра
воды
в
прямоугольную
емкость
пароварки
.
Установите
в
емкости
лоток
из
нержавеющей
стали
,
положите
овощи
и
накройте
квадратной
крышкой
из
нержавеющей
стали
.
Поставьте
емкость
на
поворотный
круг
.
Эта
программа
походит
для
приготовления
небольших
кусочков
овощей
,
например
,
соцветий
брокколи
и цветной
капусты
,
нарезанных
ломтиками
моркови
,
кабачков
и
перца
.
2
Свежие
овощи
(
большие
кусочки
)
200-800
г
500
мл
Промойте
и
очистите
овощи
.
Налейте
½
литра
воды
в
прямоугольную
емкость
пароварки
.
Установите
в емкости
лоток
из
нержавеющей
стали
,
положите
овощи
и
накройте
квадратной
крышкой
из
нержавеющей
стали
.
Поставьте
емкость
на
поворотный
круг
.
Эта
программа
походит
для
приготовления
больших
кусков
овощей
,
например
початков
кукурузы
,
артишоков
,
целых
кочнов
цветной
капусты
,
целых
романеско
,
целых
картофелин
и
капусты
,
разрезанной
на
четыре
части
.
jlXX\Wy|UGGwGX_GG{ SGhG\SGYWWZGGYaZWGwt












