Микроволновые печи Wolf ICBMDD30TE/S/TH - инструкция пользователя по применению, эксплуатации и установке на русском языке. Мы надеемся, она поможет вам решить возникшие у вас вопросы при эксплуатации техники.
Если остались вопросы, задайте их в комментариях после инструкции.
"Загружаем инструкцию", означает, что нужно подождать пока файл загрузится и можно будет его читать онлайн. Некоторые инструкции очень большие и время их появления зависит от вашей скорости интернета.

16
|
English
E
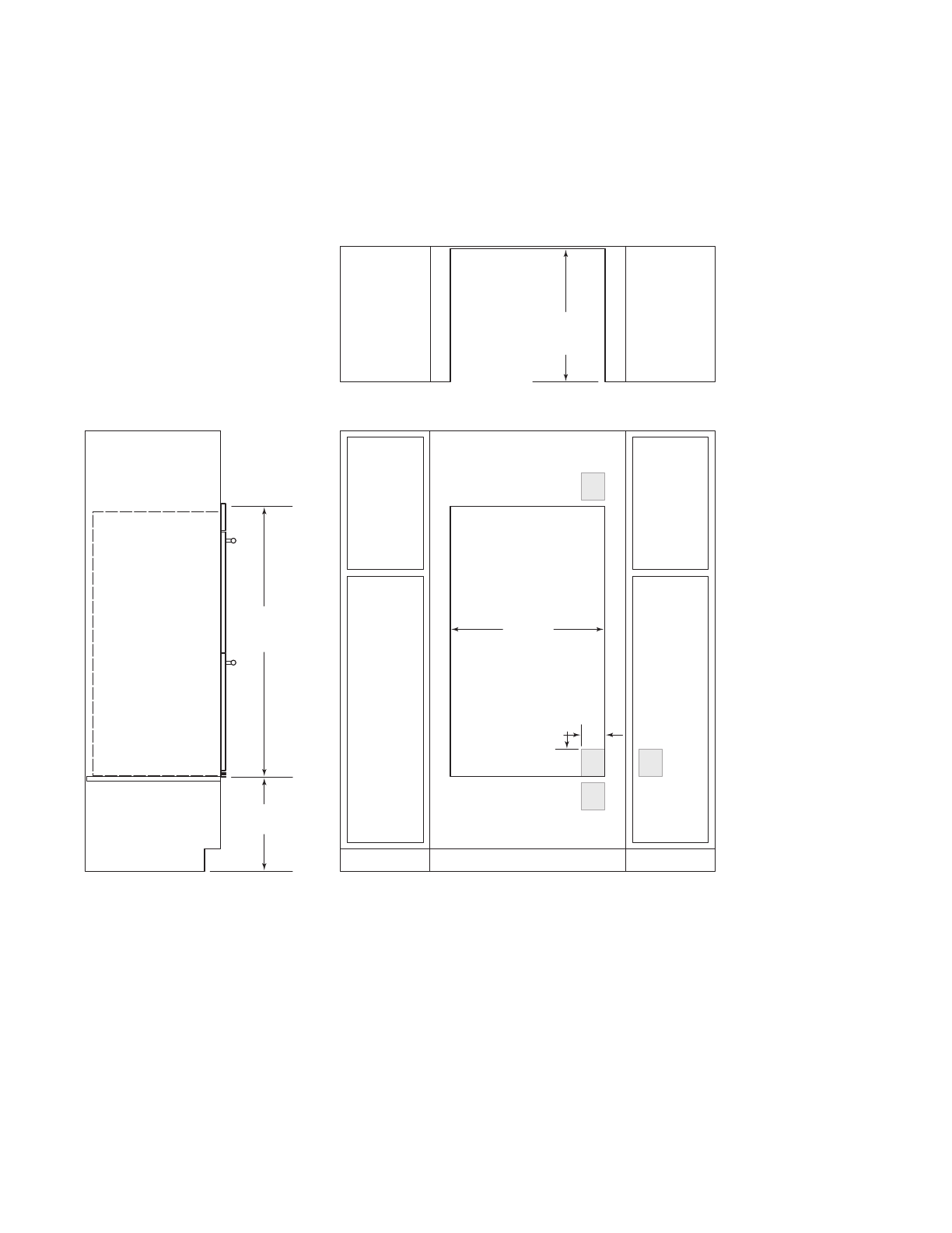
FRONT VIEW
SIDE VIEW
NOTE: Location of electrical supply within opening may require additional cabinet depth.
Dashed line represents profile of unit.
1264 mm
OPENING
HEIGHT
610 mm
OPENING
DEPTH
724 mm
OPENING WIDTH
432 mm
TYPICAL
TOP VIEW
E
E
127
mm
102
mm
E
E Series Double Oven
STANDARD INSTALLATION
WOLF E SERIES OVENS
Характеристики
Остались вопросы?Не нашли свой ответ в руководстве или возникли другие проблемы? Задайте свой вопрос в форме ниже с подробным описанием вашей ситуации, чтобы другие люди и специалисты смогли дать на него ответ. Если вы знаете как решить проблему другого человека, пожалуйста, подскажите ему :)