Материнские платы MSI B450M PRO-VDH - инструкция пользователя по применению, эксплуатации и установке на русском языке. Мы надеемся, она поможет вам решить возникшие у вас вопросы при эксплуатации техники.
Если остались вопросы, задайте их в комментариях после инструкции.
"Загружаем инструкцию", означает, что нужно подождать пока файл загрузится и можно будет его читать онлайн. Некоторые инструкции очень большие и время их появления зависит от вашей скорости интернета.

7
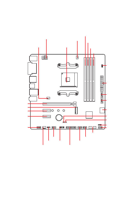
Panneau arrière Entrée/ Sortie
Vue d
’
ensemble des composants
CPU_FAN1
Socket
processeur
SYS_FAN1
PCI_E3
JAUD1
PCI_E2
M2_1
PCI_E1
DIMMA1
DIMMA2
DIMMB1
DIMMB2
JBAT1
JCI1
JFP2
JFP1
JUSB3
ATX_PWR1
CPU_PWR1
EZ Debug LED
SATA2
SATA1
JTPM1
JUSB1
JLPT1
JRGB1
JUSB2
JCOM1
SYS_FAN2
SATA
▼
3
▲
4
Vue d
’
ensemble des composants
Характеристики
Остались вопросы?Не нашли свой ответ в руководстве или возникли другие проблемы? Задайте свой вопрос в форме ниже с подробным описанием вашей ситуации, чтобы другие люди и специалисты смогли дать на него ответ. Если вы знаете как решить проблему другого человека, пожалуйста, подскажите ему :)