Магнитолы Kenwood DDX5015BT (BTR) (DAB) - инструкция пользователя по применению, эксплуатации и установке на русском языке. Мы надеемся, она поможет вам решить возникшие у вас вопросы при эксплуатации техники.
Если остались вопросы, задайте их в комментариях после инструкции.
"Загружаем инструкцию", означает, что нужно подождать пока файл загрузится и можно будет его читать онлайн. Некоторые инструкции очень большие и время их появления зависит от вашей скорости интернета.

PRK SW
REVERSE
58
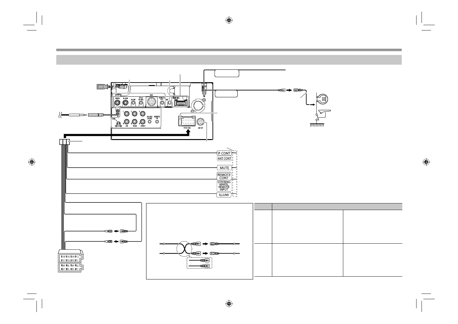
ПОДСОЕДИНЕНИЕ/УСТАНОВКА
ПОДСОЕДИНЕНИЕ/УСТАНОВКА
Подсоединение
R
Подсоединение проводов к контактным
разъемам
Стр. 59–60
Стр. 61
Разъем USB (0,8 м):
Стр. 59–60
Подключите антенный
кабель к разъему
антенны.
Предохранитель 10 А
Подсоедините к жгуту проводки лампы
заднего хода автомобиля при использовании
опционной камеры заднего вида.
Подсоедините к жгуту
проводки выключателя
обнаружения стояночного
тормоза автомобиля.
• Для обеспечения
максимальной безопасности
обязательно подсоединяйте
датчик парковки.
На разъем регулировки мощности, если используется опционный
усилитель мощности, или на разъем контроля антенны.
На разъем, который заземляется при звонке телефона или во
время разговора. (Для подсоединения системы навигации Kenwood
обращайтесь к руководству, прилагаемому к вашей системе навигации.)
Для использования функции рулевого пульта дистанционного
управления требуется выделенный адаптер дистанционного управления
(не прилагается в комплекте поставки), подходящей вашему автомобилю.
К переключателю управления освещением автомобиля
Фиолетовый с белой полосой
(Провод датчика заднего
хода)
Светло-зеленый
(Провод датчика
парковки)
3
1
Синий с белой полосой (Провод регулировки мощности/контроля антенны)
Коричневый (Провод управления заглушением звука)
Голубой с желтой полосой (Провод рулевого пульта дистанционного управления)
Оранжевый с белой полосой (Провод управления затемнением)
*
1
Только для DDX7015BT/DDX5015BT/DDX5015DAB.
*
2
Если никаких соединений не выполняется, не
давайте кабелю выходить из-под щитка.
Соединитель A
Соединитель B
Контакт Цвет и функции соединителя A и B
A4
Желтый цвет
Батарея
A5
Синий/Белый
Регулировка мощности
A6
Оранжевый/Белый
Затемнение
A7
Красный цвет
Зажигание (ACC)
A8
Черный
Подсоединение заземления
B1/B2 Фиолетовый
ª
/ Фиолетовый/
Черный
·
Правый динамик (задний)
B3/B4 Серый
ª
/ Серый/Черный
·
Правый динамик (передний)
B5/B6 Белый
ª
/ Белый/Черный
·
Левый динамик (передний)
B7/B8 Зеленый
ª
/ Зеленый/Черный
·
Левый динамик (задний)
Красный цвет
(Провод зажигания)
Устройство
Желтый цвет
(Провод
аккумуляторной
батареи)
Автомобиль
Красный (A7)
Желтый (A4)
Проводка по умолчанию
Подсоединение соединителей ISO для некоторых
автомобилей VW/Audi или Opel (Vauxhall)
Вам может потребоваться модифицировать
проводку прилагаемого жгута проводки, как
это показано на рисунке ниже.
*
2
Желтый (Провод аккумуляторной
батареи)
Красный (Провод зажигания)
Красный (A7)
Желтый (A4)
Стр. 59–60
Подсоедините адаптер, имеющийся в коммерческой продаже. См. стр. 60.*
1
DDX_Mid_E_RU.indb 58
DDX_Mid_E_RU.indb 58
19/12/2014 2:56:46 PM
19/12/2014 2:56:46 PM
Содержание
- 3 РУCCКИЙ; Декларация соответствия относительно; Как перенастроить Ваше устройство; ПЕРЕД ИСПОЛЬЗОВАНИЕМ
- 4 Начальная настройка; Регистрация защитного кода
- 5 Включение функции обеспечения; Отключение функции обеспечения; Настройки часов
- 6 Названия и функции компонентов; Предостережение, касающееся
- 7 ОСНОВНАЯ ИНФОРМАЦИЯ; Включение питания; Ослабление звука (Только для DDX5015DAB/; Регулировка угла панели (Только для; Откройте экран
- 8 Отобразите все элементы на; Выключение экрана; Стандартные операции на экране; Стандартные описания экрана; Экран управления источником
- 9 Упрощенный экран управления; Управление на сенсорном экране
- 10 Выбор источника воспроизведения; Отображение кнопок быстрого доступа
- 11 ДИСКИ; Воспроизведение диска; Установка диска; “DISC”; Извлечение диска; Закрытие панели монитора (Только для; Воспроизведение; Элементы индикации и кнопки на; Для воспроизведения видео
- 12 Кнопки операций; Для воспроизведения аудио
- 13 Выбор папки/дорожки из списка; Для воспроизведения видео, кроме VCD
- 14 Выбор дорожки непосредственно на VCD; Выбор режима воспроизведения; REP
- 15 Элементы настройки
- 16 Подключение устройства USB; “USB”; Информация о воспроизведении
- 17 USB; Выбор дорожки из списка; Подготовка; Подключение iPod/iPhone; Проводное соединение
- 18 Подключение Bluetooth; Выбор устройства iPod/iPhone
- 19 “iPod”
- 20 All
- 21 APPs; Запустите приложение на используемом; “APPs”; в качестве источника.; Чтобы вернуться на экран экране управления
- 22 Подключите устройство.
- 23 Выбор радиостанции; Отобразите экран; Требования для AUPEO!; iPhone или iPod touch
- 24 Прослушивание радио; Информация о приеме тюнера
- 25 ТЮНЕР; Автоматическое программирование—; Настройте приемник на сигнал станции,; Функции FM Radio Data System; Резервный прием TI
- 26 Резервный прием новостей; Отслеживание той же программы—; Изменение настройки сеть-отслеживающего; Автоматический поиск радиостанций; Включение функции Auto TP Seek
- 27 О цифровом радио DAB (Digital; Что такое система “DAB”?; Прослушивание цифрового радио
- 28 Программирование сервисов; Сохранение сервисов в памяти; Выберите сервис, который вы хотите
- 29 Функции Radio Data System; Отключение функции резервного приема TI:; Использование функции
- 30 Настройки для цифрового радио
- 31 видеопроигрывателей—AV-IN; Запуск воспроизведения; Использование камеры заднего; Включение камеры заднего вида
- 32 Отображение картинки с камеры; Отображение картинки с камеры заднего вида; Использование парковочных линий; Отображение парковочных линий; Регулировка парковочных линий; Отобразите экран настройки
- 33 Об адаптерах Miracast Dongle; Отображение экрана смартфона; Просмотр телевизора; Отображение экрана ТВ
- 34 Просмотр экрана навигации
- 35 BLUETOOTH; Информация относительно; Примечания; Подключение устройств Bluetooth; Регистрация нового устройства; Автоматическое сопряжение; Выполните поиск устройства
- 36 Сопряжение с устройством Bluetooth с
- 37 Сопряжение с устройством Bluetooth с данного; Подключение и отключение
- 38 Отклонение звонка
- 39 Отправка текста во время звонка; Отобразите экран управления; Из списка запрограммированных номеров/
- 40 Прямой ввод номера
- 41 Программирование телефонных; Использование
- 43 Настройки для использования
- 44 Использование звукового эквалайзера; Выбор запрограммированного режима звучания; Настройка типа автомобиля и
- 45 Настройка динамиков — размер; Настройка позиции прослушивания
- 46 Настройка цифровой регулировки; Регулировка для; Настройка картинки
- 47 Изменение форматного соотношения; Масштабирование картинки
- 48 Выбор фона; Выполнение собственной
- 49 НАСТРОЙКИ; Пользовательская настройка; Запоминание/вызов из памяти
- 50 Блокировка настроек; Разблокировка настройки:; Обновление системы
- 54 Обзор; Установка батареек; Операции, выполняемые с пульта
- 55 ПУЛЬТ ДИСТАНЦИОННОГО УПРАВЛЕНИЯ; видеофайл/файл изображения; Прямой поиск частоты тюнера
- 56 Перед установкой устройства; ПРЕДУПРЕЖДЕНИЯ; ПРЕДОСТЕРЕЖЕНИЕ
- 57 Прилагаемые принадлежности для; Установка устройства
- 58 ПОДСОЕДИНЕНИЕ/УСТАНОВКА; Подсоединение проводов к контактным; Контакт Цвет и функции соединителя A и B
- 60 Подключение смартфона
- 61 Подсоединение микрофона для; Снятие декоративной панели; Зацепите захваты на ключе для; Демонтаж устройства; Вставьте два ключа для демонтажа
- 62 Обслуживание; Рекомендуемый способ чистки:; Дополнительная информация; Воспроизведение файлов DivX (только для
- 63 СПРАВОЧНАЯ ИНФОРМАЦИЯ
- 64 Воспроизведение USB-устройства
- 65 Замечания по воспроизведению
- 66 Общие сведения
- 67 Диски
- 68 Bluetooth
- 69 Технические характеристики
- 71 Видеохарактеристики
- 72 DIVX
- 73 дня eгo производства.
Характеристики
Остались вопросы?Не нашли свой ответ в руководстве или возникли другие проблемы? Задайте свой вопрос в форме ниже с подробным описанием вашей ситуации, чтобы другие люди и специалисты смогли дать на него ответ. Если вы знаете как решить проблему другого человека, пожалуйста, подскажите ему :)












