Магнитолы Alpine DVA-9965R - инструкция пользователя по применению, эксплуатации и установке на русском языке. Мы надеемся, она поможет вам решить возникшие у вас вопросы при эксплуатации техники.
Если остались вопросы, задайте их в комментариях после инструкции.
"Загружаем инструкцию", означает, что нужно подождать пока файл загрузится и можно будет его читать онлайн. Некоторые инструкции очень большие и время их появления зависит от вашей скорости интернета.

*1 Äàííàÿ íàêëåéêà ïðèêðåïëåíà ê îñíîâàíèþ àïïàðàòà.
*2 Ìåðû ïðåäîñòîðîæíîñòè ïðè èñïîëüçîâàíèè êàáåëÿ ïèòàíèÿ.
Èñïîëüçóéòå òîëüêî âõîäÿùèé â êîìïëåêò ïîñòàâêè êàáåëü ïèòàíèÿ.
Èñïîëüçîâàíèå äðóãèõ êàáåëåé ïèòàíèÿ çàïðåùåíî.
123
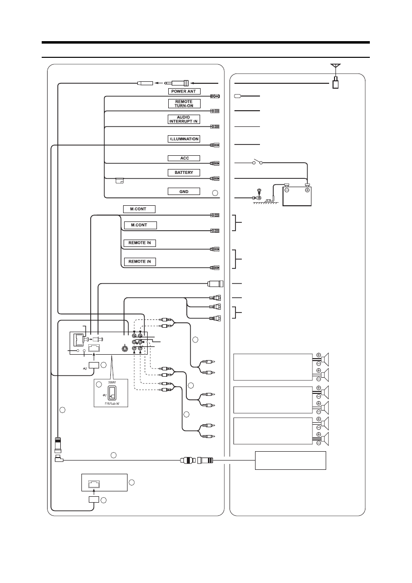
Ïîäñîåäèíåíèÿ
(Ðîçîâûé)
(Ñèíèé/Áåëûé)
(Îðàíæåâûé)
(Êðàñíûé)
(Ñèíèé)
(Æåëòûé)
(×åðíûé)
2
3
4
5
6
7
8
9
11
=
~
!
@
#
$
%
(Ôðîíò.)
(Òûë.)
(Ôðîíò.)
(Òûë.)
(Áåëûé/Ðîçîâûé)
(Áåëûé/Ðîçîâûé)
(Áåëûé/Êîðè÷íåâûé)
(Áåëûé/Êîðè÷íåâûé)
(Æåëòûé)
(Áåëûé) Ë.
(Êðàñíûé) Ï.
1
Àíòåííà
Ê ðàäèî òåëåôîíó
Ê óñèëèòåëþ èëè ýêâàëàéçåðó
Ê àâòîìàòè÷åñêîé àíòåííå
Ê ïðîâîäó ïîäñâåòêè ïðèáîðîâ
Çàìîê çàæèãàíèÿ
Àêêóì.
áàòàðåÿ
Ê ïðîâîäó óïðàâëåíèÿ ìîíèòîðîì
Ê âûõîäíîìó ïðîâîäó ÄÓ
Ê òåðìèíàëó âèäåîâõîäà
Ê èíòåðôåéñó àâòîìîáèëüíîãî äèñïëåÿ
Êî âõîäíîìó àóäèîòåðìèíàëó (Ï, Ë)
0
^
&
*
(
)
_
+
26
27
29
30
28
28
28
31
26
Áëîê ïèòàíèÿ
Óñèëèòåëü
CD-÷åéíäæåð
(ïðèîáð. äîïîëí.)
Óñèëèòåëü
Óñèëèòåëü
Òûë.
ëåâûé
Òûë.
ïðàâûé
Ôðîíò.
ëåâûé
Ôðîíò.
ïðàâûé
Ñàáâó-
ôåðû
Äèíàìèêè



