Лодочные моторы Evinrude E10EL4 2012 - инструкция пользователя по применению, эксплуатации и установке на русском языке. Мы надеемся, она поможет вам решить возникшие у вас вопросы при эксплуатации техники.
Если остались вопросы, задайте их в комментариях после инструкции.
"Загружаем инструкцию", означает, что нужно подождать пока файл загрузится и можно будет его читать онлайн. Некоторые инструкции очень большие и время их появления зависит от вашей скорости интернета.

17
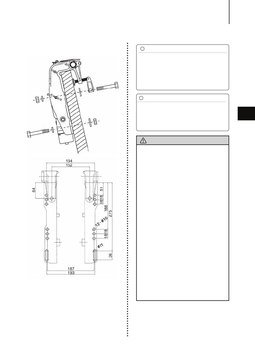
МОДЕЛИ
TP
И
P
(
С
АВТОМАТИЧЕСКИМ
ПОДЪЁМОМ
)
Примечание
Рекомендуется
устанавливать
верхние
крепёжные
болты
таким
образом
,
чтобы
их
головки
располагались
на
внутренней
поверхности
транца
.
Болты
,
резьбовые
час
-
ти
которых
располагаются
на
внутренней
поверхности
транца
,
могут
стать
причиной
получения
травмы
.
Примечание
1.
Прежде
чем
затянуть
болты
,
нанесите
герметик
,
например
силиконовый
,
меж
-
ду
болтами
и
отверстиями
транца
.
2.
Необходимо
затянуть
гайки
крепёжных
болтов
указанным
моментом
(30
Н
·
м
).
ПРЕДОСТЕРЕЖЕНИЕ
●
Установка
подвесного
мотора
с
нарушени
-
ем
рекомендаций
настоящего
Руководст
-
ва
может
нести
угрозу
безопасности
,
например
,
ухудшение
маневренности
,
по
-
теря
контроля
или
возгорание
.
●
Ослабление
затяжки
зажимных
винтов
и
/
или
крепёжных
болтов
может
привести
к
отсоединению
или
смещению
подвесно
-
го
мотора
,
что
,
в
свою
очередь
,
может
при
-
вести
к
потере
контроля
и
/
или
,
возможно
,
получению
серьёзных
травм
.
Убедитесь
,
что
элементы
крепежа
надёжно
затянуты
указанным
моментом
(30
Н
·
м
).
Периоди
-
чески
проверяйте
надёжность
затяжки
элементов
крепежа
.
●
Необходимо
использовать
элементы
крепежа
подвесного
мотора
,
входящие
в
комп
лект
поставки
,
или
их
эквивалент
-
ную
замену
с
точки
зрения
размера
,
ис
-
пользуемых
материалов
,
качества
и
проч
-
ностных
характеристик
.
Затяните
элементы
крепежа
указанным
моментом
(30 H·
м
).
В
ходе
пробной
по
-
ездки
убедитесь
в
надёжности
затяжки
элементов
крепежа
.
●
Установка
подвесного
мотора
должна
быть
выполнена
квалифицированным
специалистом
(-
ами
)
с
использованием
подъёмного
оборудования
соответствую
-
щей
грузоподъемности
.
УСТАНОВКА
4
Содержание
- 3 Evinrude; Ограниченные; BRP
- 5 ОГЛАВЛЕНИЕ
- 9 ОПАСНО
- 10 ПРЕДОСТЕРЕЖЕНИЕ
- 11 ПУНКТ; Evinrude Ultra 4-stroke oil
- 14 только модель P
- 15 Расположение; STOP; Только модели для США и Канады.; Значение
- 16 УСТАНОВКА; Установка; Центр транца; ОСТОРОЖНО
- 17 TE; Гайка
- 19 Тяга
- 20 Модель Е; Муфта
- 21 Модель P
- 23 Рекомендуемые; КАЧЕСТВО; СПИРТОСОДЕРЖАЩИЕ
- 24 Топливный
- 25 Рекомендуемое; ПОДГОТОВИТЕЛЬНЫЕ
- 26 Обкатка; мин
- 27 Сигнальная лампа
- 28 Перед; Заправка
- 31 Запуск; Клипс шнура безопасности; Модели; ЭКСПЛУАТАЦИЯ
- 32 Медленно Быстро
- 33 «ON»
- 35 ВЫБОР
- 36 TP
- 37 Остановка
- 38 OF F; Угол; Перпендикулярно
- 39 UP
- 40 Правильный; Шток
- 41 Упор; MANUAL
- 44 Поднят; Опускание; Блокировка снята
- 46 Эксплуатация
- 48 ный дорожный просвет
- 49 РЕГУЛИРОВКИ; Болт регулировки
- 51 Уход
- 52 Ежедневные
- 56 Момент; ⁄4–1⁄2
- 57 ATF Dexron III; «Manual»
- 58 КОНТРОЛЬНЫЕ
- 59 Температура воздуха
- 62 Межсезонное; Двигатель
- 68 Наименование
- 74 Проверка
- 80 Прежний адрес/предыдущий владелец
