ZOTA Тополь — ВК 32 TP - Инструкция по эксплуатации - Страница 10

Котел ZOTA Тополь — ВК 32 TP - инструкция пользователя по применению, эксплуатации и установке на русском языке. Мы надеемся, она поможет вам решить возникшие у вас вопросы при эксплуатации техники.

Если остались вопросы, задайте их в комментариях после инструкции.

"Загружаем инструкцию", означает, что нужно подождать пока файл загрузится и можно будет его читать онлайн. Некоторые инструкции очень большие и время их появления зависит от вашей скорости интернета.
Страница:
/ 28
Загружаем инструкцию
background image

стр. 8

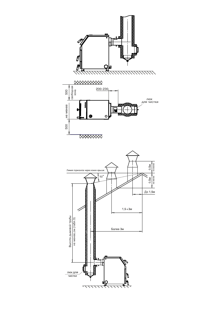
Рис.2 Схема установки котла

Рис.3 Варианты установки дымовой трубы

Полезные видео

Характеристики

Оцените статью
tehnopanorama.ru
Остались вопросы?

Не нашли свой ответ в руководстве или возникли другие проблемы? Задайте свой вопрос в форме ниже с подробным описанием вашей ситуации, чтобы другие люди и специалисты смогли дать на него ответ. Если вы знаете как решить проблему другого человека, пожалуйста, подскажите ему :)

Задать вопрос

  1. Аскар

    Добрый день! Приобрел котел Зота Тополь ВК 32 квт, где нам данной модификации котла расположен температурный датчик ( ближе к выходу гор.воды или…)

    Ответить
Часто задаваемые вопросы
Как посмотреть инструкцию к ZOTA Тополь — ВК 32 TP?
Необходимо подождать полной загрузки инструкции в сером окне на данной странице
Руководство на русском языке?
Все наши руководства представлены на русском языке или схематично, поэтому вы без труда сможете разобраться с вашей моделью
Как скопировать текст из PDF?
Чтобы скопировать текст со страницы инструкции воспользуйтесь вкладкой "HTML"