Котел ZOTA МК-S Plus 15 кВт ZM3468422015 - инструкция пользователя по применению, эксплуатации и установке на русском языке. Мы надеемся, она поможет вам решить возникшие у вас вопросы при эксплуатации техники.
Если остались вопросы, задайте их в комментариях после инструкции.
"Загружаем инструкцию", означает, что нужно подождать пока файл загрузится и можно будет его читать онлайн. Некоторые инструкции очень большие и время их появления зависит от вашей скорости интернета.

ZOTA «MK-S Plus»
стр. 41
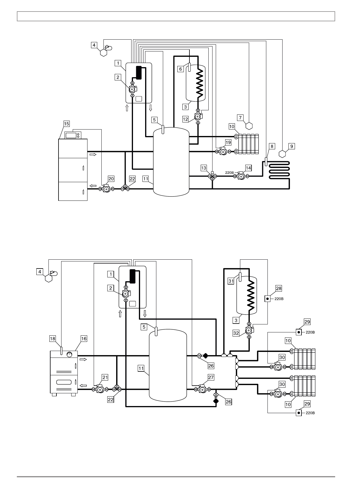
Схема 4. Совместная работа основного котла с блоком управления с
электрокотлом с активированной функцией «Бак аккумулятор», насосом 2
в режиме ГВС или отопление, насосом 3 в режиме отопление и клапаном в
режиме работы «Смешивающий».
Бак аккумулятор нагревается и основным котлом, и электрическим котлом,
работающим при снижении температуры бака аккумулятора.
9.4. Варианты реализации гидравлической схемы №4:
Схема 4.1. Совместная работа основного котла с электрокотлом в режиме
вспомогательный с активированной функцией «Бак аккумулятор» и насосом
2 в режиме «насос за баком аккумулятором».
Бак аккумулятор нагревается и основным котлом. Электрический котел не
нагревает бак аккумулятор и включается в работу при снижении температуры
бака аккумулятора, для нагрева независимых контуров отопления. Их работа
контролируется с помощью комнатных термостатов.
Содержание
- 4 ОБЩИЕ СВЕДЕНИЯ ОБ ИЗДЕЛИИ
- 6 ТЕХНИЧЕСКИЕ ДАННЫЕ; Таблица 1; Рис.1 Остаточный напор для циркуляционного насоса
- 7 Рис.1.1 Остаточный напор для циркуляционного насоса
- 8 Таблица 2; УКАЗАНИЕ МЕР БЕЗОПАСНОСТИ
- 10 УСТРОЙСТВО И ПОРЯДОК РАБОТЫ КОТЛА; индикации расположены:
- 12 Рис.2 Конструкция котла
- 13 Рис.3 Схема подключения котла
- 14 РАЗМЕЩЕНИЕ И МОНТАЖ
- 15 /4’’ Вход теплоносителя
- 17 ПОДГОТОВКА К РАБОТЕ И РАБОТА КОТЛА
- 19 Таблица 3
- 27 Таблица 4
- 36 ГИДРАВЛИЧЕСКИЕ СХЕМЫ ПОДКЛЮЧЕНИЯ; Схема 1. Контур отопления 1 с погодозависимым управлением
- 41 Таблица 7 - Подключаемые датчики в разъемы блока управления
- 45 Таблица 8 - Подключаемые датчики в разъемы блока управления
- 48 клапана ZONT
- 49 Рис.9 Присоединение проводов к выводам блок ТЭН; ПРАВИЛА ЭКСПЛУАТАЦИИ И ТЕХНИЧЕСКОЕ
- 50 поверхностного перекрытия или пробоя изоляции; Таблица 9; «Коррекция датчиков»
- 51 Рис.10 Напряжение на датчике в зависимости от температуры; ПРАВИЛА ХРАНЕНИЯ И ТРАНСПОРТИРОВАНИЯ; ознакомится считав QR-код с обложки данного паспорта.
- 52 ОПИСАНИЕ НЕИСПРАВНОСТЕЙ; приведено в таблице 10.
- 55 ГАРАНТИЙНЫЕ ОБЯЗАТЕЛЬСТВА
- 63 СВИДЕТЕЛЬСТВО О ПРИЕМКЕ; Котел электрический отопительный
- 65 ПРИЛОЖЕНИЕ 2