Котел ZOTA MASTER-20 без плиты - инструкция пользователя по применению, эксплуатации и установке на русском языке. Мы надеемся, она поможет вам решить возникшие у вас вопросы при эксплуатации техники.
Если остались вопросы, задайте их в комментариях после инструкции.
"Загружаем инструкцию", означает, что нужно подождать пока файл загрузится и можно будет его читать онлайн. Некоторые инструкции очень большие и время их появления зависит от вашей скорости интернета.

“!". 12
6.7. g2+(;>F !">4> …5(4B()*+( ;23(%…:!@ *ƒ ('…5>3("…2B * ›&"(“!(H8*B
+&!5"*&%(; >“!(H0*;2B 8 8(""(ƒ**. c58(+5…)>5!“: 3"*+5…:!@ )2+(;25 !">42
* )2+(B()2 *ƒ …5"›&;5FG5H “!&%* “ >!53%*!5%5+, ;2)5"›*;&FG*+ ;2“(-
8>F !5+35"&!>">. $(%@7(5 ;%*:…*5 …& "&4(!> 8(!%& *+55! 3"&;*%@…2H ;24("
;2“(!2 * 3%(G&)* “505…*: )2+(;(H !">42. Q"* ;24("5 "&ƒ+5"(; )2+(;(H
!">42 “%5)>5! >0*!2;&!@, 0!( )%: |DD58!*;…(H "&4(!2 8(!%& "&ƒ"5›5…*5
)(%›…( 42!@ …5 +5…@75 ;5%*0*…2, >8&ƒ&……(H ; !&4%*?5 1 3.12.
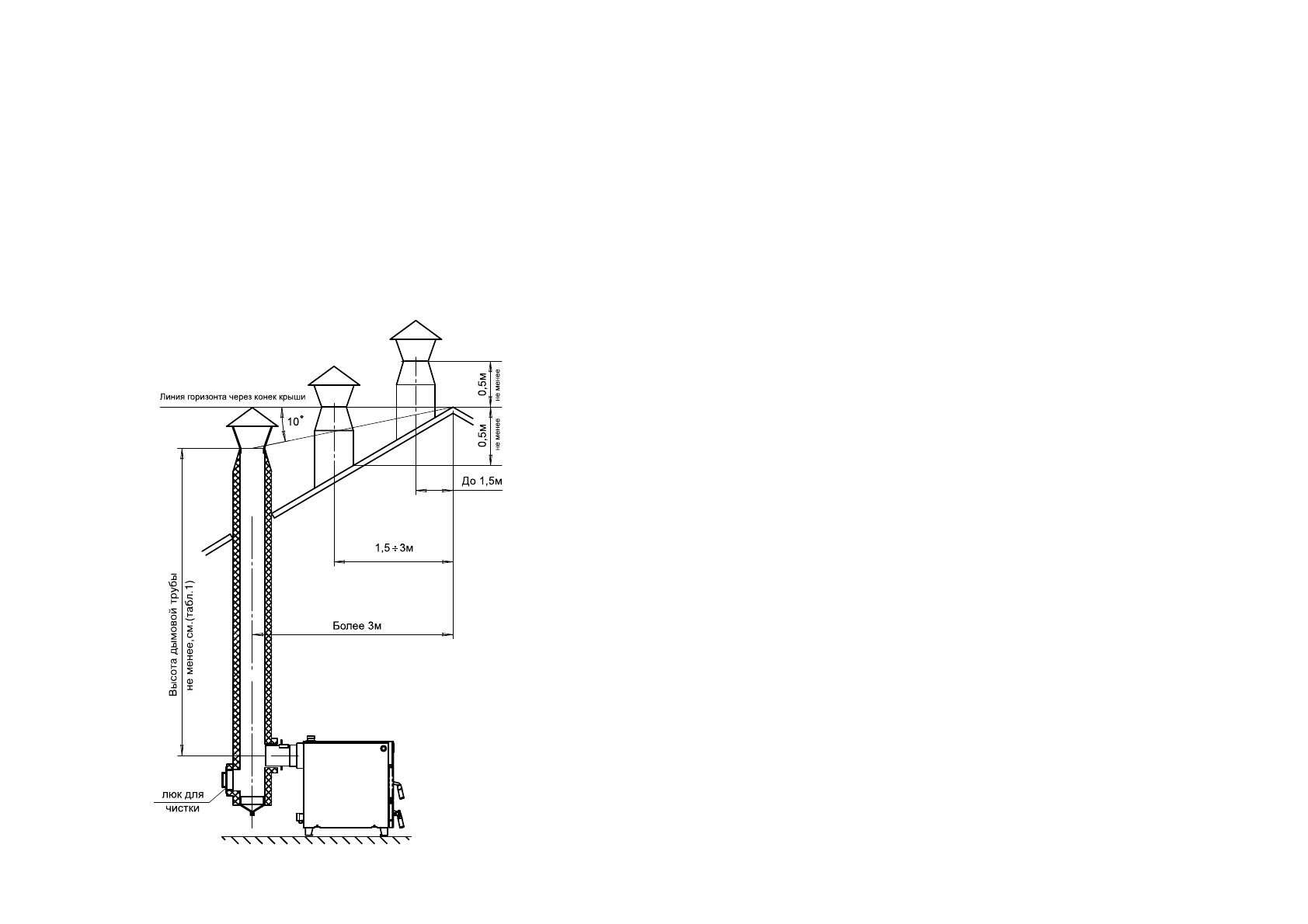
6.8. q“!&…(;8& 8(!%& * +(…!&› )2+(;(H !">42 )(%›…2 3"(;()*!@“: ; “((!-
;5!“!;*5 “( L9iQ 41-01-2003 8&8 3(8&ƒ&…( …& "*“. 6.
Q2“.6 ;,02,…1] 4“1,…/D52 G]@/D/K 104U]
“!". 9
6. >/…1,› 5/19, 2 “2“1B@] /1/.9B…27.
6.1. P(…!&› 8(!%& * “*“!5+2 (!(3%5…*: 3"(*ƒ;()*!“: “35?*&%*ƒ*"(;&……(H
("'&…*ƒ&?*5H ; “((!;5!“!;** “ 3"(58!(+ * "&“05!(+ !53%(;2B 3(!5"@ 3(+5G5…*::
•>“!&…(;*!@ 8(!5% …& “35?*&%@…( (!;5)5……(5 +5“!( * 3()“(5)*…*!@ 5'( 8
)2+(;(H !">45.
•3()8%F0*!@ !">4(3"(;()2 “*“!5+2 (!(3%5…*:.
6.1.1. I&3(%…5…*5 (!(3*!5%@…(H “*“!5+2 ;()(H.
,()& )%: ƒ&3(%…5…*: 8(!%& * (!(3*!5%@…(H “*“!5+2 )(%›…& 42!@ 0*“!(H *
45“?;5!…(H, 45ƒ “>“35…ƒ*H, +&“%& * B*+*05“8* &'"5““*;…2B ;5G5“!;, (4G5H
›5“!8(“!@F …5 4(%55 2 +'.|8;/)+
3
. Q"*+5…5…*5 ›5“!8(H ;()2 ;2ƒ2;&5!
(4"&ƒ(;&…*5 …&8*3* ; 8(!%5, 0!( “…*›&5! 5'( !53%(!5B…*05“8*5 3&"&+5!"2 *
+(›5! “!&!@ 3"*0*…(H 3(;"5›)5…*: 4%(8& Š}9.
&02@BR,…2B:
Q(;"5›)5…*5 4%(8& Š}9 *ƒ-ƒ& (4"&ƒ(;&…*: …&8*3* …5
3(3&)&5! 3() )5H“!;*5 '&"&…!*H…2B (4:ƒ&!5%@“!;.
^“%* ›5“!8(“!@ ;()2 …5 (!;50&5! !"54>5+2+ 3&"&+5!"&+, ;()& )(%›…& 42!@
(4"&4(!&…&. d!%(›5…*5 1 ++ *ƒ;5“!…:8& “…*›&5! ; )&……(+ +5“!5 35"5)&0>
!53%& (! +5!&%%& 8 ;()5 …& 10%.
, !505…*5 (!(3*!5%@…('( “5ƒ(…& …5(4B()*+( 3())5"›*;&!@ 3(“!(:……2H (4•5+
(!(3*!5%@…(H ;()2 ; (!(3*!5%@…(H “*“!5+5. 95%@ƒ: (“>G5“!;%:!@ "&ƒ4("
;()2 *ƒ 8(!%& * (!(3*!5%@…(H “*“!5+2 )%: "&ƒ…2B …>›), ƒ& *“8%F05…*5+
…5(4B()*+('( “%*;& 3"* "5+(…!5. Q"* “%*;5 ;()2 * )(3(%…5…** …(;(H
3(;27&5!“: (3&“…(“!@ 8(""(ƒ** * (4"&ƒ(;&…*: (!%(›5…*H. g(%*; ;()2 ;
(!(3*!5%@…>F “*“!5+> 3"(*ƒ;()*!@ ; (B%&›)5……2H )( 70
(
L 8(!5%.
N"(+5 ;()2, +(›5! 3"*+5…:!@“: …5ƒ&+5"ƒ&FG*H !53%(…(“*!5%@, "&ƒ;5)5…-
…2H “ ;()(H ; 8(…?5…!"&?** …5 4(%55 1:1. Q"* *“3(%@ƒ(;&…** |!*B !53%(-
…(“*!5%5H …5(4B()*+( ;23(%…:!@ !"54(;&…*: 3( *B 3"*+5…5…*F ; “*“!5+&B
(!(3%5…*:. , 8&05“!;5 !53%(…(“*!5%: ƒ&3"5G5…( *“3(%@ƒ(;&…*5 ›*)8(“!5H,
…5 3"5)…&ƒ…&05……2B )%: “*“!5+ (!(3%5…*:.
6.1.2. Q5"5) >“!&…(;8(H 8(!%& …& “'("&5+25 8(…“!">8?** ƒ)&…*: 3() 8(!-
%(+ * 35"5) 5'( D"(…!(+ …& 500++ …5(4B()*+& 3"(8%&)8& “!&%@…2B %*“!(;
!(%G*…(H 0,6 - 1,0 ++ 3( &“45“!(;(+> *%* 4&ƒ&%@!(;(+> 8&"!(…>, !(%G*…(H
3-5++. LB5+& >“!&…(;8* 8(!%& 3(8&ƒ&…& …& "*“. 3.
6.1.3. $5ƒ(3&“…(5 "&““!(:…*5 (! '("F0*B +&!5"*&%(;:
•3"* +(…!&›5 * |8“3%>&!&?** 8(!%& …5(4B()*+( “(4%F)&!@ 45ƒ(3&“…(5
"&““!(:…*5 200++ (! '("F0*B +&!5"*&%(;.
•)%: %5'8( ;(“3%&+5…:FG*B“: +&!5"*&%(;, (…&3"*+5" 4>+&'&, 8&"!(…,
35"'&+*…, )5"5;( * )"5;5“…(;(%(8…*“!25 )(“8*, 3%&“!+&““2), 45ƒ(3&“…(5
"&““!(:…*5 >);&*;&5!“: (400++), 45ƒ(3&“…(5 "&““!(:…*5 !&8›5 …5(4B()*+(
>);(*!@, 5“%* “!535…@ '("F05“!* “!"(*!5%@…('( +&!5"*&%& …5*ƒ;5“!…&.
6.1.4. c&“3(%(›5…*5 8(!%& “ >05!(+ …5(4B()*+('( )%: (4“%>›*;&…*: 3"(-
“!"&…“!;&:
•35"5) 8(!%(+ )(%›…( 42!@ +&…*3>%:?*(……(5 3"(“!"&…“!;( +*…*+&%@…( 1000++.
•“ ()…(H 4(8(;(H “!("(…2 …5(4B()*+( (“!&;%:!@ 3"(“!"&…“!;( )%: )(“!>3&
8 ƒ&)…5H 0&“!* 8(!%& * 4%(8> Š}9 8(!%& +*…*+>+ 400++.
6.1.5. c&ƒ+5G5…*5 !(3%*;&:
•ƒ&3"5G&5!“: >8%&)2;&!@ !(3%*;( ƒ& 8(!%(+ *%* ;(ƒ%5 8(!%& …& "&““!(:…**,
+5…55 05+ 400++.
•ƒ&3"5G&5!“: >8%&)2;&!@ !(3%*;( +5›)> );>+: 8(!%&+* ; 8(!5%@…(H,
*ƒ'(!(;*!5%@ "58(+5…)>5! “(4%F)&!@ "&““!(:…*5 +5›)> 8(!%(+ * !(3%*;(+
+*…*+>+ 1000++ *%* 3(+5“!*!@ !(3%*;( ; )">'(+ 3(+5G5…**, ')5 …5! 8(!%&.