Котел ZOTA MASTER-14 без плиты - инструкция пользователя по применению, эксплуатации и установке на русском языке. Мы надеемся, она поможет вам решить возникшие у вас вопросы при эксплуатации техники.
Если остались вопросы, задайте их в комментариях после инструкции.
"Загружаем инструкцию", означает, что нужно подождать пока файл загрузится и можно будет его читать онлайн. Некоторые инструкции очень большие и время их появления зависит от вашей скорости интернета.

“!". 10
6.2. g%: >%>075…*: >“%(;*H 5“!5“!;5……(H ?*"8>%:?** ;()2 ; “*“!5+5 (!(-
3%5…*:, 8(!5% >“!&…&;%*;&5!“: !&8, 0!(42 3&!">4(8 (4"&!…(H ;()2 "&ƒ+5G&%“:
…*›5 "&)*&!("(; (!(3*!5%@…(H “*“!5+2 ƒ)&…*:.
6.3. c58(+5…)>5+25 >“!&…(;(0…25 "&ƒ+5"2 )%: "&)*&!("(; 3"* +(…!&›5
8;&"!*"…('( (!(3%5…*::
&) (! “!5…2 )( "&)*&!("& …5 +5…55 — 3“+;
4) (! 3(%& )( …*ƒ& "&)*&!("& — …5 +5…55 10“+;
;) (! ;5"B& "&)*&!("& )( 3()(8(……*8& — …5 +5…55 10“+.
6.4. c&)*>“ '*48* !">4, )(%›5… 42!@ …5 +5…55 2-B …&">›…2B )*&+5!"(; !">42.
6.5. L!(:8* )(%›…2 >“!&…&;%*;&!@“: 3( (!;5“>. g(3>“!*+(5 (!8%(…5…*5 …5
)(%›…( 3"5;27&!@ 3++ …& 3B +5!"&B ;2“(!2 !">42.
6.6. x("*ƒ(…!&%@…25 !">4(3"(;()2 )(%›…2 3"(8%&)2;&!@“: “ >8%(…(+ )%:
;23>“8& ;(ƒ)>B& *ƒ “*“!5+2. ,5%*0*…& >8%(…& )(%›…& 42!@ …5 +5…55 10 ++
…& 1 3('. +5!" !">4(3"(;()&.
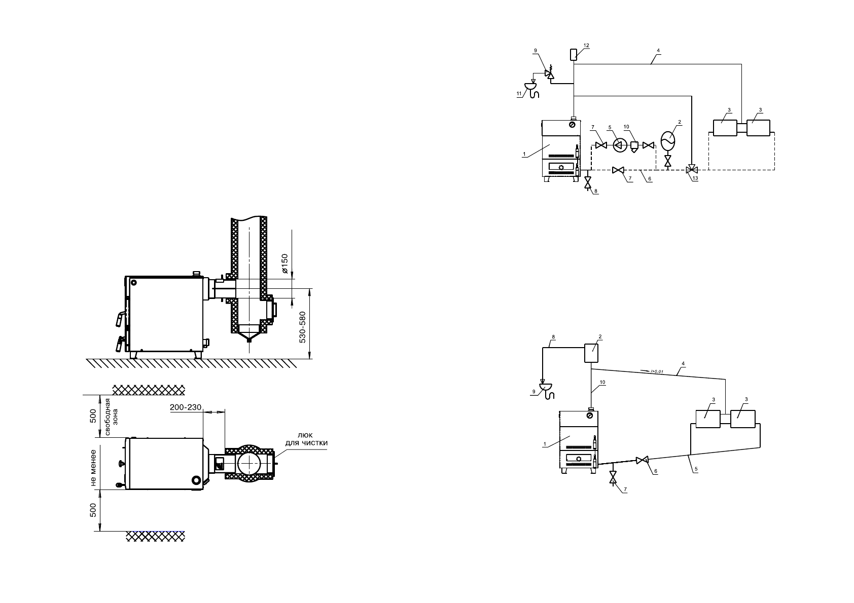
Q2“.3 NXB@, 4“1,…/D52 5/19,
“!". 11
1 - N(!5%
2 - $&8 "&“7*"*!5%@…2H ƒ&8"2!('( !*3&
3 - Q"*4("2 (!(3*!5%@…25
4 - Q()&FG*H !">4(3"(;()
5 - z*"8>%:?*(……2H …&“(“
6 - d4"&!…2H !">4(3"(;()
7 - N"&…2 “*“!5+2 (!(3%5…*:
8 - N"&… “%*;& ;()2 *ƒ “*“!5+2
9 - Q"5)(B"&…*!5%@…2H 8%&3&…
10 - ™*%@!" (!“!(H…*8
11 - L%*; ; 8&…&%*ƒ&?*F
12 - ];!(+&!*05“8*H ;(ƒ)>B((!;()0*8
13- Š5"+(“+5“*!5%@…2H 8%&3&…
Q2“.4 NXB@, ƒ,50]1/K “2“1B@] /1/.9B…27
1 - N(!5%
2 - $&8 "&“7*"*!5%@…2H (!8"2!('( !*3&
3 - Q"*4("2 (!(3*!5%@…25
4 - Q()&FG*H !">4(3"(;()
5 - d4"&!…2H !">4(3"(;()
6 - N"&… “*“!5+2 (!(3%5…*:
7 - N"&… “%*;& ;()2 *ƒ “*“!5+2
8 - Q5"5%*;
9 - L%*; ; 8&…&%*ƒ&?*F
10 - c&ƒ'(……2H >0&“!(8
Q2“.5 NXB@, /150]1/K “2“1B@] /1/.9B…27