Котел ZOTA Енисей 14 кВт d=120 - инструкция пользователя по применению, эксплуатации и установке на русском языке. Мы надеемся, она поможет вам решить возникшие у вас вопросы при эксплуатации техники.
Если остались вопросы, задайте их в комментариях после инструкции.
"Загружаем инструкцию", означает, что нужно подождать пока файл загрузится и можно будет его читать онлайн. Некоторые инструкции очень большие и время их появления зависит от вашей скорости интернета.

стр. 7
5.3. В нижней части котла вместо заглушки (поз. 10) может устанавливаться
блок ТЭН от 3 до 9 кВт. В случае установки блока ТЭН его подключают
к электрической сети через панель управления ПУ ЭВТ-И1, которая
позволяет изменять мощность нагревательного элемента тремя ступенями
и поддерживать заданную температуру теплоносителя в системе отопления
и воздуха в помещении. Возможно подключение панели управления как от
однофазной, так и от трехфазной сети переменного тока.
Датчик температуры панели управления устанавливается в гнездо (поз.
16) на задней стенке котла.
Термометр, тягорегулятор, блок-ТЭН и панель управления не входят в
комплект котла и поставляются по отдельному заказу.
6. Требования к дымовой трубе и помещению котельной
6.1. Требования к помещению котельной
6.1.1. Котёл должен размещаться в отдельном помещении котельной.
6.1.2. Входная дверь в котельную должна открываться наружу, быть изготовлена
из негорючих материалов и иметь минимальную ширину проема 0,8 м.
6.1.3. Помещение котельной должно освещаться искусственным и дневным
светом. Наличие естественного освещения рекомендуется.
6.1.4. Помещение котельной обязательно должно быть оборудовано
приточной и вытяжной вентиляцией с естественным притоком свежего
воздуха, с производительностью, способной как минимум восполнить на 10%
больший расход воздуха, чем при Q
N
устанавливаемого котла (табл. 1 п.п.15).
6.1.5. Минимальная допустимая высота потолков в помещении котельной
2,2 м. Допускается снижение высоты потолков в помещении котельной до
1,8 м при наличии функционирующей принудительной приточно-вытяжной
вентиляции.
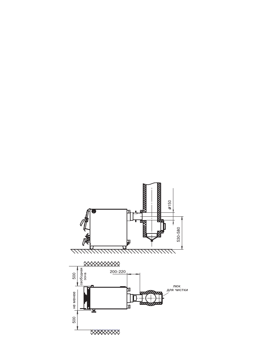
Рис.2 Схема установки котла
Содержание
- 8 Рис.1 Конструкция отопительного котла
- 10 Рис.3 Варианты установки дымовой трубы
- 17 Розжиг котла с использованием тягорегулятора
- 19 Характерные неисправности и методы их устранения.
- 21 Свидетельство о приемке и продаже; признан годным для эксплуатации.; Сведения об установке; Документ, подтверждающий право проведения работ:
- 22 Учет технического обслуживания котла.





