Котел ZOTA Bulat 18 кВт - инструкция пользователя по применению, эксплуатации и установке на русском языке. Мы надеемся, она поможет вам решить возникшие у вас вопросы при эксплуатации техники.
Если остались вопросы, задайте их в комментариях после инструкции.
"Загружаем инструкцию", означает, что нужно подождать пока файл загрузится и можно будет его читать онлайн. Некоторые инструкции очень большие и время их появления зависит от вашей скорости интернета.

стр. 10
6.2.1.3. В случае необходимости допускается прокладывать горизонтальные
газоходы (борова) длиной не более 1 м.
6.2.1.4. Дымовую трубу необходимо выполнять из огнеупорных и
жаростойких материалов, устойчивых к коррозии.
6.2.1.5. Рекомендуется применять дымовые трубы и дымоходы из
нержавеющей стали с утеплителем, выдерживающим высокую температуру.
6.2.2. Большое значение на работу котла оказывает правильный выбор
высоты и площади сечения дымовой трубы.
6.2.2.1. При выборе размеров дымовой трубы следует учитывать, что для
эффективной работы котла разрежение за котлом должно быть не менее
величины, указанной в таблице 1, п.п.15.
6.2.2.2. При подборе диаметра или площади проходного сечения дымохода
не должно создаваться заужений относительно дымового патрубка котла.
6.2.2.3. При выборе высоты дымовой трубы необходимо принимать во
внимание, что в соответствии со СП 7.13130.2013 п.5.10. высота дымовой
трубы не должна быть ниже 5 м. Рекомендуемая высота дымовой трубы в
зависимости от мощности котла указана в таблице 1, п.10.
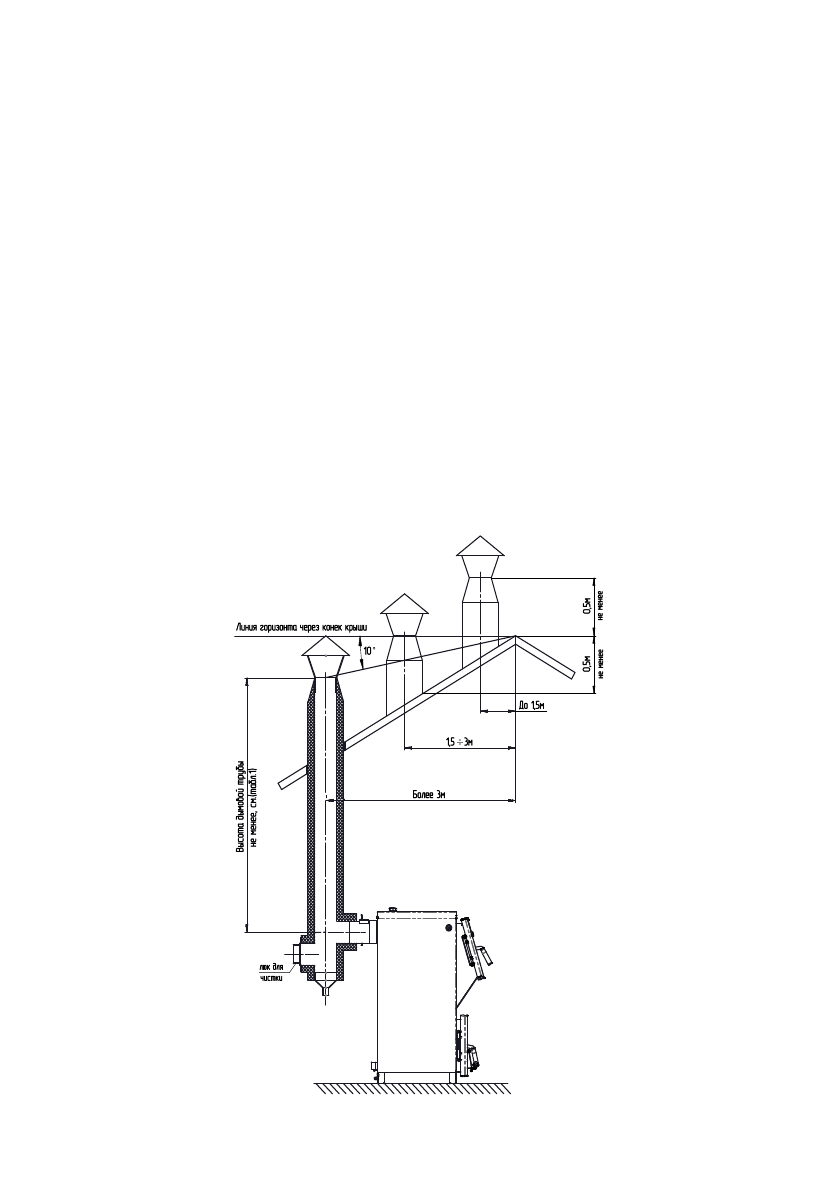
6.2.2.5. Высоту дымовой трубы над крышей (в зависимости от расстояния
ее до конька крыши) выполнить, как показано на рисунке 4.
6.2.3. Приточно-вытяжная вентиляция должна обеспечивать поступление
воздуха в помещение в необходимом количестве для сжигания всего топлива.
6.2.4. Количество необходимого воздуха для сжигания топлива котлом в
зависимости от его мощности представлены в таблице 1, п.19.
Рис.4 Варианты установки дымовой трубы
Характеристики
Остались вопросы?Не нашли свой ответ в руководстве или возникли другие проблемы? Задайте свой вопрос в форме ниже с подробным описанием вашей ситуации, чтобы другие люди и специалисты смогли дать на него ответ. Если вы знаете как решить проблему другого человека, пожалуйста, подскажите ему :)





