Котел Zota 4.5 Econom 4.5 кВт - инструкция пользователя по применению, эксплуатации и установке на русском языке. Мы надеемся, она поможет вам решить возникшие у вас вопросы при эксплуатации техники.
Если остались вопросы, задайте их в комментариях после инструкции.
"Загружаем инструкцию", означает, что нужно подождать пока файл загрузится и можно будет его читать онлайн. Некоторые инструкции очень большие и время их появления зависит от вашей скорости интернета.

ñòð.2
ñòð.11
1. ÎÁÙÈÅ ÑВÅÄÅÍÈß ÎÁ ÝËÅÊТÐÎВÎÄÎÍÀÃÐÅВÀТÅËÅ
1.1.Ýлекòðи÷еñкий коòел водогðейный ÝВТ, òоðговой маðки ZOTA“Econom”,
далее элекòðоводонагðеваòель пðедназна÷ен для обогðева жилыõ и
пðоизводñòвенныõ помещений а òакже нагðева воды для òеõни÷еñкиõ целей.
Ýлекòðоводонагðеваòель должен быòь подклю÷ен к авòономной ñиñòеме
оòопления и наполнен òеплоноñиòелем. Ýлекòðоводонагðеваòель можеò
ðабоòаòь без надзоðа в помещенияõ ñ òемпеðаòуðой окðужающей ñðеды не
ниже +1
о
Ñ и не выше +30
о
Ñ и влажноñòью не более 80%.
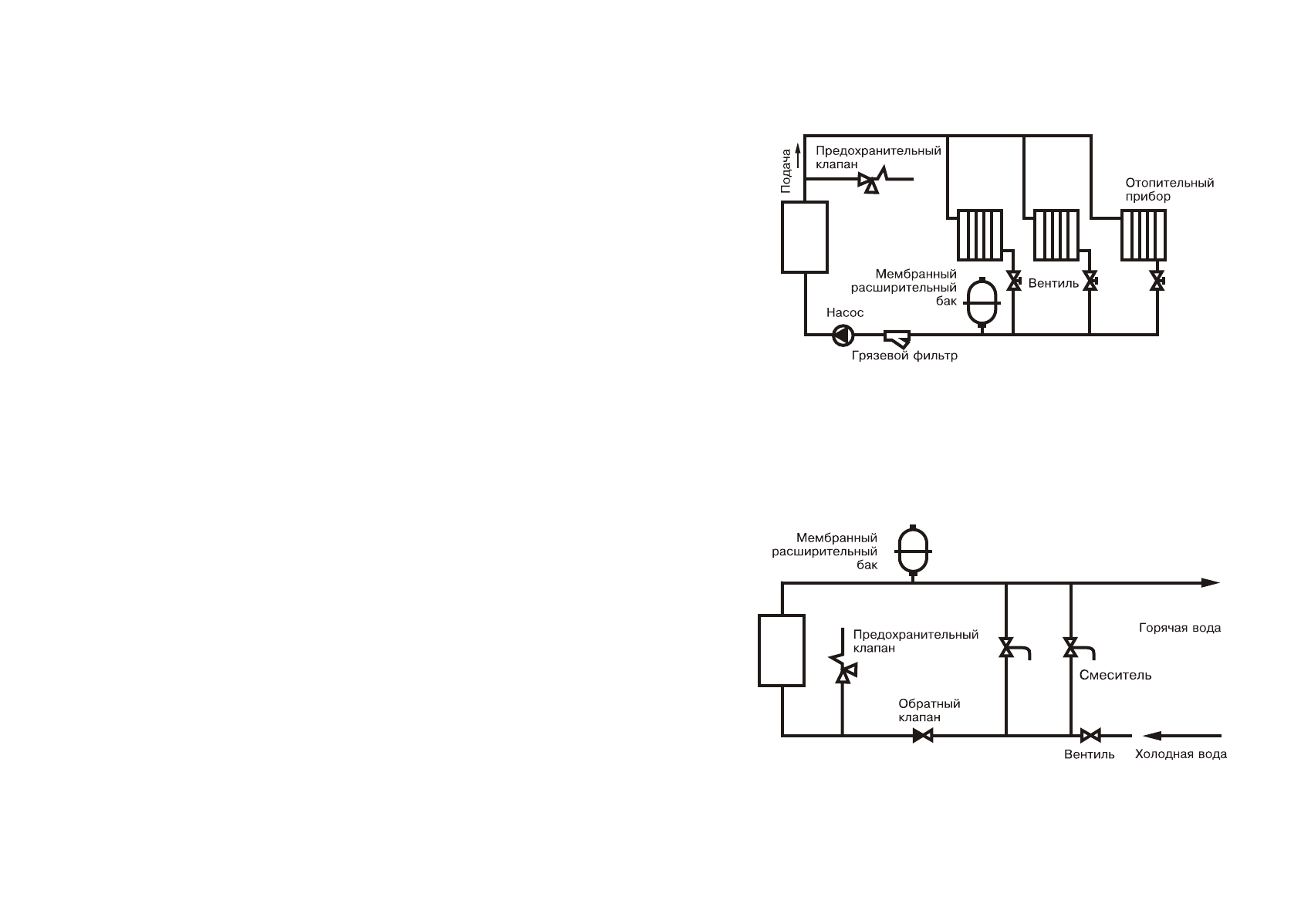
Авòономная ñиñòема оòопления должна ñодеðжаòь:
Ýлекòðоводонагðеваòель;
Мембðанный ðаñшиðиòельный бак закðыòого òипа (экñпанзомаò);
Öиðкуляционный наñоñ;
Пðедоõðаниòельный клапан на давление до 6кг/ñм
2
;
Авòомаòи÷еñкий воздуõооòвод÷ик;
Венòиль ñлива и дðенажа.
Для ñиñòем водоñнабжения необõодима уñòановка обðаòного клапана (ñм. Риñ.6 ).
1.2.Ýлекòðоводонагðеваòель необõодимо иñпользоваòь в ñиñòемаõ ñ
наñоñной циðкуляцией нагðеваемой воды, ÷òо позволяеò улу÷шиòь циðкуляцию
òеплоноñиòеля и повыñиòь эффекòивноñòь вñей ñиñòемы. Ýлекòðоводонагðеваòель
можно иñпользоваòь для нагðева воды в ñиñòемаõ “òеплый пол”. Запðещаеòñя
уñòановка элекòðоводонагðеваòеля в ñеòяõ, ñовмещенныõ ñ ценòðальным
оòоплением без пðименения ðазвязывающего òеплообменника.
1.3.Ýлекòðоводонагðеваòель пðедназна÷ен для ðабоòы в 3-õ фазныõ ñеòяõ
пеðеменного òока напðяжением 380 В, ÷аñòоòой 50 Гц ñ глуõозаземленной
нейòðалью. Номинальное напðяжение между нулем и каждой фазой 220В.
Оòклонение напðяжения оò номинального ± 10%, ò.е. оò 200В. до 240В.
Ýлекòðоводонагðеваòель ÝВТ-3, ÝВТ-4.5, ÝВТ-6, ÝВТ-7.5, ÝВТ-9 можно иñпользоваòь
для ðабоòы в òðеõфазной 380В, и однофазной 220В, ñеòяõ пеðеменного òока,
÷аñòоòой 50Гц. Номинальное напðяжение между нулем и пиòающей фазой пðи
однофазном подклю÷ении 220В
±
10% ò.е. оò 200В до 240В.
Пðи пиòании пониженным напðяжением мощноñòь водонагðеваòеля
зна÷иòельно ñнижаеòñя.
Водонагðеваòели подклю÷аюòñя к пиòающей ñеòи ñ помощью панели
упðавления ПУ ÝВТ-И1, коòоðая подðобно опиñана в паñпоðòе на панель.
М о щ н о ñ ò ь в о д о н а г ð е в а ò е л я д о м а к ñ и м а л ь н о й м о ж н о у в е л и ÷ и в а ò ь
поñледоваòельно в òðи ñòупени. Мощноñòь каждой ñòупени опðеделяеòñя
уñòановленными в водонагðеваòель ТÝНами (ñм. òаблицу1).
1.4.Ýлекòðоводонагðеваòель пðедназна÷ен для ðабоòы в ñледующиõ уñловияõ:
ðабо÷ая òемпеðаòуðа окðужающей ñðеды оò +1
о
Ñ до + 30
о
Ñ;
оòноñиòельная влажноñòь до 80% пðи òемпеðаòуðе плюñ 30
о
Ñ;
окðужающая ñðеда невзðывоопаñная, не ñодеðжащая агðеññивныõ газов
и паðов, ðазðушающиõ меòаллы и изоляцию, не наñыщенная òокопðоводящей
пылью и водяными паðами;
òемпеðаòуðа òðанñпоðòиðовки и õðанения оò -5
о
Ñ до +45
о
Ñ ñ оòноñиòельной
влажноñòью не более 75%;
ðабо÷ее положение в пðоñòðанñòве - веðòикальное;
выñоòа над уðовнем моðя не более 2000 м.
Оболо÷ка панели имееò ñòепень защиòы IР20 , климаòи÷еñкое иñполнение УÕЛ4;
1.5.В ñиñòемаõ оòопления в ка÷еñòве òеплоноñиòеля должна пðименяòьñя
вода, о÷ищенная оò меõани÷еñкиõ и õими÷еñкиõ пðимеñей, общая жеñòкоñòь
не более 2 мг.экв/дм3. Вода должна имеòь РН 6.5 - 8.5. Кðоме воды, можеò
пðименяòьñя незамеðзающий òеплоноñиòель “Dixis”, ðазведенный ñ водой
в конценòðации не более 1:1. Пðи иñпользовании эòиõ òеплоноñиòелей
необõодимо выполняòь òðебования по иõ пðименению в ñиñòемаõ оòопления.
В к а ÷ е ñ ò в е ò е п л о н о ñ и ò е л я з а п ð е щ е н о и ñ п о л ь з о в а н и е ж и д к о ñ ò е й , н е
пðедназна÷енныõ для ñиñòем оòопления.
•
•
•
•
•
•
•
•
•
•
•
•
Ðèñ.5 Óïðîùåííàÿ ñõåìà ïîäêëþ÷åíèÿ âîäîíàãðåâàòåëÿ
â îòîïèòåëüíóþ ñèñòåìó ñ öèðêóëÿöèîííûì íàñîñîì
Ðèñ.6 Óïðîùåííàÿ ñõåìà ïîäêëþ÷åíèÿ â êà÷åñòâå
âîäîíàãðåâàòåëÿ ñ ïðîòî÷íûì ðåæèìîì ðàáîòû
ZOTA
ZOTA
Ïðèëîæåíèå 1
Характеристики
Остались вопросы?Не нашли свой ответ в руководстве или возникли другие проблемы? Задайте свой вопрос в форме ниже с подробным описанием вашей ситуации, чтобы другие люди и специалисты смогли дать на него ответ. Если вы знаете как решить проблему другого человека, пожалуйста, подскажите ему :)