Котел VIESSMANN Vitorond 100 KW5 22 кВт - инструкция пользователя по применению, эксплуатации и установке на русском языке. Мы надеемся, она поможет вам решить возникшие у вас вопросы при эксплуатации техники.
Если остались вопросы, задайте их в комментариях после инструкции.
"Загружаем инструкцию", означает, что нужно подождать пока файл загрузится и можно будет его читать онлайн. Некоторые инструкции очень большие и время их появления зависит от вашей скорости интернета.

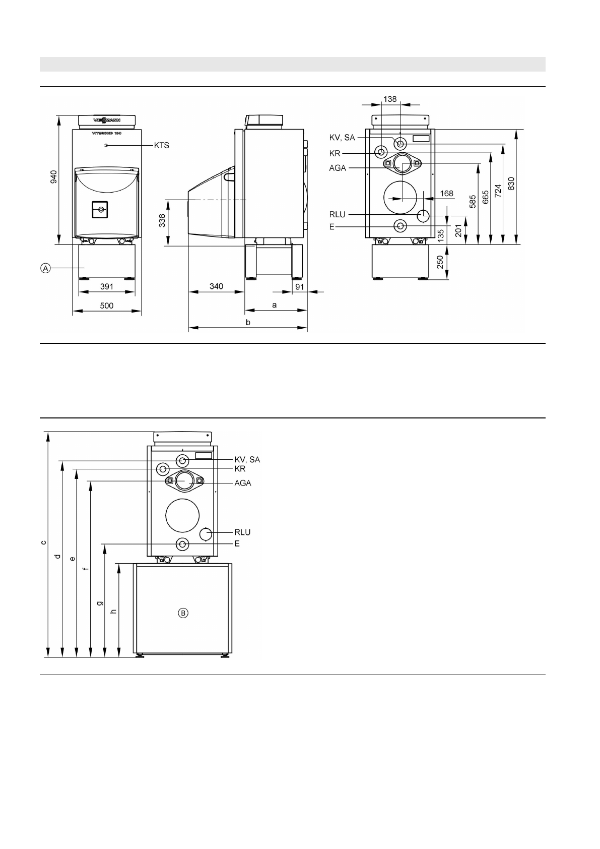
A
Подставка
AGA
Вытяжка отходящих газов
E
Выпускной вентиль и мембранный расширительный
сосуд
KR
Патрубок обратной магистрали котла
KTS
Датчик температуры котловой воды
KV
Подающая магистраль котла
RLU
Патрубок подвода воздуха для режима эксплуатации с
отбором воздуха извне
SA
Патрубок аварийной линии
(
предохранительный клапан
)
B
Vitocell
‐
H 100
или
300
(
технические данные см
.
в отдельных технических пас
-
портах в регистре
17)
AGA
Вытяжка отходящих газов
E
Выпускной вентиль и мембранный расширительный
сосуд
KR
Патрубок обратной магистрали котла
KV
Патрубок подающей магистрали котла
RLU
Патрубок подвода воздуха для режима эксплуатации с
отбором воздуха извне
SA
Патрубок аварийной линии
(
предохранительный клапан
)
5829
152
–
7
GUS
4
VIESMANN
VITOROND 100
Технические данные
(
продолжение
)
Содержание
- 2 VIESMANN; Технический паспорт; казание
- 3 Основные преимущества
- 4 Технические данные
- 5 продолжение
- 6 Монтаж
- 7 Гидродинамическое сопротивление греющего контура; Состояние при поставке; Варианты контроллеров; Принадлежности для водогрейного котла
- 8 Указания по проектированию
- 9 Примеры применения
- 13 Системотехника; Проверенное качество