Котел VIESSMANN Vitorond 100 KC4 27 кВт - инструкция пользователя по применению, эксплуатации и установке на русском языке. Мы надеемся, она поможет вам решить возникшие у вас вопросы при эксплуатации техники.
Если остались вопросы, задайте их в комментариях после инструкции.
"Загружаем инструкцию", означает, что нужно подождать пока файл загрузится и можно будет его читать онлайн. Некоторые инструкции очень большие и время их появления зависит от вашей скорости интернета.

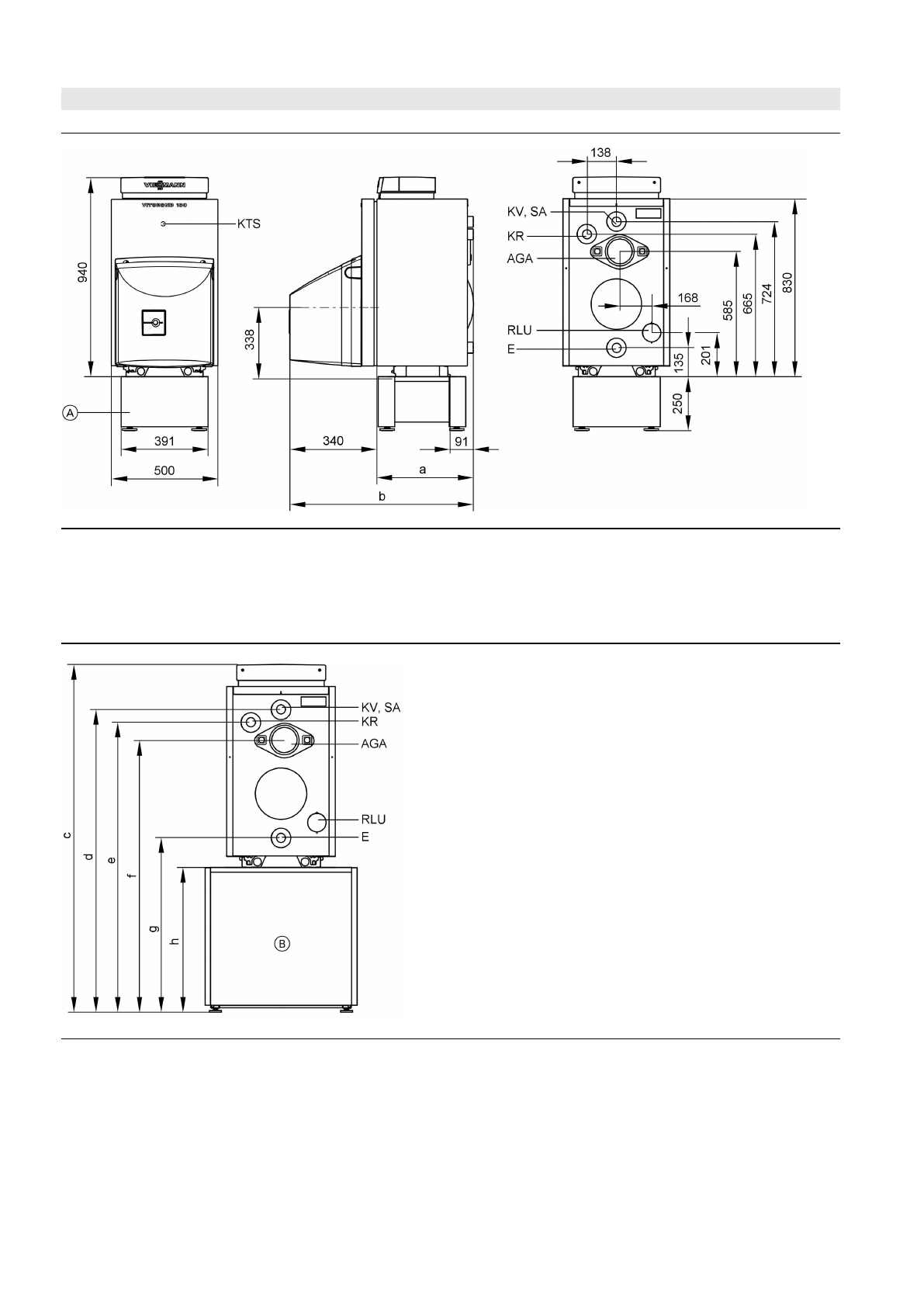
A
Подставка
AGA
Вытяжка отходящих газов
E
Выпускной вентиль и мембранный расширительный
сосуд
KR
Патрубок обратной магистрали котла
KTS
Датчик температуры котловой воды
KV
Подающая магистраль котла
RLU
Патрубок подвода воздуха для режима эксплуатации с
отбором воздуха извне
SA
Патрубок аварийной линии
(
предохранительный клапан
)
B
Vitocell
‐
H 100
или
300
(
технические данные см
.
в отдельных технических пас
-
портах в регистре
17)
AGA
Вытяжка отходящих газов
E
Выпускной вентиль и мембранный расширительный
сосуд
KR
Патрубок обратной магистрали котла
KV
Патрубок подающей магистрали котла
RLU
Патрубок подвода воздуха для режима эксплуатации с
отбором воздуха извне
SA
Патрубок аварийной линии
(
предохранительный клапан
)
5829
152
–
7
GUS
4
VIESMANN
VITOROND 100
Технические данные
(
продолжение
)
Характеристики
Остались вопросы?Не нашли свой ответ в руководстве или возникли другие проблемы? Задайте свой вопрос в форме ниже с подробным описанием вашей ситуации, чтобы другие люди и специалисты смогли дать на него ответ. Если вы знаете как решить проблему другого человека, пожалуйста, подскажите ему :)