Котел VIESSMANN Vitopend 100-W 29.9к Вт - инструкция пользователя по применению, эксплуатации и установке на русском языке. Мы надеемся, она поможет вам решить возникшие у вас вопросы при эксплуатации техники.
Если остались вопросы, задайте их в комментариях после инструкции.
"Загружаем инструкцию", означает, что нужно подождать пока файл загрузится и можно будет его читать онлайн. Некоторые инструкции очень большие и время их появления зависит от вашей скорости интернета.

Монтаж трубопровода холодной воды
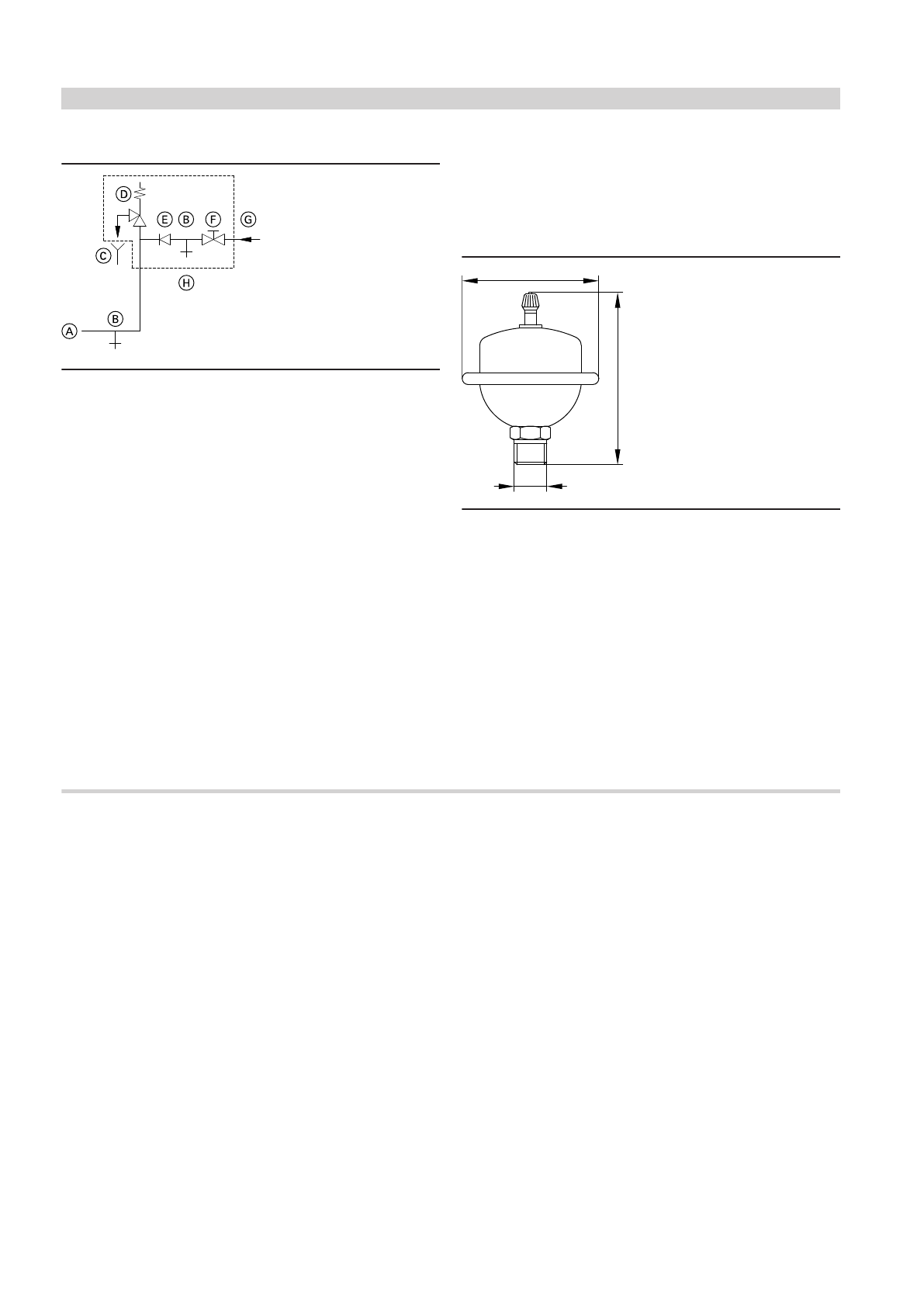
A
Патрубок трубопровода холодной воды водогрейного котла
B
Патрубок опорожнения
C
Контролируемое выходное отверстие выпускной линии
D
Предохранительный клапан
E
Обратный клапан
F
Запорный вентиль
G
Трубопровод холодной воды
H
Блок предохранительных устройств
Блок предохранительных устройств
H
согласно DIN 1988 дол-
жен устанавливаться обязательно в тех случаях, если давление
воды в подключаемой сети ГВС превышает 10 бар (1 МПа), и не
используется редукционный клапан контура ГВС (согласно
DIN 4753).
Обратный клапан или комбинированный вентиль свободного
протока с обратными клапанами разрешается применять только
в сочетании с предохранительным клапаном.
Если используется предохранительный клапан, то необходимо
снять ручку на запорном вентиле холодной воды, чтобы блоки-
ровку невозможно было осуществлять вручную.
Гидравлический амортизатор
Ø 86
115
R½"
Если в одной сети с котлом Vitopend подключены водоразбор-
ные точки, на которых возможны гидравлические удары (напри-
мер, напорные моечные устройства, стиральные или посудо-
моечные машины): установить поблизости от источника гидра-
влических ударов гидравлические амортизаторы (рекоменда-
ция).
Циркуляция при использовании газового комбинированного
водогрейного котла
Вследствие малого водонаполнения пластинчатых теплообмен-
ников подключение циркуляционных трубопроводов при исполь-
зовании газовых комбинированных водогрейных котлов
не реко-
мендуется
.
Даже небольшие тепловые потери в теплоизолированных цирку-
ляционных трубопроводах (согласно «Положению об экономии
энергии») ведут к повышению частоты срабатывания газового
комбинированного водогрейного котла (догрев).
Гидравлическая обвязка
Общие сведения
Расчет параметров установки
Как правило, настенные газовые котлы Viessmann могут исполь-
зоваться в любой системе водяного отопления с принудитель-
ной циркуляцией (закрытая установка).
В котле имеется встроенный насос.
Минимальное давление установки 0,8 бар (0,08 МПа).
Температура котловой воды ограничена до 80 °C.
Чтобы снизить до минимума потери тепла на распределение,
мы рекомендуем настроить теплораспределительное устрой-
ство на температуру подачи не выше 70 °C.
Для занимающих весь этаж квартир с жилой площадью менее
80 м
2
или в энергосберегающих домах с малой тепловой нагруз-
кой мы рекомендуем использовать котел Vitopend в сочетании с
Vitotrol, поскольку при этом обеспечивается непосредственный
учет факторов влияния, связанных с условиями в помещении.
Химические антикоррозионные средства
В надлежащим образом смонтированных и эксплуатируемых
отопительных установках закрытого типа коррозия, как правило,
не происходит.
Пользоваться химическими антикоррозионными средствами не
следует.
Многие изготовители полимерных труб рекомендуют использо-
вание химических добавок. В этом случае разрешается исполь-
зовать только те антикоррозионные средства из предлагаемых в
специализированных магазинах по отопительной технике, кото-
рые допущены для водогрейных котлов с приготовлением горя-
чей воды посредством одностенных теплообменников (проточ-
ных или емкостных водонагревателей).
При этом соблюдать директиву VDI 2035.
Отопительные контуры
Для отопительных установок с полимерными трубами мы реко-
мендуем использовать диффузионно-непроницаемые трубы с
целью предотвращения диффузии кислорода через стенки труб.
В системах внутрипольного отопления должен быть установлен
шламоотделитель.
В подающую магистраль контура системы внутрипольного
отопления следует встроить термостатный ограничитель макси-
мальной температуры. Соблюдать требования DIN 18560-2.
Полимерные трубопроводы для радиаторов
Для полимерных трубопроводов отопительных контуров с
радиаторами мы рекомендуем также использовать термостат-
ный ограничитель максимальной температуры.
Указания по проектированию
(продолжение)
10
VIESMANN
VITOPEND 100-W
5797 048 RU
Содержание
- 2 Описание изделия; VIESMANN
- 3 Технические данные
- 5 B C D; мм
- 6 Остаточный напор встроенного насоса; Остаточный напор; Принадлежности для монтажа
- 7 турный водогрейный котел
- 8 Комплект переналадки на сжиженный газ, 30 и 34 кВт; Указания по проектированию; Установка
- 9 Электрическое подключение; Рекомендуемые кабели; Подключение к газопроводу; не; Подключение системы водоснабжения; Указание по обеспечению качества воды
- 10 Гидравлическая обвязка
- 11 Применение по назначению
- 12 Контроллер
- 13 Принадлежности для контроллера; Vitotrol 100, тип UTDB
- 15 Датчик наружной температуры/датчик температуры помещения; Соединительный кабель каскадной схемы; Функция каскадной установки; Реле для внешнего сигнала неисправности