Котел VIESSMANN Vitogas 100 35 кВт 100/КС4В - инструкция пользователя по применению, эксплуатации и установке на русском языке. Мы надеемся, она поможет вам решить возникшие у вас вопросы при эксплуатации техники.
Если остались вопросы, задайте их в комментариях после инструкции.
"Загружаем инструкцию", означает, что нужно подождать пока файл загрузится и можно будет его читать онлайн. Некоторые инструкции очень большие и время их появления зависит от вашей скорости интернета.

Номинальная теплопроизводительность
кВт
29
35
42
48
60
Продувочный трубопровод
DN
20
20
20
20
25
R
¾
¾
¾
¾
1
Указание
Если давление подключения газа превышает максимально допустимое значение
,
то необходимо подключить на входе
котельной установки отдельный регулятор давления газа
.
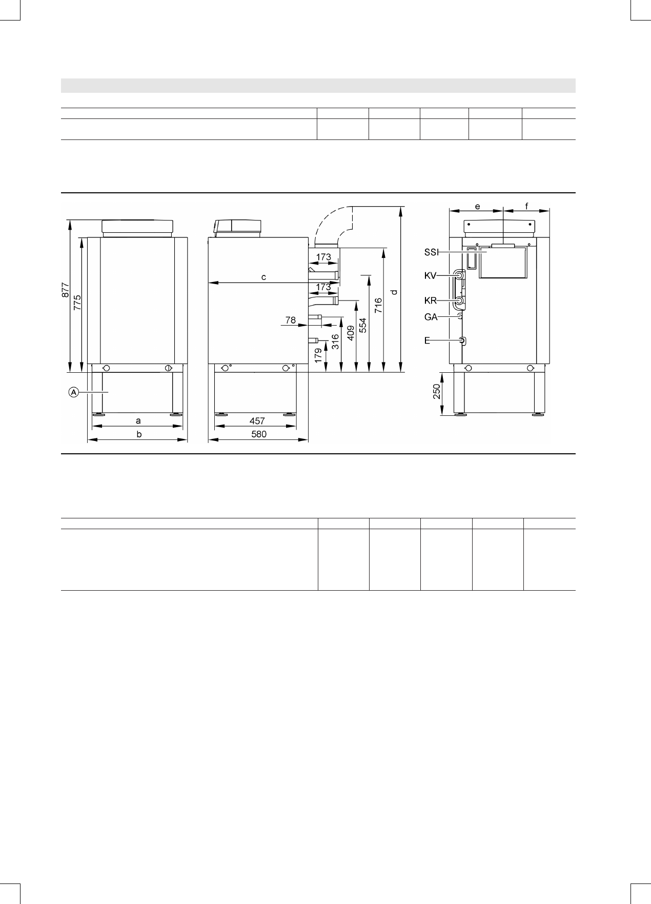
A
Опорная рама
(
принадлежность
)
Е
Выпускной вентиль и мембранный расширительный бак
GA
Подключение газа
KR
Обратная магистраль котла
KV
Подающая магистраль котла
SSI
Стабилизатор тяги
Таблица размеров
Номинальная теплопроизводительность
кВт
29
35
42
48
60
a
мм
596
706
796
886
1076
b
мм
650
760
850
940
1130
c
мм
760
780
780
780
780
d
мм
1012
1012
1012
1082
1082
e
мм
359
403
449
495
586
f
мм
291
357
401
445
544
5829
390
GUS
4
VIESMANN
VITOGAS 100
‐
F
Технические данные
(
продолжение
)
Содержание
- 2 VIESMANN; Преимущества
- 3 Технические характеристики; Технические данные
- 4 продолжение
- 5 Монтаж
- 6 Гидродинамическое сопротивление на стороне греющего контура; Состояние при поставке
- 7 Указания по проектированию
- 8 Примеры применения
- 9 Без смесителя
- 10 ходовым смесителем контроллера котлового контура
- 11 Проверенное качество