Котел TITAN Z85E - инструкция пользователя по применению, эксплуатации и установке на русском языке. Мы надеемся, она поможет вам решить возникшие у вас вопросы при эксплуатации техники.
Если остались вопросы, задайте их в комментариях после инструкции.
"Загружаем инструкцию", означает, что нужно подождать пока файл загрузится и можно будет его читать онлайн. Некоторые инструкции очень большие и время их появления зависит от вашей скорости интернета.

ОТОПИТЕЛЬНЫЙ КОТЁЛ «TITAN Z»
5
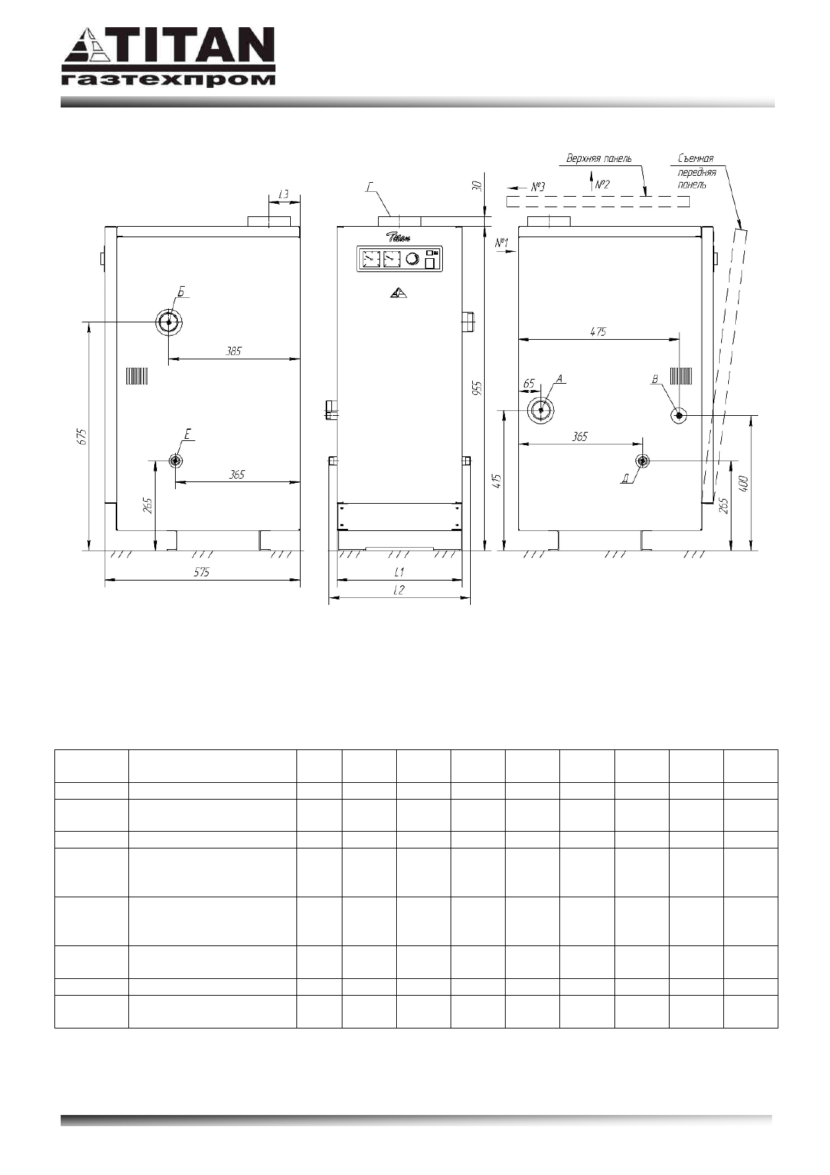
Рисунок 2. Внешний вид, габаритные и присоединительные размеры котла TITAN Z
Таблица 2. Габаритные и присоединительные размеры котла.
Обозначение
Назначение
ед.
изм.
TITAN
Z 30 E
TITAN
Z 40 E
TITAN
Z 50 E
TITAN
Z 60 E
TITAN
Z 65 E
TITAN
Z 75 E
TITAN
Z 85 E
TITAN
Z 95 E
L1
Ширина
мм
295
370
445
520
595
670
745
820
L2
Расстояние между точками
подключения
мм
360
435
510
585
660
735
810
885
L3
Расстояние до оси газохода
мм
85
85
85
100
110
110
110
110
А
Входной патрубок воды из
системы отопления в котел
(обратка, расположен ниже)
G2”
G2”
G2”
G2”
G2”
G2”
G2”
G2”
Б
Выходной патрубок воды из
котла в систему отопления
(подача, расположен выше)
G2”
G2”
G2”
G2”
G2”
G2”
G2”
G2”
В
Патрубок подсоединения
газопровода
G1/2”
G1/2”
G1/2”
G1/2”
G1/2”
G3/4”
G3/4”
G3/4”
Г
дымовая труба
мм
125
125
125
145
175
175
175
175
Д, Е
патрубки слива воды из
теплообменника котла
G3/4”
G3/4”
G3/4”
G3/4”
G3/4”
G3/4”
G3/4”
G3/4”













