Котел TITAN N60E - инструкция пользователя по применению, эксплуатации и установке на русском языке. Мы надеемся, она поможет вам решить возникшие у вас вопросы при эксплуатации техники.
Если остались вопросы, задайте их в комментариях после инструкции.
"Загружаем инструкцию", означает, что нужно подождать пока файл загрузится и можно будет его читать онлайн. Некоторые инструкции очень большие и время их появления зависит от вашей скорости интернета.

ОТОПИТЕЛЬНЫЙ КОТЁЛ «TITAN N»
23
4.10.
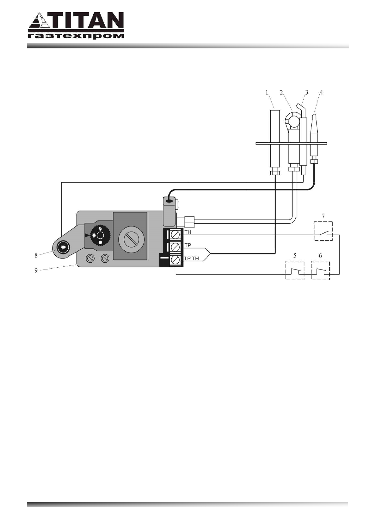
Схема электрических соединений газового клапана
Рисунок 9. Схема электрических соединений газового клапана.
1 – термогенератор.
2 – пилотная горелка.
3 – электрод поджига.
4 – термоэлектрический датчик пламени.
5 – защитный термостат тяги.
6 – защитный термостат превышения температуры воды.
7 – регулировочный термостат.
8 – кнопка пьезорозжига.
9 – газовый клапан.













