Котел Теплодар КУППЕР ПРАКТИК-142018 - инструкция пользователя по применению, эксплуатации и установке на русском языке. Мы надеемся, она поможет вам решить возникшие у вас вопросы при эксплуатации техники.
Если остались вопросы, задайте их в комментариях после инструкции.
"Загружаем инструкцию", означает, что нужно подождать пока файл загрузится и можно будет его читать онлайн. Некоторые инструкции очень большие и время их появления зависит от вашей скорости интернета.

10
Любители тепла
одобряют!
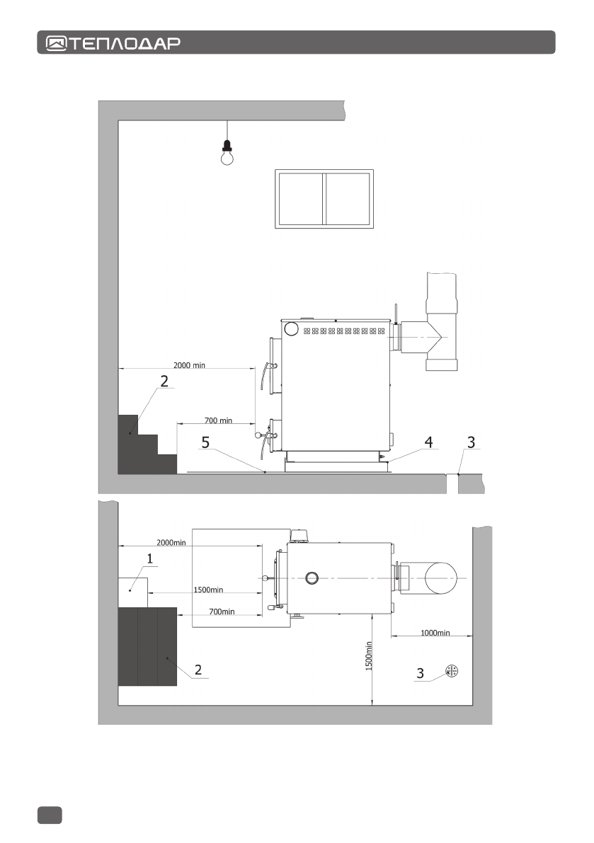
на слое картона асбестового, пропитанного глиняным раствором. Перед кот-
лом устраивается предтопочный лист [5].
Рис. 3 Схема расположения котла в помещении
(размеры в мм)
[1] Запас твёрдого топлива. [2] Лестница и другие выступающие конструкции.
[3] Дренажное отверстие. [4] Напольный защитный экран. [5] Предтопочный лист.
Содержание
- 3 ОГЛАВЛЕНИЕ
- 4 О КОМПАНИИ
- 5 Общая информация; • Куппер Практик 8; Устройство и принцип действия
- 6 Котёл оснащен двумя дверками: загрузочной и зольной.; Конструкция котла
- 7 Рис. 1 Котёл Куппер Практик
- 8 Модель котла; Технические характеристики
- 9 плива и теплоносителя, и многого другого.; Рис. 2 Схема подключения котла к закрытой системе с прину-; Дополнительное оборудование
- 10 Требования к теплоносителю
- 11 Монтаж котла и дымохода; Требования пожарной безопасности
- 12 Рис. 3 Схема расположения котла в помещении
- 13 Подключение к системе дымоотведения; Котёл должен подсоединяться к отдельному дымоходу.; Рис. 4 Рекомендуемые схемы подключения котла к системе
- 14 Подключение к системе отопления
- 17 в) закрытая система с принудительной циркуляцией.; там 10 литров на 1 кВт мощности котла.
- 18 При необходимости проверки системы отопления на; Подключение к электросети; медного провода не менее 2,5 мм2 и автоматами защиты 16 А.
- 19 Эксплуатация котла; Проверка котла перед вводом в эксплуатацию
- 20 Ввод в эксплуатацию
- 21 Рис. 6 Регулировка подачи воздуха; Подпитка системы в ходе эксплуатации; Заполнение или долив системы отопления необходимо
- 22 Обслуживание котла
- 23 Возможные неисправности и способы их устранения; Таблица 2; Гарантийные обязательства; ствующими нормативно-техническими документами.
- 24 Транспортирование и хранение
- 25 Паспорт изделия; Комплект поставки; Утилизация; щего оборудования по правилам утилизации лома чёрного металла.; Таблица 3; Перечень запасных частей и комплектующих поставля-
- 26 Свидетельство о приемке; Котёл отопительный; Куппер Практик: 8 14 20; Свидетельство о продаже
- 27 Отметка о подключении к системе отопления
- 30 Авторизованные сервисные центры компании «Теплодар»
- 34 Список авторизованных сервисных