Котел RODA VORTECH ONE CS24 УТ000005029 - инструкция пользователя по применению, эксплуатации и установке на русском языке. Мы надеемся, она поможет вам решить возникшие у вас вопросы при эксплуатации техники.
Если остались вопросы, задайте их в комментариях после инструкции.
"Загружаем инструкцию", означает, что нужно подождать пока файл загрузится и можно будет его читать онлайн. Некоторые инструкции очень большие и время их появления зависит от вашей скорости интернета.

18
Ðóêîâîäñòâî ïî ìîíòàæó
3.4 - ÐÀÑÏÎËÎÆÅÍÈÅ ÊÎÒËÀ
Ïðè âûáîðå ìåñòà
óñòàíîâêè
êîòëà íóæíî ïðèäåðæèâàòüñÿ ñëåäóþùèõ
çàìå÷àíèé ïî áåçîïàñíîñòè:
- Óñòàíàâëèâàòü êîòåë â ïîìåùåíèÿõ, çàùèù¸ííûõ îò ìèíóñîâûõ
òåìïåðàòóð.
 ïîìåùåíèÿõ ñ àãðåññèâíûìè ïàðàìè èëè ïûëüþ, êîòåë íå äîëæåí
èñïîëüçîâàòü äëÿ ðàáîòû âîçäóõ èç ïîìåùåíèÿ!
Êîòåë äîëæåí áûòü óñòàíîâëåí òîëüêî íà âåðòèêàëüíîé è ïðî÷íîé
ñòåíå, ñïîñîáíîé âûäåðæàòü åãî âåñ.
- Ñòåíà íå äîëæíà áûòü ñäåëàíà èç âîñïëàìåíÿþùåãîñÿ ìàòåðèàëà.
- Ïðåäóñìîòðåòü ðàññòîÿíèå 50 ìì ñ êàæäîé ñòîðîíû êîòëà, ÷òîáû
îáëåã÷èòü âîçìîæíûå îïåðàöèè ïî òåõíè÷åñêîìó îáñëóæèâàíèþ.
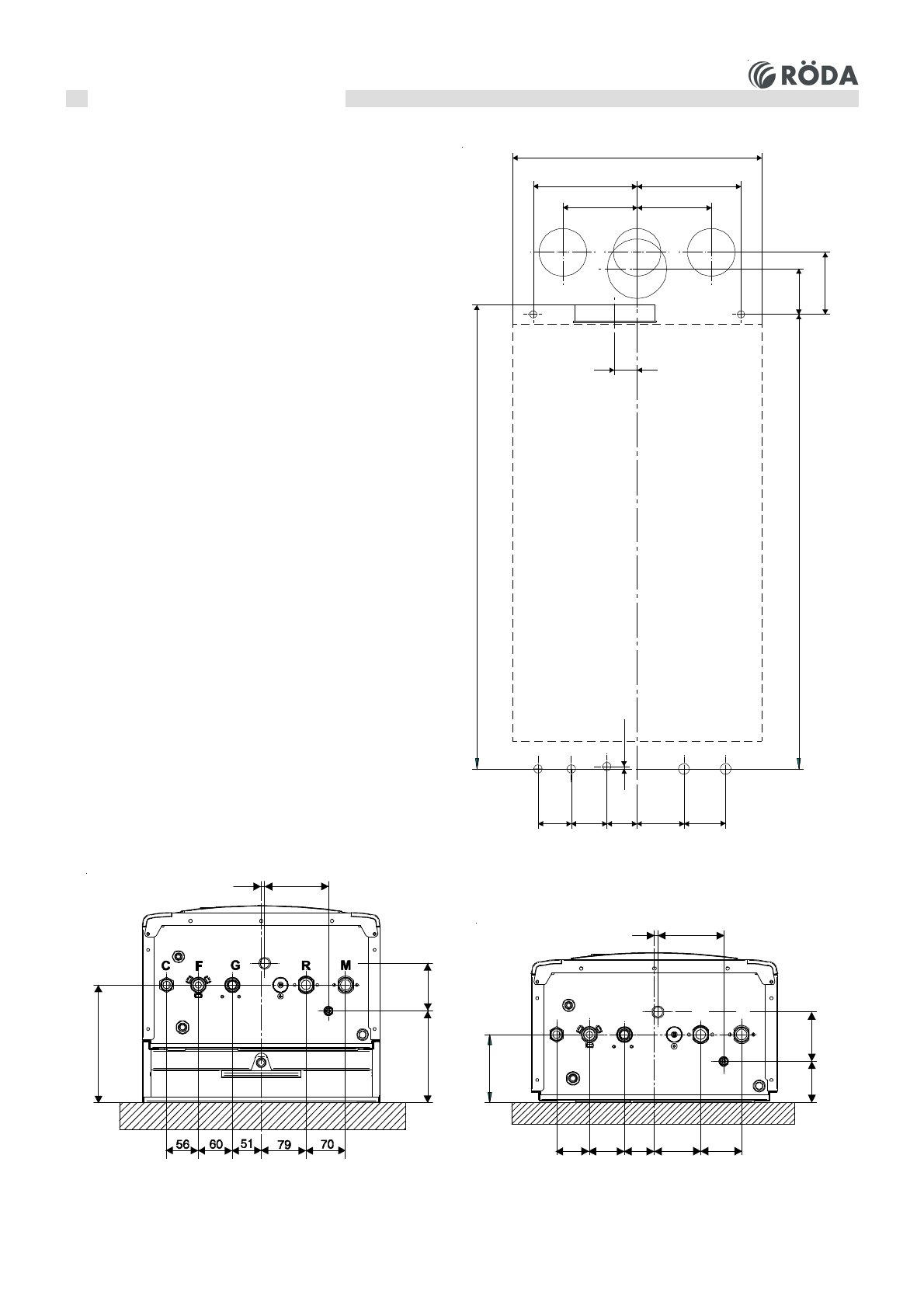
C Âûõîä ãîðÿ÷åé âîäû (1/2“)
F Âõîä õîëîäíîé âîäû (1/2“)
G Âõîä ãàçà (3/4“)
VorTech â èñïîëíåíèè CS (çàêðûòàÿ êàìåðà ñãîðàíèÿ)
Ï î ñ ê î ë ü ê ó ò å ì ï å ð à ò ó ð à ñ ò å í û , í à ê î ò î ð î é ó ñ ò à í î â ë å í
ê î ò å ë è ò å ì ï å ð à ò ó ð à ê î à ê ñ è à ë ü í î ã î ä û ì î õ î ä à í å
ï ð å â û ø à þ ò 6 0 Ê , í å ò í å î á õ î ä è ì î ñ ò è ñ î á ë þ ä à ò ü
í å î á õ î ä è ì î å ï ð î ò è â î ï î æ à ð í î å ð à ñ ñ ò î ÿ í è å ì å æ ä ó
ê î ò ë î ì è ñ ò å í î é í à ê î ò î ð î é î í ó ñ ò à í î â ë å í .
Äëÿ êîòëîâ, èìåþùèõ ñèñòåìó çàáîðà âîçäóõà è ðàçäâîåííûé äûìîõîä,
â ñëó÷àå óñòàíîâêè íà ñåíå, ïîäâåðæåííîé âîçìîæíîìó âîñïëàìåíåíèþ
è ë è ï ð è í à ë è ÷ è è î ò â å ð ñ ò è é â ñ ò å í å ä ë ÿ ó ñ ò à í î â ê è ä û ì î õ î ä à ,
èñïîëüçîâàòü+ èçîëèðóþùèå ìàòåðèàëû ìåæäó ñòåíîé è äûìîõîäîì.
V o r T e c h â è ñ ï î ë í å í è è Î C ( î ò ê ð û ò à ÿ ê à ì å ð à ñ ã î ð à í è ÿ )
Ï ð å ä ó ñ ì î ò ð å ò ü ð à ñ ñ ò î ÿ í è å í å ì å í å å 2 0 0 ì ì î ò ñ ò å í ,
è ì å þ ù è õ ë å ã ê î â î ñ ï ë à ì å í ÿ þ ù è å ñ ÿ ò ê à í è ( í à ï ð è ì å ð ,
ç à í à â å ñ ê è ) .
È ç á å ã à ò ü ó ñ ò à í î â ê è ê î ò ë à â î â ë à æ í û õ è ï û ë ü í û õ
ï î ì å ù å í è ÿ õ .
420
175
175
125
125
77
105
782
38
765
79
70
C
F
G
R
M
51
60
56
4
Rc
Si
Svs
20
8
162
85
112,5
6
85
56
60
51
79
70
70
6
11 2,5
C
F
G
R
M
Rc
Si
Svs
11
6
R Îáðàòêà ñèñòåìû îòîïëåíèÿ (3/4“)
M Ïîäà÷à ñèñòåìû îòîïëåíèÿ (3/4“)
VorTech One OC24 - OC24R - CS18 - CS18R - CS24 -
CS24R
VorTech Duo OC24 - CS24
VorTech One CS 28 - CS32 - CS28R
VorTech Duo CS28 - CS32