Котел RODA VORTECH ONE CS12 УТ000007647 - инструкция пользователя по применению, эксплуатации и установке на русском языке. Мы надеемся, она поможет вам решить возникшие у вас вопросы при эксплуатации техники.
Если остались вопросы, задайте их в комментариях после инструкции.
"Загружаем инструкцию", означает, что нужно подождать пока файл загрузится и можно будет его читать онлайн. Некоторые инструкции очень большие и время их появления зависит от вашей скорости интернета.

20
При выборе места установки котла необходимо
соблюдать следующие требования безопасности:
- Устанавливать котёл в помещении, защищён
-
ном от замерзания.
- Не устанавливать котёл в помещении с агрес
-
сивной атмосферой или высокой запылённо
-
стью.
- Устройство должно устанавливаться только
на прочной вертикальной стене, способной
выдержать соответствующий вес.
- Стена не должна быть выполнена из легковос
-
пламеняющихся материалов.
VorTech ONE/DUO CS 12 - 14 - 16 - 18 - 24 - 28
- 32 CH
При условии, что температура стены, на которую
устанавливается котёл, и температура коаксиаль
-
ного дымоотвода не превышают, при нормальном
рабочем режиме, температуру помещения более
чем на 60 К, не обязательно соблюдение мини
-
мальных расстояний от легковоспламеняющихся
стен.
Для котлов с раздвоенными каналами всасыва
-
ния и дымоудаления, установленных на воспла
-
меняющихся стенах и пересечениях, необходимо
установить изолятор между стеной и каналом
дымоудаления.
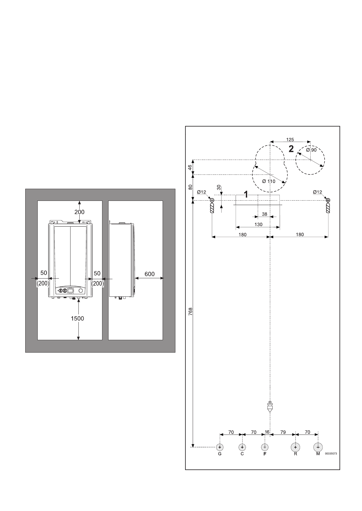
3.5 - ПОЗИЦИОНИрОВаНИЕ кОтЛа
Соблюдаемые расстояния
Содержание
- 4 ОБЩИЕ СВЕДЕНИЯ; характЕра
- 5 - ПрЕДуСМОтрЕННЫЕ СПОСОБЫ ЭкСПЛуатаЦИИ
- 6 указания для устройств, работающих на пропане.; Запах газа; Взрывоопасные и легковоспламеняющиеся вещества
- 7 табличка с техническими
- 8 кОтЛа; Чтобы активировать противоморозную; Данная защита срабатывает лишь; ПрОтИВОМОрОЗНаЯ фуНкЦИЯ
- 9 тЕхНИЧЕСкИЕ характЕрИСтИкИ; СтИкИ
- 13 уСтаНОВкИ
- 15 ОБЩИЕ характЕрИСтИкИ
- 16 раБОЧИЕ ПараМЕтрЫ СОгЛаСНО UNI 10348
- 18 ИНСтрукЦИИ ПО уСтаНОВкЕ; ПрОВЕрОЧНЫЕ ОПЕраЦИИ И
- 20 Соблюдаемые расстояния
- 21 - ПОДкЛюЧЕНИЕ к труБОПрОВОДу ДЫМОуДаЛЕНИЯ; кОтЛЫ С ЕСтЕСтВЕННОй тЯгОй
- 23 Монтаж диафрагмы; ОБЩаЯ ИНфОрМаЦИЯ О СИСтЕМЕ ДЫМОуДаЛЕНИЯ; резиновые заглушки; только для раздвоенных систем)
- 25 установка; - ПОДкЛюЧЕНИЕ СИСтЕМЫ ЭЛЕктрОПИтаНИЯ
- 26 VorTech ONE
- 27 актИВаЦИЯ
- 31 ПрОВЕркИ И; И тЕхОБСЛужИВаНИю
- 34 На ДругОй гаЗ
- 36 Практическая схема подключения