Котел Roda BS-03 - инструкция пользователя по применению, эксплуатации и установке на русском языке. Мы надеемся, она поможет вам решить возникшие у вас вопросы при эксплуатации техники.
Если остались вопросы, задайте их в комментариях после инструкции.
"Загружаем инструкцию", означает, что нужно подождать пока файл загрузится и можно будет его читать онлайн. Некоторые инструкции очень большие и время их появления зависит от вашей скорости интернета.

15
6.Воду, выходящую из клапана безопасности (выход из клапана обозначен буквой S), отводите в
канализацию (рис.7, поз. 5).
Примечание:
Подключение воды выходящей из клапана безопасности в канализацию необходимо
провести так, чтобы была обеспечена защита людей от контакта с этой водой.
7.На обратной линии отопительной воды, на расстоянии не меньше 0,5м от котла, сделать отвод с
минимальным диаметром 1/2”, который подключите к выходу охлаждающей воды из клапана
безопасности (выход из клапана обозначен стрелкой направленной из корпуса клапана) (рис.7).
8.На вход охлаждающей воды в клапан безопасности (вход в клапан обозначен буквой С)
подключите подвод холодной воды с диаметром минимально 1/2“. На входе холодной воды в
клапан рекомендуется ставить фильтр (рис.7, поз. 2).
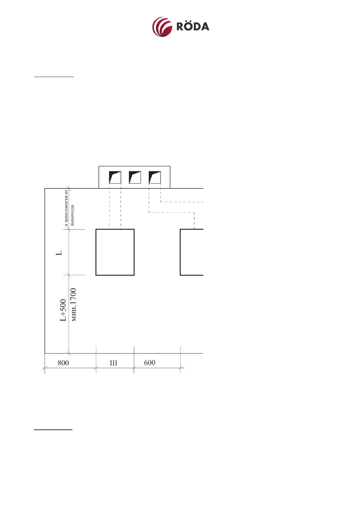
Рисунок 10 – Планировка котельной.
Примечание:
Все соединительные материалы, использованные для установки котла, должны
быть рассчитаны для температуры 110°C и давления минимально 4 бар
.
9.В отверстие в верхней части передней секции установите термомеханический регулятор мощности.
10.После подключения котла в систему отопления навинтите на заднюю секцию наливной и
сливной кран (рис.13, поз. 3).