Котел Roda Brenner Fest BF-50 с чугунным теплообменником - инструкция пользователя по применению, эксплуатации и установке на русском языке. Мы надеемся, она поможет вам решить возникшие у вас вопросы при эксплуатации техники.
Если остались вопросы, задайте их в комментариях после инструкции.
"Загружаем инструкцию", означает, что нужно подождать пока файл загрузится и можно будет его читать онлайн. Некоторые инструкции очень большие и время их появления зависит от вашей скорости интернета.

33
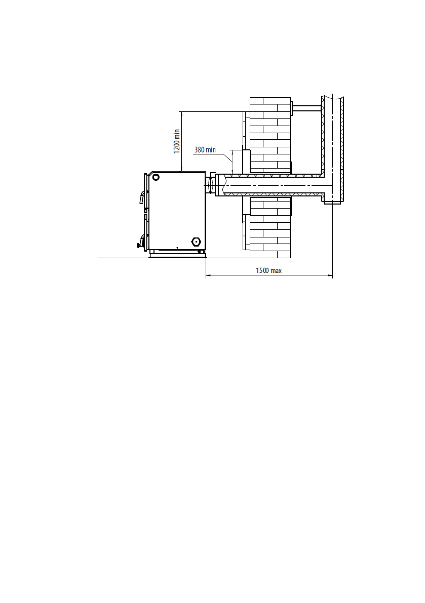
Допускается подключение котла горизонтальным соединительным элементом, с
использованием тройника-ревизии, при создании необходимого для корректной
работы разряжения.
Для нормальной работы котлов очень важно наличие правильно выполненного
дымохода необходимой длины и конструкции, который должен удовлетворять
следующим требованиям:
Дымовая труба с квадратными или прямоугольными участками должна иметь
площадь внутреннего поперечного сечения на 10 % больше сечения выходного
патрубка котла;
внутри дымохода;
При работе котла с мощностью менее номинальной возможны выпадения
конденсата внутри дымохода. Поэтому рекомендуется подключать котел к дымоходу,
выполненному из влагостойкого материала, способного без вредных последствий
выдерживать
воздействие
образующегося
конденсата.
Желательно
также
предусмотреть слив образующегося конденсата из нижней части дымовой трубы в
канализацию.
Стенки дымохода должны быть гладкими, не создающими препятствий
нормальному отводу продуктов сгорания и способными выдержать температуру
дымовых газов (до 180°С);
Дымоход должен быть вертикальным и как возможно более ровным, с не более
чем одним изменением направления не более чем на 30°;
Содержание
- 6 ОБЩИЕ ДАННЫЕ; Модель котла
- 7 Регулятор вторичного воздуха
- 9 ИНСТРУКЦИИ ПО ЭКСПЛУАТАЦИИ; Предупреждения; аппарата и повлечь за собой потерю гарантии производителя.
- 10 При эксплуатации запрещается !; руководством
- 12 RODA Brenner Fest
- 13 Дозагрузка топлива; удалены из топки в дымовую трубу
- 19 Большая тяга в дымоходе.; Внешний уход
- 20 Гарантия на твердотопливные котлы RODA – 24 месяца (2 года). Начало; Условия хранения и транспортировки; Кантовка не допускается.
- 21 ИНСТРУКЦИЯ ДЛЯ ТЕХНИЧЕСКИХ СПЕЦИАЛИСТОВ; Габаритные и присоединительные размеры; Таблица 3. Габаритные размеры оборудования.; Модель
- 22 Общие данные
- 23 воды в котле должна быть не менее 65 °С.; Выбор места установки; При установке котла на деревянный пол, под ним обязательно должна
- 25 установленное оборудование и топливо не должны
- 28 Открытая система отопления
- 34 Местоположение терминала дымохода Обозначение на рис.; алюминия или нержавеющей стали толщиной не менее 0,5 мм.; Местоположение дымохода; Не менее 0,5 м выше конька кровли или парапета
- 35 ПЕРВЫЙ ПУСК В ЭКСПЛУАТАЦИЮ; Обследование котловой установки и документации; герметичность системы отопления и давление в ней
- 37 возникших в результате неправильного монтажа и эксплуатации; Гарантия не распространяется:; на повреждения вызванные замерзанием воды внутри котла
- 38 Гарантийный талон; RODA; серии; BRENNER FEST; BF -; Серийный номер:; Дата продажи:; организации производивших монтаж и запуск:; Дата запуска в эксплуатацию:
- 39 Таблица проведения технического обслуживания.













