Котел Roda Brenner Fest BF-20 с чугунным теплообменником - инструкция пользователя по применению, эксплуатации и установке на русском языке. Мы надеемся, она поможет вам решить возникшие у вас вопросы при эксплуатации техники.
Если остались вопросы, задайте их в комментариях после инструкции.
"Загружаем инструкцию", означает, что нужно подождать пока файл загрузится и можно будет его читать онлайн. Некоторые инструкции очень большие и время их появления зависит от вашей скорости интернета.

30
4.4.3 Закрытая система отопления
Обязательно установите предохранительно-сбросной клапан максимальным
давлением 3 бар и мембранный расширительный бак
объёмом не менее 1/10 от
совокупного объёма теплоносителя, но не менее 15 литров.
Расширительный бак необходимо размещать на обратной линии перед
циркуляционным насосом. При монтаже необходимо проверить давление в
расширительном баке. Оно должно быть 0,7…0,8 от номинального давления для
конкретной системы отопления.
Установка запорной арматуры между предохранительными устройствами и
котлом недопустима.
Температура воды обратной линии котла должна быть не менее 50 °С, для чего
необходимо предусмотреть установку устройства для поддержания необходимой
температуры обратной линии котла.
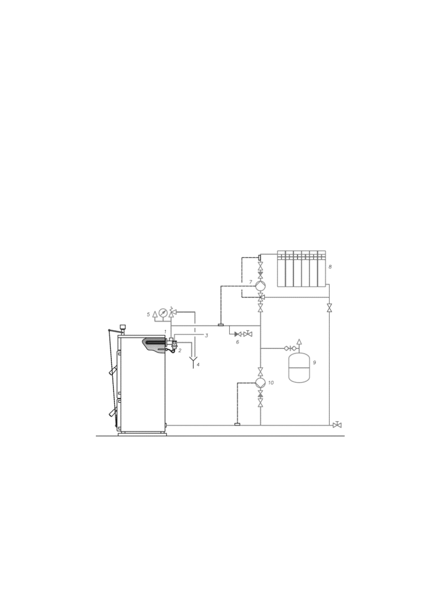
Пример системы отопления без теплоаккумулятора
1. Теплообменник защиты от перегрева (опция);
7. Насос системы отопления;
2. Термозащитный клапан (опция);
8. Система отопления;
3. Подача холодной воды;
9. Мембранный расширительный бак;
4. Слив в канализацию;
10. Котловой насос;
5. Группа безопасности котла;
11. Накладной термостат;
6. Кран подпитки и заполнения системы отопления;
Мембранный расширительный бак является элементом безопасности котла и
предназначен для компенсации расширения теплоносителя вследствие нагрева. В
процессе эксплуатации системы отопления теплоноситель не имеет постоянной
Содержание
- 6 ОБЩИЕ ДАННЫЕ; Модель котла
- 7 Регулятор вторичного воздуха
- 9 ИНСТРУКЦИИ ПО ЭКСПЛУАТАЦИИ; Предупреждения; аппарата и повлечь за собой потерю гарантии производителя.
- 10 При эксплуатации запрещается !; руководством
- 12 RODA Brenner Fest
- 13 Дозагрузка топлива; удалены из топки в дымовую трубу
- 19 Большая тяга в дымоходе.; Внешний уход
- 20 Гарантия на твердотопливные котлы RODA – 24 месяца (2 года). Начало; Условия хранения и транспортировки; Кантовка не допускается.
- 21 ИНСТРУКЦИЯ ДЛЯ ТЕХНИЧЕСКИХ СПЕЦИАЛИСТОВ; Габаритные и присоединительные размеры; Таблица 3. Габаритные размеры оборудования.; Модель
- 22 Общие данные
- 23 воды в котле должна быть не менее 65 °С.; Выбор места установки; При установке котла на деревянный пол, под ним обязательно должна
- 25 установленное оборудование и топливо не должны
- 28 Открытая система отопления
- 34 Местоположение терминала дымохода Обозначение на рис.; алюминия или нержавеющей стали толщиной не менее 0,5 мм.; Местоположение дымохода; Не менее 0,5 м выше конька кровли или парапета
- 35 ПЕРВЫЙ ПУСК В ЭКСПЛУАТАЦИЮ; Обследование котловой установки и документации; герметичность системы отопления и давление в ней
- 37 возникших в результате неправильного монтажа и эксплуатации; Гарантия не распространяется:; на повреждения вызванные замерзанием воды внутри котла
- 38 Гарантийный талон; RODA; серии; BRENNER FEST; BF -; Серийный номер:; Дата продажи:; организации производивших монтаж и запуск:; Дата запуска в эксплуатацию:
- 39 Таблица проведения технического обслуживания.













