Котел Roda BC-04 - инструкция пользователя по применению, эксплуатации и установке на русском языке. Мы надеемся, она поможет вам решить возникшие у вас вопросы при эксплуатации техники.
Если остались вопросы, задайте их в комментариях после инструкции.
"Загружаем инструкцию", означает, что нужно подождать пока файл загрузится и можно будет его читать онлайн. Некоторые инструкции очень большие и время их появления зависит от вашей скорости интернета.

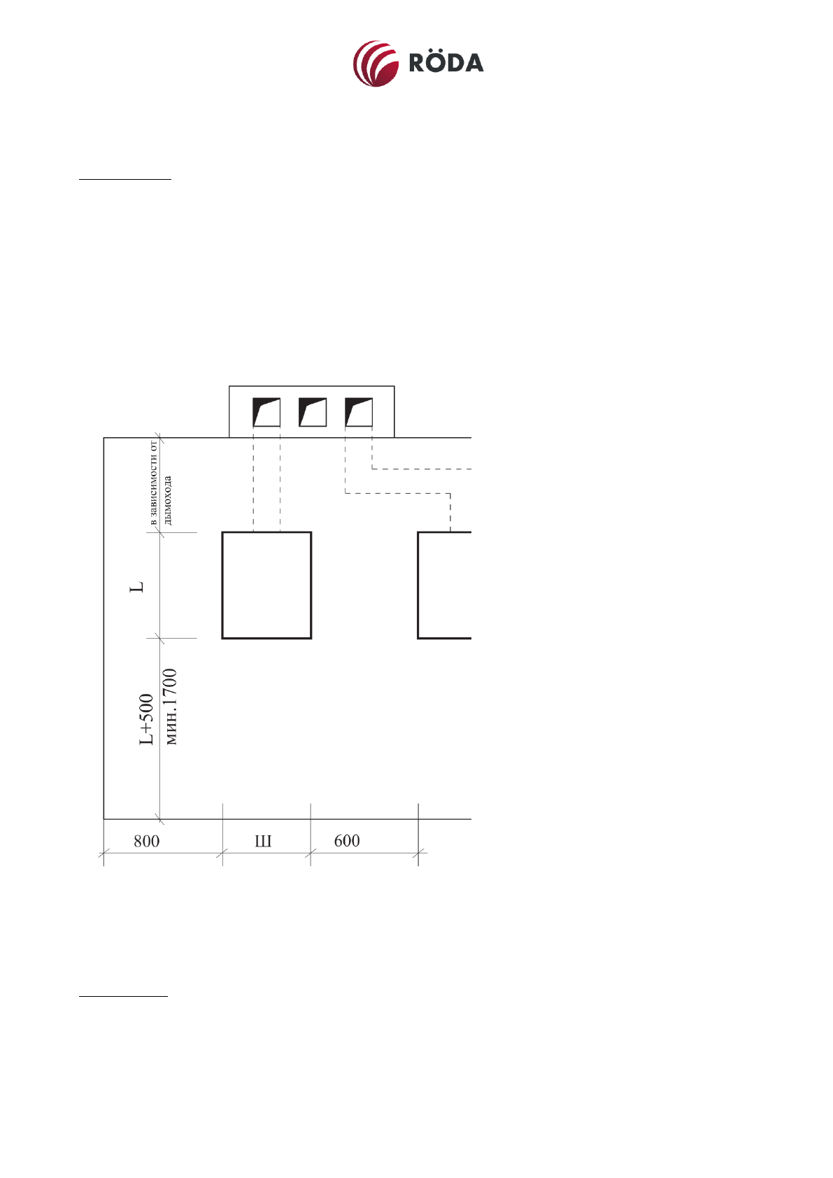
15
. оду,
од у кл п
е оп
о т
од кл п
о о
е ук о “ , от од те
к
л
. , по . .
еч
е:
одкл е е од
од е кл п
е оп
о т к
л
ео од о
п о е т т к, то л о е пе е
т л де от ко т кт то одо .
. о
т о л
отоп тел о од ,
то
е е
е , от котл , дел т от од
л
д
ет о / , кото
подкл
те к
оду о л д
е од кл п
е оп
о т
од кл п
о о
е т елко п
ле о ко пу кл п
. .
. од о л д
е од кл п е оп
о т од кл п о о
е ук о
подкл
те под од олод о од д
ет о
л о / . оде олод о од
кл п еко е дует т
т л т
. , по . .
у ок –
л
о к котел о .
еч
е:
е оед
тел
е те
л , пол о
е дл у т о к котл , дол
т
т
дл те пе ту
°C д ле
л о
.
. от е т е е
е
т пе ед е ек
у т о те те о е
е к е ул то о
о т .
. о ле подкл е
котл
те у отопле
т те д
ек
л
о
л
о к
. , по . .













