Котел Roda BC-03 - инструкция пользователя по применению, эксплуатации и установке на русском языке. Мы надеемся, она поможет вам решить возникшие у вас вопросы при эксплуатации техники.
Если остались вопросы, задайте их в комментариях после инструкции.
"Загружаем инструкцию", означает, что нужно подождать пока файл загрузится и можно будет его читать онлайн. Некоторые инструкции очень большие и время их появления зависит от вашей скорости интернета.

6
отопле
е °C кл п е оп
о т отк
ет под од олод о од
у
то
к олод о од , п
е одоп о од ко д те пе ту отоп тел о од удет
е п едел о те пе ту
°C , о к оет .
ле е од оде епо ед т е о
пе ед
т
ко ту о допол тел о о о л де
дол о т от до
. е ед
одо о л д
е од кл п еко е дует у т о т од о л т , кото
ео од о е ул
о ко т ол о т
т т .
едуп е де е:
то у о
у оду е е кл п е оп
о т , ео од о л
т
к
л
ел
ее пол о т дл д у
л
е
.
у ок .
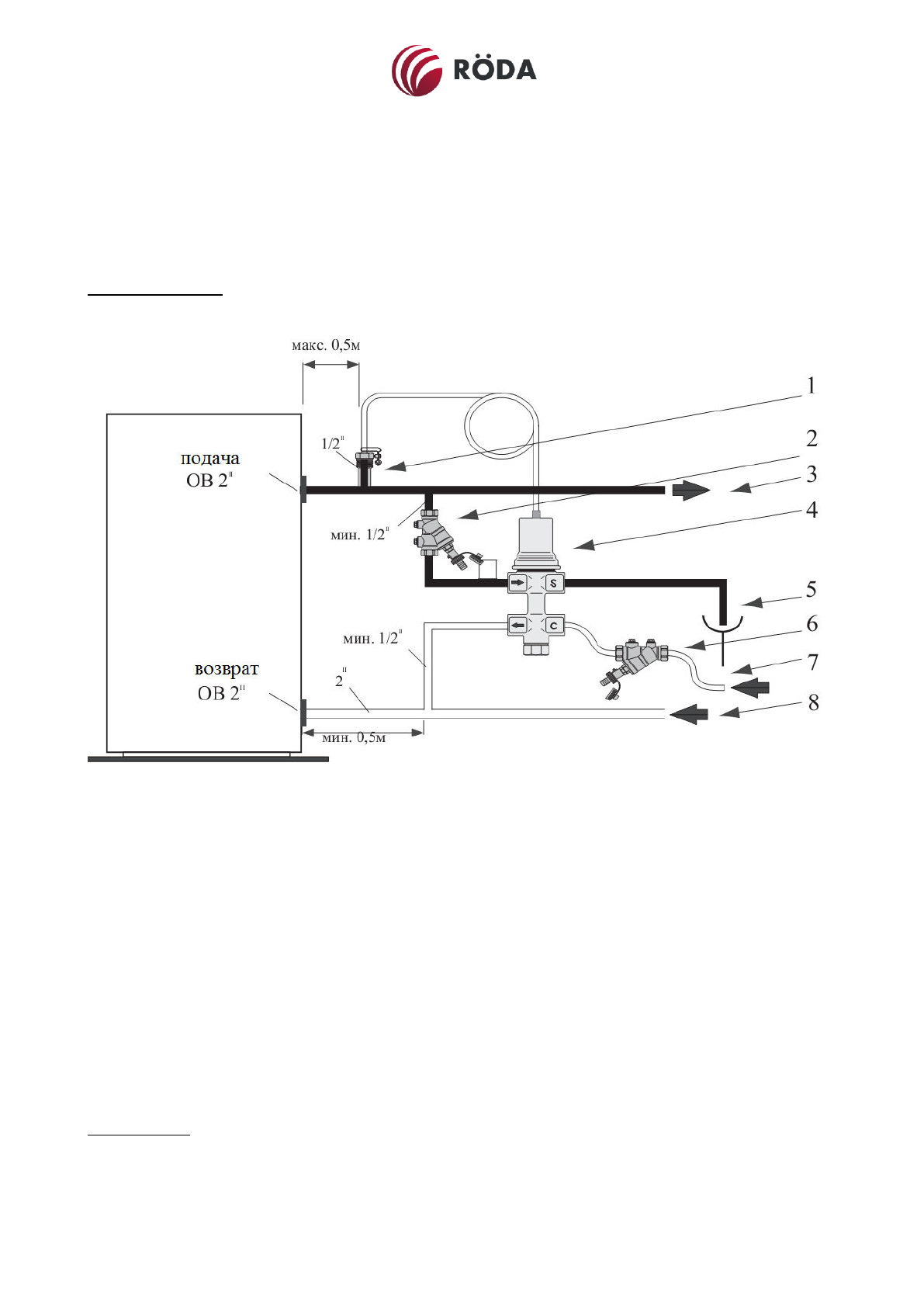
1 -
Д т к те пе ту О кл п
е оп
о т ;
-
Ф л т ;
-
од отоп тел о од ;
4 -
Кл п е оп
о т
Caleffi 544; 5 -
од
то о о тепл ;
-
од о л
д
е од ;
7 -
од о
т о О
Акку ул у щ к
е те котло у т
л
ет кку ул у
к. Это
-
у т о т о, по ол
ее
к плу т о т котёл о
л о о
о т , т к о
о , к
л о
ект
о т , е
о т от пот е о т тепл
те е. то по ол ет т к е ко о т
-
% топл
, л од
оте котл е
е к
л о о К . л од
п
е е
кку ул у
е о к у ел
ет ок лу
котло д
о одо
-
л ое
о
о
е де т к лот . К о е то о, е о подкл е е по ол ет к плу т о т
те у
отопле
к пе еп до те пе ту .
еч
е:
т о ку кку ул у
е о к п о од те оот ет т
т ук
п о
од тел
о о
к .













