Котел Protherm Медведь 30 KLZ - инструкция пользователя по применению, эксплуатации и установке на русском языке. Мы надеемся, она поможет вам решить возникшие у вас вопросы при эксплуатации техники.
Если остались вопросы, задайте их в комментариях после инструкции.
"Загружаем инструкцию", означает, что нужно подождать пока файл загрузится и можно будет его читать онлайн. Некоторые инструкции очень большие и время их появления зависит от вашей скорости интернета.

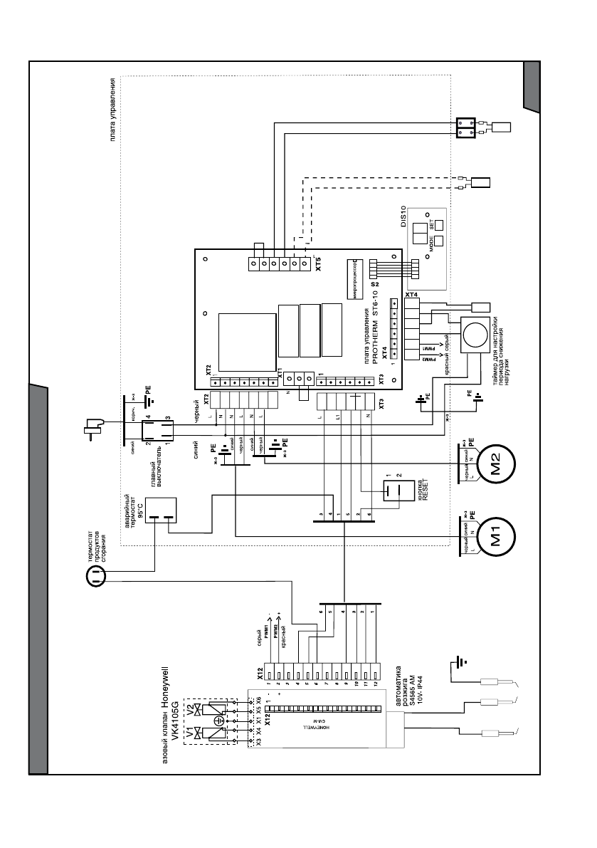
Электричес
каясх
емак
от
лаPRO
THERM
20 (30,
40,
50) KLZ
Рис
. 10
Элек
тро
д
розжиг
а
Элек
тр
од
ионизац
ии
Н
ас
ос
от
опи
те
ль
ны
й
Насос бойле
ра
Д
ат
чи
к
ко
тл
а
Д
атчик
на
ру
ж
но
й
тем
пе
ра
туры
Д
ат
чик
бойлера
Ко
м
на
тный
рег
ул
ят
ор
Подк
лю
чение
ту
рбон
ас
ад
ки
Подк
лючение
се
тевог
о
напряжени
я
Содержание
- 2 Плавнаямодуляциямощности; МЕДВЕДЬ; Руководствопомонтажу; Напольныйчугунныйкотел
- 5 Медведь; Obsah; Содержание
- 6 Введение
- 8 РУКОВОДСТВОПОЭКСПЛУАТАЦИИ; Управлениеисигнализация; Главныйвыключатель
- 9 Установкатемпературыотопления
- 12 Сообщенияобошибках; Таймер
- 13 Пускиотключениекотла
- 14 Защитныефункциикотла
- 15 Сервисиобслуживание
- 16 Гарантийныеусловия
- 17 Техническиепараметры
- 21 Введение
- 24 Комплектностьпоставки
- 25 Подготовкакустановкекотла
- 27 Установкакотла
- 29 Обслуживаниекотла; Комбинированнаягазоваяарматура
- 31 Запускнасоса; Стартоваямощностькотла
- 32 Электрическоеподключениекотла
- 33 Переналадканаинойвидтоплива