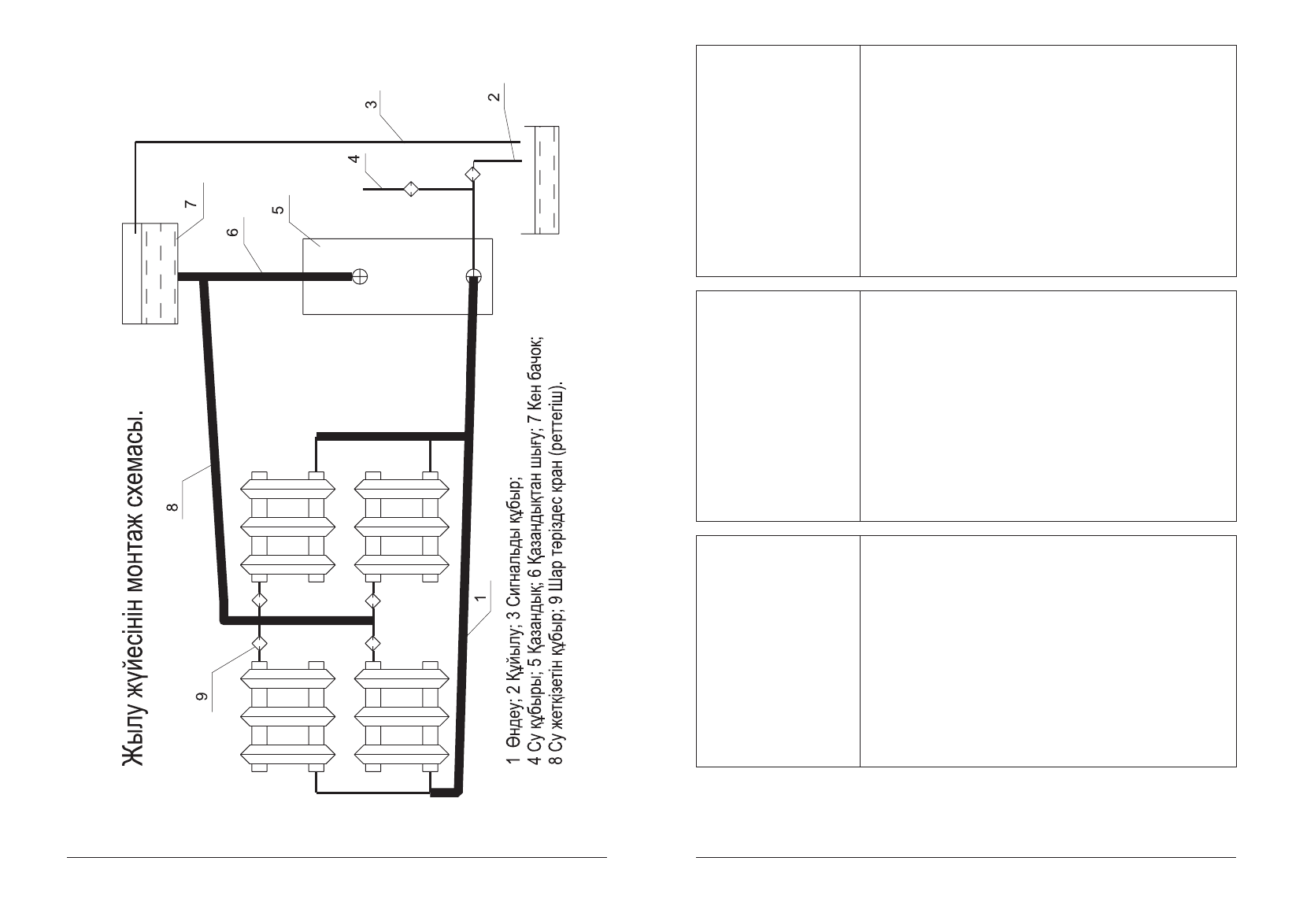
Котел Печкин КСГ-40 синий, с авт. Novasit-820 - инструкция пользователя по применению, эксплуатации и установке на русском языке. Мы надеемся, она поможет вам решить возникшие у вас вопросы при эксплуатации техники.
Если остались вопросы, задайте их в комментариях после инструкции.
"Загружаем инструкцию", означает, что нужно подождать пока файл загрузится и можно будет его читать онлайн. Некоторые инструкции очень большие и время их появления зависит от вашей скорости интернета.

30
Пе
чк
ин
B
1
.0
1
31
Корешок т
ал
она №___________
На г
арантийный ремонт
Ко
тла К
СГ___________________
Изьят______________20 г
.
Ф.И.О.______________________
/пре
дст
авит
ель г
аз
ов
ог
о х
озяйств
а/
Действителен по заполнении
гаРантийный талон
«
Печкин
»
Адрес: г. Москва, ул. Академика Волгина, 33.
тел. (499) 685-18-00
Талон № ____________________________________
на гарантийный ремонт котла
КСГ ________________________________________
Заводской № ________________________________
«____»________________________________ 20 г.
Штамп магазина
Корешок т
ал
она №___________
На г
арантийный ремонт
Ко
тла К
СГ___________________
Изьят______________20 г
.
Ф.И.О.______________________
/пре
дст
авит
ель г
аз
ов
ог
о х
озяйств
а/
Действителен по заполнении
гаРантийный талон
«
Печкин
»
Адрес: г. Москва, ул. Академика Волгина, 33.
тел. (499) 685-18-00
Талон № ____________________________________
на гарантийный ремонт котла
КСГ ________________________________________
Заводской № ________________________________
«____»________________________________ 20 г.
Штамп магазина
Корешок т
ал
она №___________
На г
арантийный ремонт
Ко
тла К
СГ___________________
Изьят______________20 г
.
Ф.И.О.______________________
/пре
дст
авит
ель г
аз
ов
ог
о х
озяйств
а/
Действителен по заполнении
гаРантийный талон
«
Печкин
»
Адрес: г. Москва, ул. Академика Волгина, 33.
тел. (499) 685-18-00
Талон № ____________________________________
на гарантийный ремонт котла
КСГ ________________________________________
Заводской № ________________________________
«____»________________________________ 20 г.
Штамп магазина













